
Modern ház autósoknak!
Vállaljuk családi házak építését. Alaptól – Prémiumig!A megadott árban
telkek nem szerepelnek, és nem meglévő ház!Oda építjük, meg ahova ön szeretné!
Szerkezetkésztől - emelt fűtés-kész állapotig! Ez az ingatlan,,Laci”!
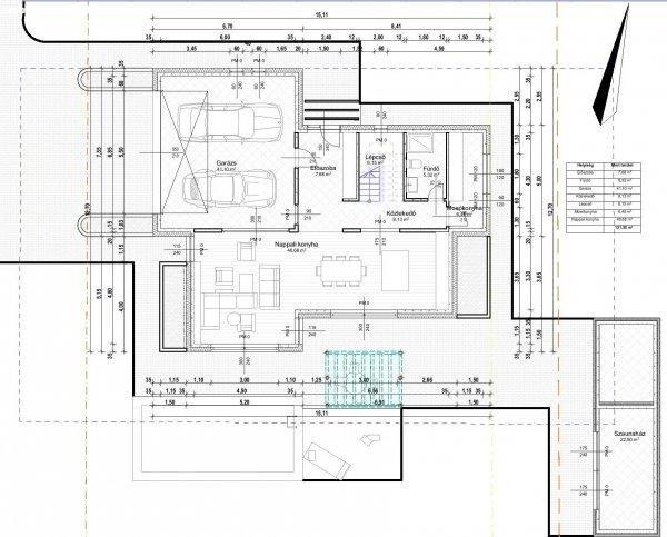
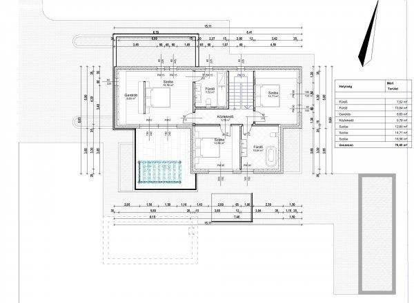
emelt fűtés-készen, garázzsal. Bruttó 220m2 beépített terület, Nettó 196m2
hasznos alapterület. Nappali + 3 hálószoba, nagy üvegfelületek, klasszikus
formavilág, többféle külső design lehetőség. A ház ára emelt fűtés-készen:
142.500.000 Ft + áfaAz alapár tartalmazza:változtatások nélküli terv adaptációt
(az esetleges változtatások extra költségeket jelenthetnek)szigetelt
lemezalapot,a külső és belső liapor falakat 275 cm-es
panelmagassággal,elektromos kiállások előkészítéseivíz vezetékek helyének
horonymarásai tetőszerkezetet, (szeglemezes rácsos tartós szerkezet) 25
fokigtető héjazatot (betoncserép borítással, Bramac Római Novo) tető cserepezést
és bádogozásta külső 20 cm-es fehér EPS szigetelést (U=min. 0,17) színezést
fehér színre 1,5 mm-es szemcsenagyságú dörzsölt vakolattal
(Polifarbe)ereszcsatornát a tető héjazattal egyező színbennyílászárókat, (fehér
színben, 3 rétegű üvegezéssel. Színes ablakok felár ellenében rendelhetők) 1 db
bejárati ajtót katalógusból 1 db teraszajtó (bukó toló vagy emelő toló ajtó
felár ellenében)e-napló vezetésétvillanyszerelés helyiségenként 5 kiállással,
szerelvényezéssel vízvezeték alapszereléstbeépíthető WC-k vázát, szerelvényeit
(nyomógomb, WC csésze és ülőke nélkül)gipszkarton álmennyezet egy réteg
kartonnalfújt cellulóz födém hőszigetelés 30 cm vastagságbanaljzat betonozás 5
cm vastagságigszabadon választott fűtés 3.500.000 Ft nettó összegig (elektromos
padlófűtés + napelem vagy levegő/víz hőszivattyús padlófűtés vagy levegő/levegő
hőszivattyús fűtés vagy mennyezetfűtésEmeletes házaknál a betonfödém
kivitelezését és a belső gipszbeton lépcsőket az ár tartalmazza! Az árak nem
tartalmazzák: színes vakolatokatkülső homlokzati kőburkolatokat, díszítéseket,
3d elemeketerkély vagy lépcsőkorlátokatteraszok és külső lépcsők
kivitelezésétpergolákat, autóbeállókatterv módosítások díjátvilágító testeket,
lámpákat, bútorokatbelső festésthideg és meleg burkolásokat,
szegélyezéseketbeltéri ajtókatszanitereket és csaptelepeketszerelvényezéseket és
szerelvényeketbelső ablakpárkányokatEzek árairól egyedi ajánlatot adunk, az
igények felmérése után. Felhívjuk a figyelmet, hogy a teljes kulcsrakész
befejezést nem minden esetben tudunk vállalni! Bővebb tájékoztatás
https://www.homes4you.hu/laci/ “Mi valóban építünk is, nem csak
hirdetünk! Hívjon most, és nézzük, megy együtt! Fal állítás minden héten
kétszer!”Homes4you – Kész-házak mindenkinek
telkek nem szerepelnek, és nem meglévő ház!Oda építjük, meg ahova ön szeretné!
Szerkezetkésztől - emelt fűtés-kész állapotig! Ez az ingatlan,,Laci”!
emelt fűtés-készen, garázzsal. Bruttó 220m2 beépített terület, Nettó 196m2
hasznos alapterület. Nappali + 3 hálószoba, nagy üvegfelületek, klasszikus
formavilág, többféle külső design lehetőség. A ház ára emelt fűtés-készen:
142.500.000 Ft + áfaAz alapár tartalmazza:változtatások nélküli terv adaptációt
(az esetleges változtatások extra költségeket jelenthetnek)szigetelt
lemezalapot,a külső és belső liapor falakat 275 cm-es
panelmagassággal,elektromos kiállások előkészítéseivíz vezetékek helyének
horonymarásai tetőszerkezetet, (szeglemezes rácsos tartós szerkezet) 25
fokigtető héjazatot (betoncserép borítással, Bramac Római Novo) tető cserepezést
és bádogozásta külső 20 cm-es fehér EPS szigetelést (U=min. 0,17) színezést
fehér színre 1,5 mm-es szemcsenagyságú dörzsölt vakolattal
(Polifarbe)ereszcsatornát a tető héjazattal egyező színbennyílászárókat, (fehér
színben, 3 rétegű üvegezéssel. Színes ablakok felár ellenében rendelhetők) 1 db
bejárati ajtót katalógusból 1 db teraszajtó (bukó toló vagy emelő toló ajtó
felár ellenében)e-napló vezetésétvillanyszerelés helyiségenként 5 kiállással,
szerelvényezéssel vízvezeték alapszereléstbeépíthető WC-k vázát, szerelvényeit
(nyomógomb, WC csésze és ülőke nélkül)gipszkarton álmennyezet egy réteg
kartonnalfújt cellulóz födém hőszigetelés 30 cm vastagságbanaljzat betonozás 5
cm vastagságigszabadon választott fűtés 3.500.000 Ft nettó összegig (elektromos
padlófűtés + napelem vagy levegő/víz hőszivattyús padlófűtés vagy levegő/levegő
hőszivattyús fűtés vagy mennyezetfűtésEmeletes házaknál a betonfödém
kivitelezését és a belső gipszbeton lépcsőket az ár tartalmazza! Az árak nem
tartalmazzák: színes vakolatokatkülső homlokzati kőburkolatokat, díszítéseket,
3d elemeketerkély vagy lépcsőkorlátokatteraszok és külső lépcsők
kivitelezésétpergolákat, autóbeállókatterv módosítások díjátvilágító testeket,
lámpákat, bútorokatbelső festésthideg és meleg burkolásokat,
szegélyezéseketbeltéri ajtókatszanitereket és csaptelepeketszerelvényezéseket és
szerelvényeketbelső ablakpárkányokatEzek árairól egyedi ajánlatot adunk, az
igények felmérése után. Felhívjuk a figyelmet, hogy a teljes kulcsrakész
befejezést nem minden esetben tudunk vállalni! Bővebb tájékoztatás
https://www.homes4you.hu/laci/ “Mi valóban építünk is, nem csak
hirdetünk! Hívjon most, és nézzük, megy együtt! Fal állítás minden héten
kétszer!”Homes4you – Kész-házak mindenkinek
Részletek...
Adatlap
| Ár: | 142.500.000 Ft |
| Település: | Nyergesújfalu |
| A hirdető: | Ingatlaniroda ajánlatából |
| Értékesítés típusa: | Eladó |
| Használtság: | Új építésű |
| Utca: | Nxerges |
| Telek nagysága (m2) : | 900 |
| Telek beépíthetősége (%): | 30 |
| Épület hasznos területe (m2) : | 220 |
| Szobák száma: | 4 |
| Komfort: | Duplakomfortos |
| Fűtés: | Házközponti fűtéses |
| Ingatlan állapota: | Normál állapotú |
| Anyaga: | Tégla |
| Extrák: | eladó liapor ház |
| A hirdető kérése: | Ingatlanközvetítő vagyok - keresse fel Irodánkat! |
| Feladás dátuma: | 2026.04.22 |
| Eddig megtekintették 87 alkalommal | |
A hirdető adatai
Kapcsolat a hirdetővel...
Családi házak rovaton belül a(z) "Modern ház autósoknak!" című hirdetést látja. (fent)




























