
Eladó 95 nm-es Új építésű Egyéb Dabas
Budapesttől 35 percre, Dabas csendes részén, Egy új lakóparkban,eladó egy külön
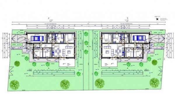
bejáratos 95 nm-es családi ház( NEM IKERHÁZ) 593 nm-es önálló. elkerített
telekkel. A házak egy telken de teljesen külön kert résszel készülnek, ezért
nagy előny, hogy a lakók nem zavarják egymást . A házban egy amerikai
konyha-nappali-étkező, 3 db hálószoba, tágas fürdőszoba, külön wc, előtér, 2db
fedett terasz, valamit garázs lesznek kialakítva . Műszaki paraméterek: Sávalap
vasbeton erősítéssel . Az épület falazata téglából készül 15 cm hőszigeteléssel.
A tetőre antracit cserép fedés kerül . A homlokzat színe fehér lesz. Nyílászárók
műanyag szerkezetű bukó -nyíló kivitelben 3 rétegű üvegezéssel készülnek. A ház
fűtése padlófűtés, amit hőszivattyús rendszer biztosít, ezekhez napelem kiállás
is biztosítva lesz ( így akár 0 Ft-os rezsijű otthonban élhet aki ezt a házat
választja). A ház bejárata előtt a járda viacolorból készül el. A vonat, busz
járat 10 percre, Iskola, óvoda, orvosi rendelő, gyógyszertár, bevásárló központ
szintén a közelben. Amennyiben felkeltette érdeklődését, hívja a os számot
bejáratos 95 nm-es családi ház( NEM IKERHÁZ) 593 nm-es önálló. elkerített
telekkel. A házak egy telken de teljesen külön kert résszel készülnek, ezért
nagy előny, hogy a lakók nem zavarják egymást . A házban egy amerikai
konyha-nappali-étkező, 3 db hálószoba, tágas fürdőszoba, külön wc, előtér, 2db
fedett terasz, valamit garázs lesznek kialakítva . Műszaki paraméterek: Sávalap
vasbeton erősítéssel . Az épület falazata téglából készül 15 cm hőszigeteléssel.
A tetőre antracit cserép fedés kerül . A homlokzat színe fehér lesz. Nyílászárók
műanyag szerkezetű bukó -nyíló kivitelben 3 rétegű üvegezéssel készülnek. A ház
fűtése padlófűtés, amit hőszivattyús rendszer biztosít, ezekhez napelem kiállás
is biztosítva lesz ( így akár 0 Ft-os rezsijű otthonban élhet aki ezt a házat
választja). A ház bejárata előtt a járda viacolorból készül el. A vonat, busz
járat 10 percre, Iskola, óvoda, orvosi rendelő, gyógyszertár, bevásárló központ
szintén a közelben. Amennyiben felkeltette érdeklődését, hívja a os számot
Részletek...
Adatlap
| Ár: | 89.990.000 Ft |
| Település: | Dabas |
| A hirdető: | Ingatlaniroda ajánlatából |
| Értékesítés típusa: | Eladó |
| Használtság: | Új építésű |
| Telek nagysága (m2) : | 593 |
| Épület hasznos területe (m2) : | 95 |
| Szobák száma: | 4 |
| Feladás dátuma: | 2025.11.23 |
| Eddig megtekintették 37 alkalommal | |
A hirdető adatai
Kapcsolat a hirdetővel...
Családi házak rovaton belül a(z) "Eladó 95 nm-es Új építésű Egyéb Dabas" című hirdetést látja. (fent)




























