
Új ikerház CSOK pluszra vár | - Hódmezővásárhely
Hódmezővásárhely most induló egy telken két különálló magánház
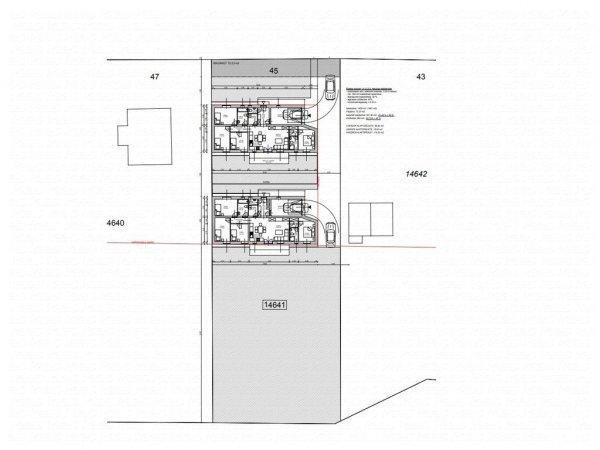
leköthetőHódmezővásárhely, Öreg-kishomokon, Mező utcában most induló egy telken
két különálló magánház leköthető, akár 2024 januári szerződéssel is! CSOK
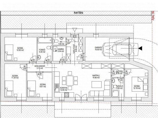
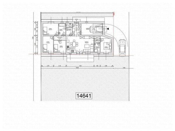
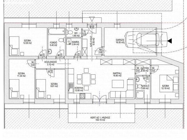
PLUSZNAK MEGFELELŐ!Paraméterek: 1. lakás: - emelt szintű szerkezetkész-
hőszivattyú- lakások alapterülete: 99.82 m2- garázs alapterülete: 16.50 m2-
hasznos alapterület: 116.32 m2- nappali plusz 4 hálószoba- dupla komfortos-
saját telekhányad 222,75 m2- zöld felület (kert) 104 m2- ár: 64,9 MFt2. lakás: -
emelt szintű szerkezetkész- hőszivattyú- lakások alapterülete: 99.82 m2- garázs
alapterülete: 16.50 m2- hasznos alapterület: 116.32 m2- nappali plusz 4
hálószoba- dupla komfortos- saját telekhányad 921 m2- zöld felület (kert) 805
m2- ár: 67,9 MFt | Alapterület (m˛): 116 m˛ alapterületű | Szobák száma: 4
szobás | Telek mérete (m˛): 222 m˛ telekméret | Épületek száma: 2 épületből
áll | Ingatlan hány szintes: 1 szintes ingatlan | Belmagasság (cm): 260 cm
belmagasságú | Alapozás: sávos beton alap | Falazat: téglafalazatú | Homlokzat
burkolata: homlokzat hőszigetelt | Tető formája: nyeregtetős | Ablakok: műanyag
ablakok, háromrétegű ablakok | Ajtók: műanyag bejárati | Árnyékolástechnika:
műanyag redőny | Ingatlan állapota: újépítésű | Küllem, stílus: modern | Terasz,
kert, udvar: saját kert | Komfort: összkomfortos | Közműszolgáltatások:
közvilágítás van, lakossági gáz bekötve, lakossági víz bekötve, esővízelvezetés
van, hulladékszállítás van, lakossági áram bekötve | Fűtés típusai: egyedi
fűtésű | Hűtés-fűtés hőleadók: padlófűtés, helység. szabályozható | Fűtés,
hőtermelők: hőszivattyús kazán | Telekommunikáció: több komm. szolgáltató |
Parkolás: gépjármű beálló, saját garázs | Megközelíthetőség: végig aszfalton
elérhető | Kilátás: udvarra néző | Lokáció: 3-as lakóparkban | Besorolás:
lakóház udvar | Felevehető támogatások: CSOK kedv. hitel, CSOK vissza nem tér. |
Biztonságtechnika: kaputelefon | Energiahtékonyság: AA++ min. energiaigényű | Az
ingatlan a KAAS kínálatában a KAAS-2896 azonosító számon található meg.
leköthetőHódmezővásárhely, Öreg-kishomokon, Mező utcában most induló egy telken
két különálló magánház leköthető, akár 2024 januári szerződéssel is! CSOK
PLUSZNAK MEGFELELŐ!Paraméterek: 1. lakás: - emelt szintű szerkezetkész-
hőszivattyú- lakások alapterülete: 99.82 m2- garázs alapterülete: 16.50 m2-
hasznos alapterület: 116.32 m2- nappali plusz 4 hálószoba- dupla komfortos-
saját telekhányad 222,75 m2- zöld felület (kert) 104 m2- ár: 64,9 MFt2. lakás: -
emelt szintű szerkezetkész- hőszivattyú- lakások alapterülete: 99.82 m2- garázs
alapterülete: 16.50 m2- hasznos alapterület: 116.32 m2- nappali plusz 4
hálószoba- dupla komfortos- saját telekhányad 921 m2- zöld felület (kert) 805
m2- ár: 67,9 MFt | Alapterület (m˛): 116 m˛ alapterületű | Szobák száma: 4
szobás | Telek mérete (m˛): 222 m˛ telekméret | Épületek száma: 2 épületből
áll | Ingatlan hány szintes: 1 szintes ingatlan | Belmagasság (cm): 260 cm
belmagasságú | Alapozás: sávos beton alap | Falazat: téglafalazatú | Homlokzat
burkolata: homlokzat hőszigetelt | Tető formája: nyeregtetős | Ablakok: műanyag
ablakok, háromrétegű ablakok | Ajtók: műanyag bejárati | Árnyékolástechnika:
műanyag redőny | Ingatlan állapota: újépítésű | Küllem, stílus: modern | Terasz,
kert, udvar: saját kert | Komfort: összkomfortos | Közműszolgáltatások:
közvilágítás van, lakossági gáz bekötve, lakossági víz bekötve, esővízelvezetés
van, hulladékszállítás van, lakossági áram bekötve | Fűtés típusai: egyedi
fűtésű | Hűtés-fűtés hőleadók: padlófűtés, helység. szabályozható | Fűtés,
hőtermelők: hőszivattyús kazán | Telekommunikáció: több komm. szolgáltató |
Parkolás: gépjármű beálló, saját garázs | Megközelíthetőség: végig aszfalton
elérhető | Kilátás: udvarra néző | Lokáció: 3-as lakóparkban | Besorolás:
lakóház udvar | Felevehető támogatások: CSOK kedv. hitel, CSOK vissza nem tér. |
Biztonságtechnika: kaputelefon | Energiahtékonyság: AA++ min. energiaigényű | Az
ingatlan a KAAS kínálatában a KAAS-2896 azonosító számon található meg.
Részletek...
Adatlap
| Ár: | 64.900.000 Ft |
| Település: | Hódmezővásárhely |
| A hirdető: | Ingatlaniroda ajánlatából |
| Értékesítés típusa: | Eladó |
| Használtság: | Használt |
| Telek nagysága (m2) : | 222 |
| Épület hasznos területe (m2) : | 116.00 |
| Szobák száma: | 4 |
| Feladás dátuma: | 2026.04.22 |
| Eddig megtekintették 71 alkalommal | |
A hirdető adatai
Kapcsolat a hirdetővel...
Családi házak rovaton belül a(z) "Új ikerház CSOK pluszra vár | - Hódmezővásárhely" című hirdetést látja. (fent)




























