
Tiszalúc központjában, többféle célra alkalmas ingatlan elad
Tiszalúc központjában, Széchenyi utcában, többfelé célra alkalmas, 95.80 m˛-es
földhivatali nyilvántartásban "kivett takarékszövetkezet"-ként nyilvántartott
ingatlan, 689 m˛-es telekkel eladó!Ár: 19.320.000, -Ft+ÁfaMűszaki
leírás:2001-ben épült, földszint tagolódású, tégla falszerekezetű épület. Födém
vasbeton gerendás, tetőformája, sátortető, cserepes lemez fedéssel. Homlokzata
vakolt színezet a lábazaton dísztégla burkolat látható. Homlokzati nyílászárói
műanyag szerkezetű ablakok, hőszigetelt üvegezéssel. Fűtését és
melegvíz-ellátását kombi gázkazán biztosítja, radiátor hőleadókkal.Helyiség
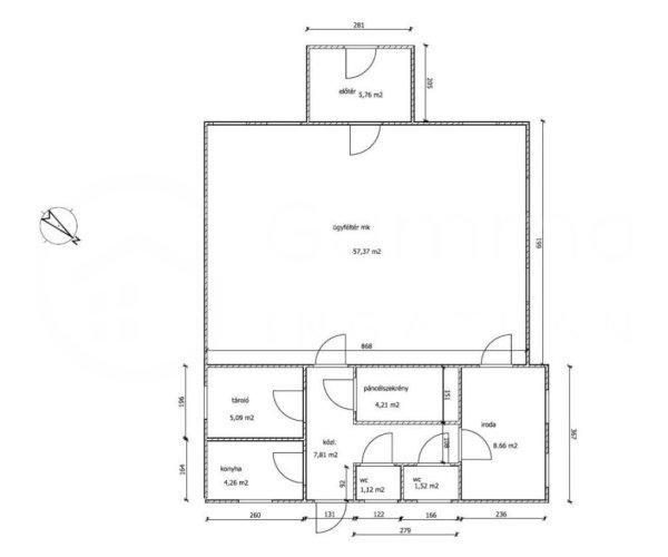
lista:- Előtér- Ügyféltér- Közlekedő- Tároló- Konyha- 2db WC.- Iroda-
PáncélszekrényKörnyezet:Település központi, oktatási intézmény és kereskedelmi
célúingatlanokkal, lakóházakkal szomszédos.Közlekedés:Aszfaltozott úton
megközelíthetőTömegközlekedés buszmegálló 50m
földhivatali nyilvántartásban "kivett takarékszövetkezet"-ként nyilvántartott
ingatlan, 689 m˛-es telekkel eladó!Ár: 19.320.000, -Ft+ÁfaMűszaki
leírás:2001-ben épült, földszint tagolódású, tégla falszerekezetű épület. Födém
vasbeton gerendás, tetőformája, sátortető, cserepes lemez fedéssel. Homlokzata
vakolt színezet a lábazaton dísztégla burkolat látható. Homlokzati nyílászárói
műanyag szerkezetű ablakok, hőszigetelt üvegezéssel. Fűtését és
melegvíz-ellátását kombi gázkazán biztosítja, radiátor hőleadókkal.Helyiség
lista:- Előtér- Ügyféltér- Közlekedő- Tároló- Konyha- 2db WC.- Iroda-
PáncélszekrényKörnyezet:Település központi, oktatási intézmény és kereskedelmi
célúingatlanokkal, lakóházakkal szomszédos.Közlekedés:Aszfaltozott úton
megközelíthetőTömegközlekedés buszmegálló 50m
Részletek...
Adatlap
| Ár: | 19.320.000 Ft |
| Település: | Tiszalúc |
| A hirdető: | Ingatlaniroda ajánlatából |
| Értékesítés típusa: | Eladó |
| Használtság: | Használt |
| Telek nagysága (m2) : | 689 |
| Épület hasznos területe (m2) : | 96.00 |
| Szobák száma: | 2 |
| Félszobák száma: | 2 |
| Fűtés: | Házközponti fűtéses (egyedi méréssel) |
| Ingatlan állapota: | Normál állapotú |
| Feladás dátuma: | 2026.01.22 |
| Eddig megtekintették 54 alkalommal | |
A hirdető adatai
Kapcsolat a hirdetővel...
Családi házak rovaton belül a(z) "Tiszalúc központjában, többféle célra alkalmas ingatlan elad" című hirdetést látja. (fent)




























