
Új építésű családi ház tervezőasztalról! - Miskolc
Miskolc, Árpád úton, új építésű, 3 szobás, 109 m˛-es családi ház, 248 m˛-es
telekkel eladó!A ház egy meglévő épületből lesz teljesmértékben átépítve, ahogy
a tervrajzokon látható.Az ár nem tartalmazza a konyhaszekrényt illetve a
lámpatesteket, de igény esetén egyedi megállapodással ezek is megvalósíthatók.A
tervek szerinti kivitelezést kisebb mértékben módosítható.Várható befejezés a
40%-os vételár megfizetését követően kb. 6 hónap.Helyiség
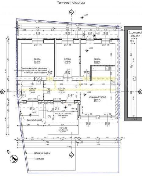
lista:-Szoba-Szoba-Szoba-Fürdő-Előtér-Konyha +étkező-Fedett terasz-TeraszMűszaki
leírás:A meglévő épület bővítése a hátsókert felé történik, az bővített épület
is nyeregtetős kialakítású lesz. Az épület környezetbe való illeszkedése nem
változik.Alkalmazott új szerkezetek, szerkezeti kialakítás:Alapozás:Az épület
alapozása sávalapozással készült. Lábazat faragott mészkő, bővítés monolit
beton.Szigetelés:Meglévő megmaradó, új részen sbs. bitumenes lemez.Teherhordó
szerkezet:Meglévő épületnél a falazott kőalapra km. tégla falszerkezet épült,
szerkezeti mozgásra falrepedés nem észlelhető.Új falszerkezet Porotherm 30 cm
vastagságú falazó elemből készül, rendszer ragasztójával rakva. Külső oldalra
mind a régi mind pedig az új falazatra 15 cm hőszigetelés és vékonyvakolat
kerül. A homlokzati nyílásáthidalások Porotherm elemmagas áthidalóval.
Szerkezeti változtatás a statikus tervező általelőírtak
szerint.Válaszfalak:Szerelt gipszkarton vagy válaszfaltégla szerkezetű.
Nyílásáthidalások: A homlokzati nyílásáthidalások Porotherm elemmagas
áthidalóval.Nyílászárók: Korszerű, műanyag hőszigetelt típus szerkezetek,
hőszigetelt üvegezéssel.Födémszerkezet, új látszó fa gerendás födém. A
bővítésnél monolit vb. födém. Koszorú a falazat tetején hagyományos
kialakításban készül, vasbeton anyagú 25/30 cm keresztmetszetű, külső oldali
hőszigeteléssel.Hőszigetelés, a fal fokozott hővédelme miatt 15 cm EPS anyagú
hőszigetelés kerül beépítésre a külső oldalon. A szarufák közé és alá összesen
25 cm hőszigetelés kerül eltolásban rakva.Fedélszerkezet, fa tetőszerkezet
készül. Szerkezete: 12°-os és 37°-os. Cserép héjazat alá 90 cm tengelyosztású
szaruállások kerülnek. A talpszelemen tőcsavarokkal a koszorúba
lefogatott.Héjazat, antracit színű cserépfedés, alátéthéjazattal készül, a
tetőléc 5/5 cm anyagú.Fűtés: hőszivattyúval szabályozott padló és/vagy radiátor
fűtés.Meleg-víz: hőszivattyú által előállítva tartályos rendszer, mely
későbbiekben megújuló energia csatlakozással gazdaságosan üzemeltethető.Főzés:
villany /gáztűzhely.Közlekedés:Az ingatlan autóval közvetlenül megközelíthető,
parkolás a telken belül.Tömegközlekedés megállói 0,5 perc sétára találhatóak.
telekkel eladó!A ház egy meglévő épületből lesz teljesmértékben átépítve, ahogy
a tervrajzokon látható.Az ár nem tartalmazza a konyhaszekrényt illetve a
lámpatesteket, de igény esetén egyedi megállapodással ezek is megvalósíthatók.A
tervek szerinti kivitelezést kisebb mértékben módosítható.Várható befejezés a
40%-os vételár megfizetését követően kb. 6 hónap.Helyiség
lista:-Szoba-Szoba-Szoba-Fürdő-Előtér-Konyha +étkező-Fedett terasz-TeraszMűszaki
leírás:A meglévő épület bővítése a hátsókert felé történik, az bővített épület
is nyeregtetős kialakítású lesz. Az épület környezetbe való illeszkedése nem
változik.Alkalmazott új szerkezetek, szerkezeti kialakítás:Alapozás:Az épület
alapozása sávalapozással készült. Lábazat faragott mészkő, bővítés monolit
beton.Szigetelés:Meglévő megmaradó, új részen sbs. bitumenes lemez.Teherhordó
szerkezet:Meglévő épületnél a falazott kőalapra km. tégla falszerkezet épült,
szerkezeti mozgásra falrepedés nem észlelhető.Új falszerkezet Porotherm 30 cm
vastagságú falazó elemből készül, rendszer ragasztójával rakva. Külső oldalra
mind a régi mind pedig az új falazatra 15 cm hőszigetelés és vékonyvakolat
kerül. A homlokzati nyílásáthidalások Porotherm elemmagas áthidalóval.
Szerkezeti változtatás a statikus tervező általelőírtak
szerint.Válaszfalak:Szerelt gipszkarton vagy válaszfaltégla szerkezetű.
Nyílásáthidalások: A homlokzati nyílásáthidalások Porotherm elemmagas
áthidalóval.Nyílászárók: Korszerű, műanyag hőszigetelt típus szerkezetek,
hőszigetelt üvegezéssel.Födémszerkezet, új látszó fa gerendás födém. A
bővítésnél monolit vb. födém. Koszorú a falazat tetején hagyományos
kialakításban készül, vasbeton anyagú 25/30 cm keresztmetszetű, külső oldali
hőszigeteléssel.Hőszigetelés, a fal fokozott hővédelme miatt 15 cm EPS anyagú
hőszigetelés kerül beépítésre a külső oldalon. A szarufák közé és alá összesen
25 cm hőszigetelés kerül eltolásban rakva.Fedélszerkezet, fa tetőszerkezet
készül. Szerkezete: 12°-os és 37°-os. Cserép héjazat alá 90 cm tengelyosztású
szaruállások kerülnek. A talpszelemen tőcsavarokkal a koszorúba
lefogatott.Héjazat, antracit színű cserépfedés, alátéthéjazattal készül, a
tetőléc 5/5 cm anyagú.Fűtés: hőszivattyúval szabályozott padló és/vagy radiátor
fűtés.Meleg-víz: hőszivattyú által előállítva tartályos rendszer, mely
későbbiekben megújuló energia csatlakozással gazdaságosan üzemeltethető.Főzés:
villany /gáztűzhely.Közlekedés:Az ingatlan autóval közvetlenül megközelíthető,
parkolás a telken belül.Tömegközlekedés megállói 0,5 perc sétára találhatóak.
Részletek...
Adatlap
| Ár: | 65.000.000 Ft |
| Település: | Miskolc |
| A hirdető: | Ingatlaniroda ajánlatából |
| Értékesítés típusa: | Eladó |
| Használtság: | Új építésű |
| Telek nagysága (m2) : | 248 |
| Épület hasznos területe (m2) : | 109.00 |
| Szobák száma: | 3 |
| Feladás dátuma: | 2026.04.22 |
| Eddig megtekintették 87 alkalommal | |
A hirdető adatai
Kapcsolat a hirdetővel...
Családi házak rovaton belül a(z) "Új építésű családi ház tervezőasztalról! - Miskolc" című hirdetést látja. (fent)


























