
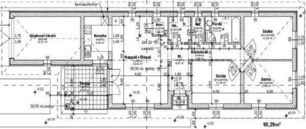
Hajdúsámsonban, 80 m2-es, N+3 szobás, egyszintes, hőszigetel
Hajdúsámson központi részén, 2025. év végi átadással, 80 m2-es, nappali+ 3
szobás, hőszivattyús családi ház, magas műszaki tartalommal, garázzsal, 370
m2-es telken eladó!A vételár tartalmazza a telekárat.Jellemzői:- Értéktartó,
csendes környéken helyezkedik el- A ház új építésű, a belső még igény szerint
alakítható- Porotherm 30 N+F tégla falazat- Beton tetőcserép- Napelem
előkészítés- 15 cm Austrotherm AT-H80 hőszigetelés a homlokzati falakon, mely
biztosítja az alacsony fűtési költséget- A tetőtérben 35 cm vastagságú
Therwoolin hőszigetelés- 12 cm Austrotherm AT-N100 aljzatszigetelés- A fűtést
ellátását egyedileg beépített, egyedi mérőhellyel ellátott hőszivattyú
biztosítja- A ház padlófűtéses, mely egyenletes hőeloszlást biztosít, egyben
növeli a hőszivattyú hatékonyságát- Hő- és hangszigetelt ablakok: 3 rétegű, 6
légkamrás, műanyag profilrendszerű, horganyzott idomacél merevítéssel (0,6
W/m2K)- Elektromos redőny előkészítés- Inverteres, hűtő- fűtő, hőszivattyús
klíma (5 kW)- Amerikai konyhás nappali- Belső kialakítás flexibilis, az Ön
elképzelése szerint alakítunk ki mindent- Választható burkolatok: Kerámia
burkolat 6 000 Ft/m2-ig, laminált parketta 6 000 Ft/m2-ig a vételárban- 17 m2-es
garázs- 11 m2-es terasz- Igény szerint füvesítés, parkosítás, öntözőrendszer,
sziklakert, bográcsozási lehetőség, pergolla, filagória kialakításra kerülhet a
költözésre- Tömegközlekedés kiváló- Iskolához, óvodához, üzletekhez, orvosi
rendelőhöz, patikához közel helyezkedik el!Várható befejezés: 2025. December
31.Babaváró, illetékmentesség, CSOK+ hitel igénybe vehető a házra!Irányár: 65
MFt
szobás, hőszivattyús családi ház, magas műszaki tartalommal, garázzsal, 370
m2-es telken eladó!A vételár tartalmazza a telekárat.Jellemzői:- Értéktartó,
csendes környéken helyezkedik el- A ház új építésű, a belső még igény szerint
alakítható- Porotherm 30 N+F tégla falazat- Beton tetőcserép- Napelem
előkészítés- 15 cm Austrotherm AT-H80 hőszigetelés a homlokzati falakon, mely
biztosítja az alacsony fűtési költséget- A tetőtérben 35 cm vastagságú
Therwoolin hőszigetelés- 12 cm Austrotherm AT-N100 aljzatszigetelés- A fűtést
ellátását egyedileg beépített, egyedi mérőhellyel ellátott hőszivattyú
biztosítja- A ház padlófűtéses, mely egyenletes hőeloszlást biztosít, egyben
növeli a hőszivattyú hatékonyságát- Hő- és hangszigetelt ablakok: 3 rétegű, 6
légkamrás, műanyag profilrendszerű, horganyzott idomacél merevítéssel (0,6
W/m2K)- Elektromos redőny előkészítés- Inverteres, hűtő- fűtő, hőszivattyús
klíma (5 kW)- Amerikai konyhás nappali- Belső kialakítás flexibilis, az Ön
elképzelése szerint alakítunk ki mindent- Választható burkolatok: Kerámia
burkolat 6 000 Ft/m2-ig, laminált parketta 6 000 Ft/m2-ig a vételárban- 17 m2-es
garázs- 11 m2-es terasz- Igény szerint füvesítés, parkosítás, öntözőrendszer,
sziklakert, bográcsozási lehetőség, pergolla, filagória kialakításra kerülhet a
költözésre- Tömegközlekedés kiváló- Iskolához, óvodához, üzletekhez, orvosi
rendelőhöz, patikához közel helyezkedik el!Várható befejezés: 2025. December
31.Babaváró, illetékmentesség, CSOK+ hitel igénybe vehető a házra!Irányár: 65
MFt
Részletek...
Adatlap
| Ár: | 65.000.000 Ft |
| Település: | Hajdúsámson |
| A hirdető: | Ingatlaniroda ajánlatából |
| Értékesítés típusa: | Eladó |
| Használtság: | Új építésű |
| Telek nagysága (m2) : | 370 |
| Épület hasznos területe (m2) : | 80.00 |
| Szobák száma: | 4 |
| Feladás dátuma: | 2026.04.22 |
| Eddig megtekintették 82 alkalommal | |
A hirdető adatai
Kapcsolat a hirdetővel...
Családi házak rovaton belül a(z) "Hajdúsámsonban, 80 m2-es, N+3 szobás, egyszintes, hőszigetel" című hirdetést látja. (fent)




























