
Hajdúsámsonban, 102 m2-es, N+3 szobás, egyszintes, hőszigete
Hajdúsámson új építésű részén, aszfaltozott utcában, 2025. év végi átadással,
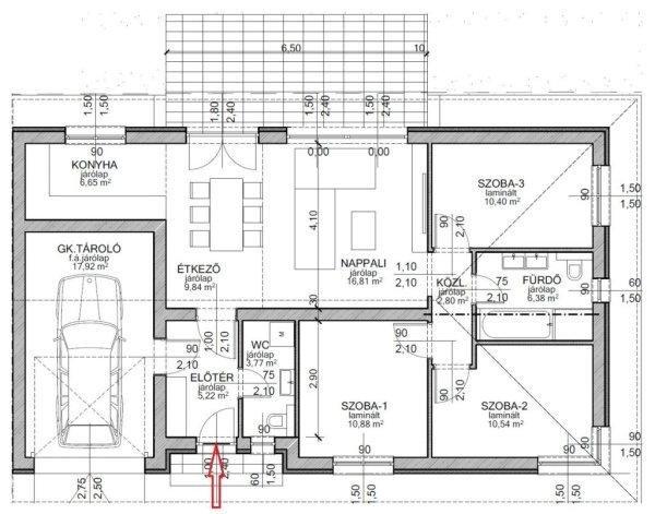
102 m2-es, nappali+ 3 szobás, garázskapcsolatos ikerház, magas műszaki
tartalommal, 450 m2-es telken eladó!A vételár tartalmazza a telekárat és a
közműveket!Jellemzői:- Értéktartó, csendes környéken helyezkedik el- A ház új
építésű, a belső még igény szerint alakítható- Porotherm 30 N+F tégla falazat-
Beton tetőcserép- Napelem előkészítés- 15 cm Austrotherm AT-H80 hőszigetelés a
homlokzati falakon, mely biztosítja az alacsony fűtési költséget- A tetőtérben
25 cm vastagságú Therwoolin hőszigetelés- 10 cm Austrotherm AT-N100
aljzatszigetelés- A fűtést és a melegvíz ellátását egyedileg beépített, egyedi
mérőhellyel ellátott kondenzációs, turbós kombi kazán biztosítja- A ház
padlófűtéses, mely egyenletes hőeloszlást biztosít, egyben növeli a kondenzációs
kazán hatékonyságát- Inverteres, hűtő-fűtő klíma az árban- Hőszivattyús fűtéssel
is kérhető (+ 3 MFt)- Hő- és hangszigetelt ablakok kívül barna színben: 3
rétegű, 6 légkamrás, műanyag profilrendszerű, horganyzott idomacél merevítéssel
(0,6 W/m2K)- Elektromos redőny előkészítés- A ház külső és belső tere egyaránt
prémium kategóriájú, LED technológiás RGB világítással lesznek szerelve- 34
m2-es, amerikai konyhás nappali- Belső kialakítás flexibilis, az Ön elképzelése
szerint alakítunk ki mindent- Választható burkolatok: Kerámia burkolat 6 000
Ft/m2-ig, laminált parketta 6 000 Ft/m2-ig a vételárban- 18 m2-es garázs-
Homlokzati burkolás a vételárban a látványtervnek megfelelően- 22 m2-es terasz-
Elemes betonkerítés a vételárban- Igény szerint füvesítés, parkosítás,
öntözőrendszer, sziklakert, bográcsozási lehetőség, pergolla, filagória
kialakításra kerülhet a költözésre- Tömegközlekedés kiváló- Iskolához, óvodához,
üzletekhez, orvosi rendelőhöz, patikához közel helyezkedik el!Várható befejezés:
2025. December 31.Babaváró, illetékmentesség, CSOK+ hitel igénybe vehető a
házra!Irányár: 55,9 MFt
102 m2-es, nappali+ 3 szobás, garázskapcsolatos ikerház, magas műszaki
tartalommal, 450 m2-es telken eladó!A vételár tartalmazza a telekárat és a
közműveket!Jellemzői:- Értéktartó, csendes környéken helyezkedik el- A ház új
építésű, a belső még igény szerint alakítható- Porotherm 30 N+F tégla falazat-
Beton tetőcserép- Napelem előkészítés- 15 cm Austrotherm AT-H80 hőszigetelés a
homlokzati falakon, mely biztosítja az alacsony fűtési költséget- A tetőtérben
25 cm vastagságú Therwoolin hőszigetelés- 10 cm Austrotherm AT-N100
aljzatszigetelés- A fűtést és a melegvíz ellátását egyedileg beépített, egyedi
mérőhellyel ellátott kondenzációs, turbós kombi kazán biztosítja- A ház
padlófűtéses, mely egyenletes hőeloszlást biztosít, egyben növeli a kondenzációs
kazán hatékonyságát- Inverteres, hűtő-fűtő klíma az árban- Hőszivattyús fűtéssel
is kérhető (+ 3 MFt)- Hő- és hangszigetelt ablakok kívül barna színben: 3
rétegű, 6 légkamrás, műanyag profilrendszerű, horganyzott idomacél merevítéssel
(0,6 W/m2K)- Elektromos redőny előkészítés- A ház külső és belső tere egyaránt
prémium kategóriájú, LED technológiás RGB világítással lesznek szerelve- 34
m2-es, amerikai konyhás nappali- Belső kialakítás flexibilis, az Ön elképzelése
szerint alakítunk ki mindent- Választható burkolatok: Kerámia burkolat 6 000
Ft/m2-ig, laminált parketta 6 000 Ft/m2-ig a vételárban- 18 m2-es garázs-
Homlokzati burkolás a vételárban a látványtervnek megfelelően- 22 m2-es terasz-
Elemes betonkerítés a vételárban- Igény szerint füvesítés, parkosítás,
öntözőrendszer, sziklakert, bográcsozási lehetőség, pergolla, filagória
kialakításra kerülhet a költözésre- Tömegközlekedés kiváló- Iskolához, óvodához,
üzletekhez, orvosi rendelőhöz, patikához közel helyezkedik el!Várható befejezés:
2025. December 31.Babaváró, illetékmentesség, CSOK+ hitel igénybe vehető a
házra!Irányár: 55,9 MFt
Részletek...
Adatlap
| Ár: | 55.900.000 Ft |
| Település: | Hajdúsámson |
| A hirdető: | Ingatlaniroda ajánlatából |
| Értékesítés típusa: | Eladó |
| Használtság: | Új építésű |
| Telek nagysága (m2) : | 450 |
| Épület hasznos területe (m2) : | 102.00 |
| Szobák száma: | 4 |
| Fűtés: | Házközponti fűtéses (egyedi méréssel) |
| Feladás dátuma: | 2026.01.22 |
| Eddig megtekintették 71 alkalommal | |
A hirdető adatai
Kapcsolat a hirdetővel...
Családi házak rovaton belül a(z) "Hajdúsámsonban, 102 m2-es, N+3 szobás, egyszintes, hőszigete" című hirdetést látja. (fent)




























