
Új Építésű, Panorámás Családi ház eladó Cserszegtomajon.
Új Építésű, Panorámás Családi ház eladó Cserszegtomajon.A LIDO HOME KESZTHELY
által kínált CSERSZEGTOMAJI ÚJ ÉPÍTÉSŰ CSALÁDI HÁZ jellemzői:A Balaton NY-i
medencéjében,Közép-Európa legnagyobb területét magában foglaló nagyközségében
Cserszegtomaj településén ajánlom figyelmébe ezt a lenyűgöző panorámával
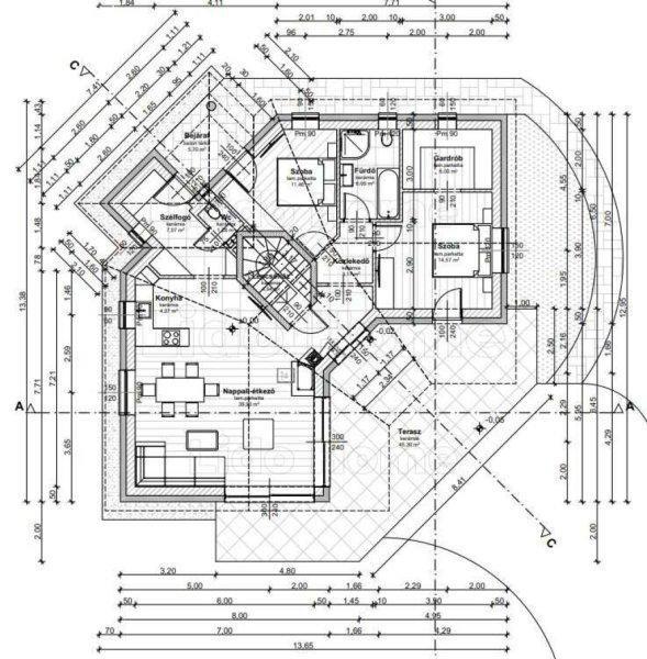
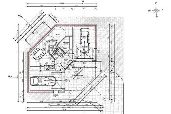
rendelkező, új építésű családi házat!Az ingatlan 1678 nm területen fekszik, a
kert kialakítása még nem történt meg, ez már az új tulajdonos elképzelései
alapján fognak befejeződni. A lakóház hasznos alapterülete 235,26
nm.Tartószerkezeti falazata Leier 30 N+F tégla, M50 falazó habarcs, és Leier
pincefalazó.Leier előregyártott födém került beépítésre.Válaszfalai Leier 10 N+F
téglából, és M50 falazó habarcsból készültek.Tető héjazata Terran Rundo antracit
színű cserépfedés.Hőszigetelése a padlásfödémeken 30 cm Rockwool Multirock
ásványgyapot, külsőfalakra 20 cm Bachl-Nikecell EPS 80 H hőszigetelés került, a
padlóban 8 cm lépésállóEPS hőszigetelés van.Hűtésről és fűtésről hőszivattyús
rendszer gondoskodik. A fűtésért padlófűtés felel, míg a hűtést fan-coilok
biztosítják.Műanyag szerkezetű, 3 rétegű, hőszigetelt üvegezéssel ellátott
nyílászárók kerültek beépítésre.D-i tájolásának és a hatalmas üveg felületeknek
köszönhetően belső terei világosak.Szinte minden pontjáról lélegzetelállító
panoráma tárul elénk a Balaton és a Keszthelyi-öböl irányába.Udvara teljesen
körbekerített, utcafronton elektromos kaput szereltek fel.Kocsifeljáró és az
épület előtti rész beton térkő burkolatot kapott.Amennyiben a LIDO HOME által
kínált CSERSZEGTOMAJI VILLAPARKI CSALÁDI HÁZ, vagy bármely a kínálatunkban
található INGATLAN felkeltette érdeklődését, hívjon bármikor a megadott
telefonszámon.Vásárolna, de nincs rá keret? Kollégám díjmentes, banksemleges
hitelügyintézéssel áll rendelkezésére.LIDO HOME - Ingatlanok egy életen át!
által kínált CSERSZEGTOMAJI ÚJ ÉPÍTÉSŰ CSALÁDI HÁZ jellemzői:A Balaton NY-i
medencéjében,Közép-Európa legnagyobb területét magában foglaló nagyközségében
Cserszegtomaj településén ajánlom figyelmébe ezt a lenyűgöző panorámával
rendelkező, új építésű családi házat!Az ingatlan 1678 nm területen fekszik, a
kert kialakítása még nem történt meg, ez már az új tulajdonos elképzelései
alapján fognak befejeződni. A lakóház hasznos alapterülete 235,26
nm.Tartószerkezeti falazata Leier 30 N+F tégla, M50 falazó habarcs, és Leier
pincefalazó.Leier előregyártott födém került beépítésre.Válaszfalai Leier 10 N+F
téglából, és M50 falazó habarcsból készültek.Tető héjazata Terran Rundo antracit
színű cserépfedés.Hőszigetelése a padlásfödémeken 30 cm Rockwool Multirock
ásványgyapot, külsőfalakra 20 cm Bachl-Nikecell EPS 80 H hőszigetelés került, a
padlóban 8 cm lépésállóEPS hőszigetelés van.Hűtésről és fűtésről hőszivattyús
rendszer gondoskodik. A fűtésért padlófűtés felel, míg a hűtést fan-coilok
biztosítják.Műanyag szerkezetű, 3 rétegű, hőszigetelt üvegezéssel ellátott
nyílászárók kerültek beépítésre.D-i tájolásának és a hatalmas üveg felületeknek
köszönhetően belső terei világosak.Szinte minden pontjáról lélegzetelállító
panoráma tárul elénk a Balaton és a Keszthelyi-öböl irányába.Udvara teljesen
körbekerített, utcafronton elektromos kaput szereltek fel.Kocsifeljáró és az
épület előtti rész beton térkő burkolatot kapott.Amennyiben a LIDO HOME által
kínált CSERSZEGTOMAJI VILLAPARKI CSALÁDI HÁZ, vagy bármely a kínálatunkban
található INGATLAN felkeltette érdeklődését, hívjon bármikor a megadott
telefonszámon.Vásárolna, de nincs rá keret? Kollégám díjmentes, banksemleges
hitelügyintézéssel áll rendelkezésére.LIDO HOME - Ingatlanok egy életen át!
Részletek...
Adatlap
| Ár: | 199.000.000 Ft |
| Település: | Cserszegtomaj |
| A hirdető: | Ingatlaniroda ajánlatából |
| Értékesítés típusa: | Eladó |
| Használtság: | Új építésű |
| Telek nagysága (m2) : | 1678 |
| Épület hasznos területe (m2) : | 235.00 |
| Szobák száma: | 3 |
| Feladás dátuma: | 2026.04.22 |
| Eddig megtekintették 98 alkalommal | |
A hirdető adatai
Kapcsolat a hirdetővel...
Családi házak rovaton belül a(z) "Új Építésű, Panorámás Családi ház eladó Cserszegtomajon." című hirdetést látja. (fent)




























