
Eladó új építésű, 135,94 m2-es CSALÁDI HÁZ Luxus Villaparkba
Legyen az Ön új építésű otthona CSERSZEGTOMAJON!Közép-Európa legnagyobb
területét magában foglaló nagyközségében CSERSZEGTOMAJON új építésű, vidéki
stílusú CSALÁDI HÁZ eladó!A LIDO HOME KESZTHELY által kínált CSERSZEGTOMAJI ÚJ
ÉPÍTÉSŰ CSALÁDI HÁZ jellemzői:- kiváló minőségű tömör szerkezet 44 cm-es
Porotherm téglafalazattal- innovatív energiakoncepció hőszivattyúval,
padlófűtéssel, PV-rendszerrel, áramenergia tárolóval, elektromos autótöltő,
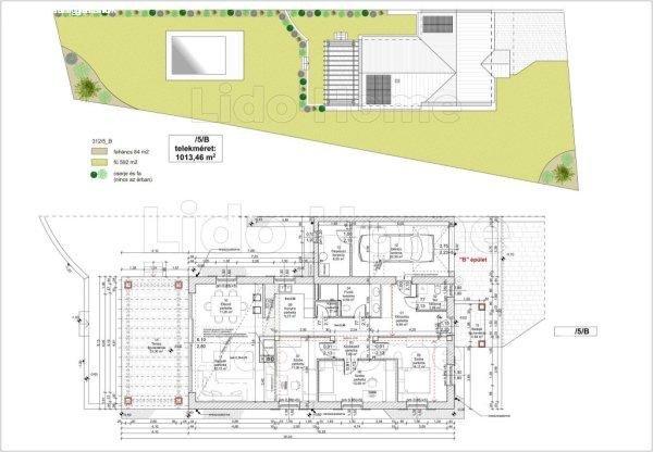
nyitott fatüzelésű kandalló- a saját telek 1013 m2-es, a lakótér ca. 135 m2-es,
nagy terasszal 33 m2, garázzsal 20 m2, úszómedence kérhető külön díj ellenében-
3 szoba, konyha, nappali étkezővel, háztartási helyiség, fürdőszoba, vendég WC,
terasz, garázs- akadálymentes tágas terek, a lakótérben több mint 3 m-es
belmagassággal- luxus kivitelezés, valódi fa parkettával, kőburkolatokkal és fa
nyílászárókkal- műszaki csomag riasztórendszerrel, LAN kábelezéssel, klímákkal
és intelligens energiaszabályozással- tágas, napfényes a helyiségek, páratlan
kilátással a szép természeti környezetre - Toscanai hangulat!Az építkezés
szerződéskötés után kezdődik, készültség fokával arányos fizetési ütemezésselA
lakóparkban összesen 13 lakóegység épül a legmagasabb minőségben, német-magyar
építőipari cég általAmennyiben a LIDO HOME által kínált CSERSZEGTOMAJI
VILLAPARKI CSALÁDI HÁZ, vagy bármely a kínálatunkban található INGATLAN
felkeltette érdeklődését, hívjon bármikor a megadott telefonszámon.Vásárolna, de
nincs rá keret? Kollégám díjmentes, banksemleges hitelügyintézéssel áll
rendelkezésére.LIDO HOME - Ingatlanok egy életen át!
területét magában foglaló nagyközségében CSERSZEGTOMAJON új építésű, vidéki
stílusú CSALÁDI HÁZ eladó!A LIDO HOME KESZTHELY által kínált CSERSZEGTOMAJI ÚJ
ÉPÍTÉSŰ CSALÁDI HÁZ jellemzői:- kiváló minőségű tömör szerkezet 44 cm-es
Porotherm téglafalazattal- innovatív energiakoncepció hőszivattyúval,
padlófűtéssel, PV-rendszerrel, áramenergia tárolóval, elektromos autótöltő,
nyitott fatüzelésű kandalló- a saját telek 1013 m2-es, a lakótér ca. 135 m2-es,
nagy terasszal 33 m2, garázzsal 20 m2, úszómedence kérhető külön díj ellenében-
3 szoba, konyha, nappali étkezővel, háztartási helyiség, fürdőszoba, vendég WC,
terasz, garázs- akadálymentes tágas terek, a lakótérben több mint 3 m-es
belmagassággal- luxus kivitelezés, valódi fa parkettával, kőburkolatokkal és fa
nyílászárókkal- műszaki csomag riasztórendszerrel, LAN kábelezéssel, klímákkal
és intelligens energiaszabályozással- tágas, napfényes a helyiségek, páratlan
kilátással a szép természeti környezetre - Toscanai hangulat!Az építkezés
szerződéskötés után kezdődik, készültség fokával arányos fizetési ütemezésselA
lakóparkban összesen 13 lakóegység épül a legmagasabb minőségben, német-magyar
építőipari cég általAmennyiben a LIDO HOME által kínált CSERSZEGTOMAJI
VILLAPARKI CSALÁDI HÁZ, vagy bármely a kínálatunkban található INGATLAN
felkeltette érdeklődését, hívjon bármikor a megadott telefonszámon.Vásárolna, de
nincs rá keret? Kollégám díjmentes, banksemleges hitelügyintézéssel áll
rendelkezésére.LIDO HOME - Ingatlanok egy életen át!
Részletek...
Adatlap
| Ár: | 198.510.000 Ft |
| Település: | Cserszegtomaj |
| A hirdető: | Ingatlaniroda ajánlatából |
| Értékesítés típusa: | Eladó |
| Használtság: | Új építésű |
| Telek nagysága (m2) : | 1013 |
| Épület hasznos területe (m2) : | 135 |
| Szobák száma: | 4 |
| Feladás dátuma: | 2025.11.23 |
| Eddig megtekintették 42 alkalommal | |
A hirdető adatai
Kapcsolat a hirdetővel...
Családi házak rovaton belül a(z) "Eladó új építésű, 135,94 m2-es CSALÁDI HÁZ Luxus Villaparkba" című hirdetést látja. (fent)




























