
Csabrendek központjában felújítandó családi ház eladó!
A LIDO HOME KESZTHELY eladásra kínál CSABRENDEKI CSALÁDI HÁZAT.A LIDO HOME
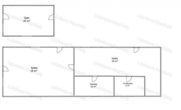
KESZTHELY által kínált CSABRENDEKI CSALÁDI HÁZ jellemzői:- a 70 m˛-es családi
ház Csabrendek központjában található- a családi ház 1950-es években téglából
épült, kívül belül egyaránt felújítandó- 2 szoba, konyha, fürdő +wc lett
kialakítva- az utcafrontra nyíló egy szobás kis ház üzletként hasznosítható- az
ingatlan összközműves, víz, villany, gáz,csatorna bevezetve- a 626 m˛-es teleken
kétállásos, szerelőaknás garázs található- parkolási lehetőség garázsban és
fedett beállón megoldott- régi fa nyílászárók vannakCsabrendek a Bakony utolsó
nyúlványán a 374 méter magas Csúcsos-hegy lábánál fekszik. A nagy kiterjedésű
községet az ?Öreg-hegy? mint egy ölelő kar tavasszal virágzó pompájával, ősszel
ezerszínű szépségével fogja körül. Az örökké zöldben ékeskedő fenyvesei pedig
egész évben melegséggel töltik el a vidéken élők szívét. Csabrendek Sümegtől 4
km-re található.Amennyiben a LIDO HOME által kínált CSABRENDEKI CSALÁDI HÁZ,
vagy bármely a kínálatunkban található INGATLAN felkeltette érdeklődését, hívjon
bizalommal a megadott telefonszámon.Amennyiben ingatlant keres díjmentes
keresőszolgálattal állok rendelkezésére.Vásárolna, de nincs rá keret? Kollégám
díjmentes, bank semleges hitelügyintézéssel áll rendelkezésére.LIDO HOME -
Ingatlanok egy életen át!
KESZTHELY által kínált CSABRENDEKI CSALÁDI HÁZ jellemzői:- a 70 m˛-es családi
ház Csabrendek központjában található- a családi ház 1950-es években téglából
épült, kívül belül egyaránt felújítandó- 2 szoba, konyha, fürdő +wc lett
kialakítva- az utcafrontra nyíló egy szobás kis ház üzletként hasznosítható- az
ingatlan összközműves, víz, villany, gáz,csatorna bevezetve- a 626 m˛-es teleken
kétállásos, szerelőaknás garázs található- parkolási lehetőség garázsban és
fedett beállón megoldott- régi fa nyílászárók vannakCsabrendek a Bakony utolsó
nyúlványán a 374 méter magas Csúcsos-hegy lábánál fekszik. A nagy kiterjedésű
községet az ?Öreg-hegy? mint egy ölelő kar tavasszal virágzó pompájával, ősszel
ezerszínű szépségével fogja körül. Az örökké zöldben ékeskedő fenyvesei pedig
egész évben melegséggel töltik el a vidéken élők szívét. Csabrendek Sümegtől 4
km-re található.Amennyiben a LIDO HOME által kínált CSABRENDEKI CSALÁDI HÁZ,
vagy bármely a kínálatunkban található INGATLAN felkeltette érdeklődését, hívjon
bizalommal a megadott telefonszámon.Amennyiben ingatlant keres díjmentes
keresőszolgálattal állok rendelkezésére.Vásárolna, de nincs rá keret? Kollégám
díjmentes, bank semleges hitelügyintézéssel áll rendelkezésére.LIDO HOME -
Ingatlanok egy életen át!
Részletek...
Adatlap
| Ár: | 8.900.000 Ft |
| Település: | Csabrendek |
| A hirdető: | Ingatlaniroda ajánlatából |
| Értékesítés típusa: | Eladó |
| Használtság: | Használt |
| Telek nagysága (m2) : | 626 |
| Épület hasznos területe (m2) : | 70.00 |
| Szobák száma: | 3 |
| Ingatlan állapota: | Felújítandó |
| Feladás dátuma: | 2026.04.22 |
| Eddig megtekintették 70 alkalommal | |
A hirdető adatai
Kapcsolat a hirdetővel...
Családi házak rovaton belül a(z) "Csabrendek központjában felújítandó családi ház eladó!" című hirdetést látja. (fent)




























