
Eladó 120m2-es Családi ház, Érd
Érd legkedveltebb környékén, Fenyves-parkvárosban, kínálok megvételre egy
újépítésű, önálló családi házat.Légy te is Érd lakója, használd ki Budapest
közelségét, és a kertivárosias jellegű, biztonságos és nyugodt környék előnyeit
egyaránt! Ha a te vágyad is közel lakni minden fontos infrastruktúrához, mégis
zöldövezetben, és természet közelben élni, akkor ne habozz tovább, mert vár az
új otthonod Érden, az Kerékgyártó utcában.Közlekedés szempontjából kiváló,
autóval 20 perc alatt Budapest belvárosban találjuk magunkat, a tömegközlekedést
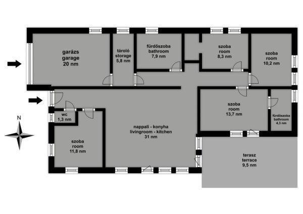
pedig számos buszjárat illetve vonat segíti. A ház amerikai konyhás nappalival,
négy kényelmes méretű hálószobával és két fürdőszobával tökéletes színtere lesz
a mindennapi családi életnek. A teraszon és a nagy méretű kertben pedig
kipihenheted a mindennapi fáradalmakat, és akár baráti, családi összejöveteleket
is tarthatsz. Telek mérete: 817 nmA ház nettó alapterülete: 110 nm + 20 nm
garázs + 9,5 nm fedett teraszEgy állásos garázs, további egy beálló telken
belül!Napelem!Elektromos kapu, garázs ajtó!Színezett ablakok!Elektromos
redőnyök!Hőszivattyú!Külön, garázsból is nyíló tároló, és gardrób, rengeteg
tárolási lehetőséggel! A várható befejezés 2025 év vége, az ingatlan a modern
építési követelményeknek megfelelően épül, mind szerkezetileg és műszakilag,
mind látvány szempontjából.30as porotherm tégla15 cm homlokzati szigetelés30 cm
födém szigetelés3 rétegű műanyag nyílászárók A burkolatokat, szanitereket,
ajtókat a te ízlésednek megfelelően választhatod ki! Referencia munka
megtekinthető, kérésre pontos műszaki leírást tudok küldeni. Remélem a hirdetés
felkeltette érdeklődésed, és hamarosan személyesen is találkozunk! Irodánk
teljes körű szolgáltatást nyújt ingatlanok adás-vételéhez.Kedvezményes ügyvédi
költséggel, energetikai tanúsítvány készítéssel, ingyenes hitelügyintézéssel és
biztosítási tanácsadással várjuk Kedves Ügyfeleinket.
újépítésű, önálló családi házat.Légy te is Érd lakója, használd ki Budapest
közelségét, és a kertivárosias jellegű, biztonságos és nyugodt környék előnyeit
egyaránt! Ha a te vágyad is közel lakni minden fontos infrastruktúrához, mégis
zöldövezetben, és természet közelben élni, akkor ne habozz tovább, mert vár az
új otthonod Érden, az Kerékgyártó utcában.Közlekedés szempontjából kiváló,
autóval 20 perc alatt Budapest belvárosban találjuk magunkat, a tömegközlekedést
pedig számos buszjárat illetve vonat segíti. A ház amerikai konyhás nappalival,
négy kényelmes méretű hálószobával és két fürdőszobával tökéletes színtere lesz
a mindennapi családi életnek. A teraszon és a nagy méretű kertben pedig
kipihenheted a mindennapi fáradalmakat, és akár baráti, családi összejöveteleket
is tarthatsz. Telek mérete: 817 nmA ház nettó alapterülete: 110 nm + 20 nm
garázs + 9,5 nm fedett teraszEgy állásos garázs, további egy beálló telken
belül!Napelem!Elektromos kapu, garázs ajtó!Színezett ablakok!Elektromos
redőnyök!Hőszivattyú!Külön, garázsból is nyíló tároló, és gardrób, rengeteg
tárolási lehetőséggel! A várható befejezés 2025 év vége, az ingatlan a modern
építési követelményeknek megfelelően épül, mind szerkezetileg és műszakilag,
mind látvány szempontjából.30as porotherm tégla15 cm homlokzati szigetelés30 cm
födém szigetelés3 rétegű műanyag nyílászárók A burkolatokat, szanitereket,
ajtókat a te ízlésednek megfelelően választhatod ki! Referencia munka
megtekinthető, kérésre pontos műszaki leírást tudok küldeni. Remélem a hirdetés
felkeltette érdeklődésed, és hamarosan személyesen is találkozunk! Irodánk
teljes körű szolgáltatást nyújt ingatlanok adás-vételéhez.Kedvezményes ügyvédi
költséggel, energetikai tanúsítvány készítéssel, ingyenes hitelügyintézéssel és
biztosítási tanácsadással várjuk Kedves Ügyfeleinket.
Részletek...
Adatlap
| Ár: | 118.000.000 Ft |
| Település: | Érd |
| A hirdető: | Ingatlaniroda ajánlatából |
| Értékesítés típusa: | Eladó |
| Telek nagysága (m2) : | 817 |
| Épület hasznos területe (m2) : | 120 |
| Szobák száma: | 5 |
| Ingatlan állapota: | Normál állapotú |
| Anyaga: | Tégla |
| A hirdető kérése: | Ingatlanközvetítő vagyok - keresse fel Irodánkat! |
| Feladás dátuma: | 2026.01.22 |
| Eddig megtekintették 48 alkalommal | |
A hirdető adatai
Kapcsolat a hirdetővel...
Családi házak rovaton belül a(z) "Eladó 120m2-es Családi ház, Érd" című hirdetést látja. (fent)




























