
Telkiben 216 m2-es, 4 szobás családi ház 1203 m2 telken elad
Telkiben 216 m2-es, 4 szobás, jó műszaki állapotú, tehermentes családi ház nagy
telekkel eladó!ELHELYEZKEDÉS:- Csendes, családi házas övezetben, 12 km
távolságra Budapesttől- Közelben: óvoda, iskola, orvosi rendelő, gyógyszertár,
buszmegálló, élelmiszerbolt- Dupla garázs, de még két autónak van lehetőség
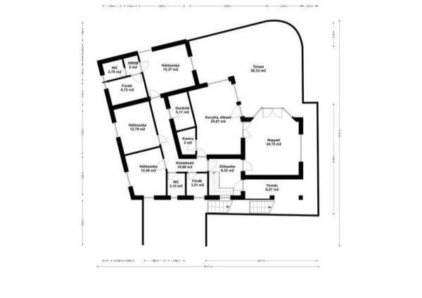
parkolásraINGATLAN:- Telek: 1203 m2- Lakótér: nettó 131 m2HELYISÉGEK: Nappali:
24,15 m2Étkezős konyha: 24,07m23 háló: összesen 40 m22 fürdő: összesen 17,54 m21
szuterén dolgozó: 1 szauna helyiség ( jelenleg raktár)Dupla garázs: 57
m2Kazánház, egyéb helyiség: 27,45Teraszok: 67,6 m2 + kb 20 m2 panorámás
filagória, szalonnasütővelMŰSZAKI/ÁLLAPOT:- Téglaépítésű (38 phorotherm) ház,
perlites hőszigetelő vakolat- Monolit födém (beépíthető)- Építés éve: 2002-
Tetőtér beépíthető, tetőfedés: Bramac betoncserép, a tetőszerkezet kiváló
állapotú- Műanyag nyílászárók, 3 rétegű hőszigetelt üveggel, aluminium
redőnyökkel, szúnyoghálóval- A szobákban gőzölt akác parketta (nem laminált!)- A
hidegburkolatok olaszországból importáltak (Valentino)- Központi fűtés Hoval
kondenzációs gázkazánnal, 110 literes puffer tartállyal - Teljes közmű-
Általános állapot: Általánosan jó, azonnal költözhető- Cseresznyefa konyhabútor-
Csiszolt gránit munkalap - Öntözőrendszer, Husqvarna - 2 db Daikin inverteres
klíma- Vízlágyító és víztisztító rendszer- Elektromos kapu és garázskapu-
RiasztórendszerEXTRÁK:Panorámás filagória, kerti kő grillTeljes, beállt
parkosításSzauna előkészítés a földszinten80%-ban sík telek, panorámávalNapelem
pályázatot nyert az ingatlan, de az eladás miatt nem lett elkészítve, de a
tetőszerkezet és a tájolás tökéletesen alkalmas rá. FINANSZÍROZÁS: Az ingatlan
per, teher és igénymentes, pénzintézeti hitel igénybevételével is
megvásárolható. A telek körbekerített. Az udvar tágas, családi összejövetelekhez
és kinti szórakozásra is alkalmas.Az ingatlant elsősorban nagyobb családoknak
ajánlom. A tetőtér beépíthetősége és jó megközelítése további szobák
kialakítását teszi lehetővé. Telki csendes, zöldövezeti környezetben, Budapest
közelében kínál kiváló életminőséget. A település az MLSZ edzőközpontjáról,
prémium egészségügyi szolgáltatásairól és kirándulóhelyeiről ismert. Ideális
választás családoknak és a nyugodt életre vágyóknak. Élvezze a természet
közelségét a főváros elérhető távolságában!Rugalmasan megtekinthető. A költözési
idő szintén rugalmas.
telekkel eladó!ELHELYEZKEDÉS:- Csendes, családi házas övezetben, 12 km
távolságra Budapesttől- Közelben: óvoda, iskola, orvosi rendelő, gyógyszertár,
buszmegálló, élelmiszerbolt- Dupla garázs, de még két autónak van lehetőség
parkolásraINGATLAN:- Telek: 1203 m2- Lakótér: nettó 131 m2HELYISÉGEK: Nappali:
24,15 m2Étkezős konyha: 24,07m23 háló: összesen 40 m22 fürdő: összesen 17,54 m21
szuterén dolgozó: 1 szauna helyiség ( jelenleg raktár)Dupla garázs: 57
m2Kazánház, egyéb helyiség: 27,45Teraszok: 67,6 m2 + kb 20 m2 panorámás
filagória, szalonnasütővelMŰSZAKI/ÁLLAPOT:- Téglaépítésű (38 phorotherm) ház,
perlites hőszigetelő vakolat- Monolit födém (beépíthető)- Építés éve: 2002-
Tetőtér beépíthető, tetőfedés: Bramac betoncserép, a tetőszerkezet kiváló
állapotú- Műanyag nyílászárók, 3 rétegű hőszigetelt üveggel, aluminium
redőnyökkel, szúnyoghálóval- A szobákban gőzölt akác parketta (nem laminált!)- A
hidegburkolatok olaszországból importáltak (Valentino)- Központi fűtés Hoval
kondenzációs gázkazánnal, 110 literes puffer tartállyal - Teljes közmű-
Általános állapot: Általánosan jó, azonnal költözhető- Cseresznyefa konyhabútor-
Csiszolt gránit munkalap - Öntözőrendszer, Husqvarna - 2 db Daikin inverteres
klíma- Vízlágyító és víztisztító rendszer- Elektromos kapu és garázskapu-
RiasztórendszerEXTRÁK:Panorámás filagória, kerti kő grillTeljes, beállt
parkosításSzauna előkészítés a földszinten80%-ban sík telek, panorámávalNapelem
pályázatot nyert az ingatlan, de az eladás miatt nem lett elkészítve, de a
tetőszerkezet és a tájolás tökéletesen alkalmas rá. FINANSZÍROZÁS: Az ingatlan
per, teher és igénymentes, pénzintézeti hitel igénybevételével is
megvásárolható. A telek körbekerített. Az udvar tágas, családi összejövetelekhez
és kinti szórakozásra is alkalmas.Az ingatlant elsősorban nagyobb családoknak
ajánlom. A tetőtér beépíthetősége és jó megközelítése további szobák
kialakítását teszi lehetővé. Telki csendes, zöldövezeti környezetben, Budapest
közelében kínál kiváló életminőséget. A település az MLSZ edzőközpontjáról,
prémium egészségügyi szolgáltatásairól és kirándulóhelyeiről ismert. Ideális
választás családoknak és a nyugodt életre vágyóknak. Élvezze a természet
közelségét a főváros elérhető távolságában!Rugalmasan megtekinthető. A költözési
idő szintén rugalmas.
Részletek...
Adatlap
| Ár: | 326.000.000 Ft |
| Település: | Telki |
| A hirdető: | Ingatlaniroda ajánlatából |
| Értékesítés típusa: | Eladó |
| Használtság: | Használt |
| Telek nagysága (m2) : | 1203 |
| Épület hasznos területe (m2) : | 216.00 |
| Szobák száma: | 5 |
| Feladás dátuma: | 2026.04.22 |
| Eddig megtekintették 86 alkalommal | |
A hirdető adatai
Kapcsolat a hirdetővel...
Családi házak rovaton belül a(z) "Telkiben 216 m2-es, 4 szobás családi ház 1203 m2 telken elad" című hirdetést látja. (fent)




























