
Eladó 141m2-es Ikerház, Veresegyház
Veresegyház központi részén, nagyon jó környéken, modern kétszintes
kivitelezésben épülő, közel 0 energiaigényű, nappali + 4 szobás ikerházfél
eladó!A 141nm-es épület 30-as porotherm dryfix tégla falazattal, 15cm vastag
homlokzati szigeteléssel, betoncserép fedéssel, monolit vasbeton, ill.
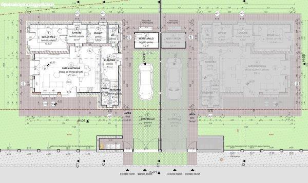
faszerkezetű födémmel épül. Földszinten előszoba, nappali-konyha-étkező, kamra,
szülő hálószoba, gardrób, zuhanyzós fürdőszoba és vegy vendégmosdó lesz
kialakítva. Emeleten 3 szoba, közlekedő, kádas fürdőszoba és gépészeti helyiség
kap majd helyet.Az épület tervezésnél fontos szempont volt a fenntarthatóság, a
padlófűtésnek és a hőszivattyúnak köszönhetően 0 rezsivel üzemeltethető,
energetikai besorolása A+.Nincs közös falrész, 42,7nm-es fedett kocsibeálló +
5nm-es tároló választja el a másik oldaltól.A napelem előkészítése az ár részét
képezi!A hirdetésben szereplő információk és látványtervek tájékoztató
jellegűek, pontos műszaki leírást, opciós listát az érdeklődőknek kérésre
szívesen küldünk e-mailben!Várható kulcsrakész átadás: 2025. II. félévIrányár:
139,9MftHivatkozási szám: 2517889.Megtekinthető telefonos időpont egyeztetés
alapján:Pintér Roland +36 20 539-1988 pinterroland@godolloi.hu GÖDÖLLŐ
INGATLANKÖZPONT - www.godolloi.hu: Gödöllő és környéke legnagyobb ingatlan
választéka /Gödöllő, Szada, Veresegyház, Kistarcsa, Kerepes, Erdőkertes/
eladó-kiadó családi ház, telek, lakás! Ingatlan építés és felújítás!
kivitelezésben épülő, közel 0 energiaigényű, nappali + 4 szobás ikerházfél
eladó!A 141nm-es épület 30-as porotherm dryfix tégla falazattal, 15cm vastag
homlokzati szigeteléssel, betoncserép fedéssel, monolit vasbeton, ill.
faszerkezetű födémmel épül. Földszinten előszoba, nappali-konyha-étkező, kamra,
szülő hálószoba, gardrób, zuhanyzós fürdőszoba és vegy vendégmosdó lesz
kialakítva. Emeleten 3 szoba, közlekedő, kádas fürdőszoba és gépészeti helyiség
kap majd helyet.Az épület tervezésnél fontos szempont volt a fenntarthatóság, a
padlófűtésnek és a hőszivattyúnak köszönhetően 0 rezsivel üzemeltethető,
energetikai besorolása A+.Nincs közös falrész, 42,7nm-es fedett kocsibeálló +
5nm-es tároló választja el a másik oldaltól.A napelem előkészítése az ár részét
képezi!A hirdetésben szereplő információk és látványtervek tájékoztató
jellegűek, pontos műszaki leírást, opciós listát az érdeklődőknek kérésre
szívesen küldünk e-mailben!Várható kulcsrakész átadás: 2025. II. félévIrányár:
139,9MftHivatkozási szám: 2517889.Megtekinthető telefonos időpont egyeztetés
alapján:Pintér Roland +36 20 539-1988 pinterroland@godolloi.hu GÖDÖLLŐ
INGATLANKÖZPONT - www.godolloi.hu: Gödöllő és környéke legnagyobb ingatlan
választéka /Gödöllő, Szada, Veresegyház, Kistarcsa, Kerepes, Erdőkertes/
eladó-kiadó családi ház, telek, lakás! Ingatlan építés és felújítás!
Részletek...
Adatlap
| Ár: | 139.900.000 Ft |
| Település: | Veresegyház |
| A hirdető: | Ingatlaniroda ajánlatából |
| Értékesítés típusa: | Eladó |
| Telek nagysága (m2) : | 575 |
| Épület hasznos területe (m2) : | 141 |
| Szobák száma: | 5 |
| Komfort: | Duplakomfortos |
| Ingatlan állapota: | Normál állapotú |
| Anyaga: | Tégla |
| A hirdető kérése: | Ingatlanközvetítő vagyok - keresse fel Irodánkat! |
| Feladás dátuma: | 2025.11.23 |
| Eddig megtekintették 42 alkalommal | |
A hirdető adatai
Kapcsolat a hirdetővel...
Családi házak rovaton belül a(z) "Eladó 141m2-es Ikerház, Veresegyház" című hirdetést látja. (fent)




























