
Eladó 115m2-es Ikerház, Gödöllő
Gödöllő keresett kastély mögötti részén az Alvégben, referenciákkal
rendelkező, megbízható kivitelező által épülő nappali + 4 szobás,
garázskapcsolatos ikerházfél eladó!Műszaki adatok:- 30-as PTH tégla falazat +
12cm grafit szigetelés, - 10cm válaszfalak, glettelve, fehér színűre festve, -
lábazaton zsalukő, szigetelve, vakolva, - 5 légkamrás műanyag nyílászárók 3
rétegű üvegezéssel, fehér színben,- monolit vasbetonfödém, - antracitszürke
Bramac beton cserépfedés,- antracit ereszcsatorna, - Atlantic loria hőszivattyú
beépített melegvíz tárolóval, minden helyiségben padlófűtés, fürdőben
törülközőszárítós radiátor, - riasztó, klíma előkészítés.Ár tartalmazza:-
beltéri ajtókat 60.000.-Ft/db,- hideg- és melegburkolatokat 5.000.-Ft/nm,-
teraszburkolatot 6.500.-Ft/nm,- mosdókat 20.000.-Ft/db,- csaptelepeket
15.000.-Ft/db, - beépített Geberit Wc kagylókat 20.000.-Ft/db,A burkolatok és a
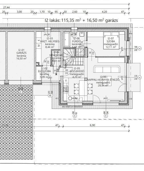
szaniterek a vevő igényei szerint még szabadon választhatók!Elosztás:- Előszoba,
teraszkapcsolatos nappali-konyha-étkező, 4 szoba, közlekedő, két fürdőszoba,
vendégmosdó, háztartási helyiség + 16,5nm garázs Telek:- 550nm telekhányad 430nm
kertrésszel.Környék:- Vasútállomás, hévmegálló, helyi buszmegálló, egyetem,
iskola, élelmiszerbolt, uszoda néhány perc sétával elérhető, Budapest az M3-as
autópályán keresztül személyautóval kb. 20 perc.Várható kulcsrakész átadás
2026.03.Kérésre teljes műszaki tartalmat, alaprajzot szívesen küldünk! Irányár:
144,65MftHivatkozási szám: 2518055.Megtekinthető telefonos időpont egyeztetés
alapján:Sápi Balázs +36 20 772-2429 sapibalazs@godolloi.hu GÖDÖLLŐ
INGATLANKÖZPONT - www.godolloi.hu: Gödöllő és környéke legnagyobb ingatlan
választéka /Gödöllő, Szada, Veresegyház, Kistarcsa, Kerepes, Erdőkertes, Fót,
Dunakeszi/ eladó-kiadó családi ház, telek, lakás! Ingatlan építés és
felújítás!
rendelkező, megbízható kivitelező által épülő nappali + 4 szobás,
garázskapcsolatos ikerházfél eladó!Műszaki adatok:- 30-as PTH tégla falazat +
12cm grafit szigetelés, - 10cm válaszfalak, glettelve, fehér színűre festve, -
lábazaton zsalukő, szigetelve, vakolva, - 5 légkamrás műanyag nyílászárók 3
rétegű üvegezéssel, fehér színben,- monolit vasbetonfödém, - antracitszürke
Bramac beton cserépfedés,- antracit ereszcsatorna, - Atlantic loria hőszivattyú
beépített melegvíz tárolóval, minden helyiségben padlófűtés, fürdőben
törülközőszárítós radiátor, - riasztó, klíma előkészítés.Ár tartalmazza:-
beltéri ajtókat 60.000.-Ft/db,- hideg- és melegburkolatokat 5.000.-Ft/nm,-
teraszburkolatot 6.500.-Ft/nm,- mosdókat 20.000.-Ft/db,- csaptelepeket
15.000.-Ft/db, - beépített Geberit Wc kagylókat 20.000.-Ft/db,A burkolatok és a
szaniterek a vevő igényei szerint még szabadon választhatók!Elosztás:- Előszoba,
teraszkapcsolatos nappali-konyha-étkező, 4 szoba, közlekedő, két fürdőszoba,
vendégmosdó, háztartási helyiség + 16,5nm garázs Telek:- 550nm telekhányad 430nm
kertrésszel.Környék:- Vasútállomás, hévmegálló, helyi buszmegálló, egyetem,
iskola, élelmiszerbolt, uszoda néhány perc sétával elérhető, Budapest az M3-as
autópályán keresztül személyautóval kb. 20 perc.Várható kulcsrakész átadás
2026.03.Kérésre teljes műszaki tartalmat, alaprajzot szívesen küldünk! Irányár:
144,65MftHivatkozási szám: 2518055.Megtekinthető telefonos időpont egyeztetés
alapján:Sápi Balázs +36 20 772-2429 sapibalazs@godolloi.hu GÖDÖLLŐ
INGATLANKÖZPONT - www.godolloi.hu: Gödöllő és környéke legnagyobb ingatlan
választéka /Gödöllő, Szada, Veresegyház, Kistarcsa, Kerepes, Erdőkertes, Fót,
Dunakeszi/ eladó-kiadó családi ház, telek, lakás! Ingatlan építés és
felújítás!
Részletek...
Adatlap
| Ár: | 144.650.000 Ft |
| Település: | Gödöllő |
| A hirdető: | Ingatlaniroda ajánlatából |
| Értékesítés típusa: | Eladó |
| Telek nagysága (m2) : | 550 |
| Épület hasznos területe (m2) : | 115 |
| Szobák száma: | 5 |
| Komfort: | Duplakomfortos |
| Ingatlan állapota: | Normál állapotú |
| Anyaga: | Tégla |
| A hirdető kérése: | Ingatlanközvetítő vagyok - keresse fel Irodánkat! |
| Feladás dátuma: | 2026.04.22 |
| Eddig megtekintették 78 alkalommal | |
A hirdető adatai
Kapcsolat a hirdetővel...
Családi házak rovaton belül a(z) "Eladó 115m2-es Ikerház, Gödöllő" című hirdetést látja. (fent)




























