
Eladó balatoni panorámás, új építésű lakóház Alsóörsön!
Eladó balatoni panorámás, új építésű lakóház Alsóörsön!A CasaNetWork
Balatonalmádi Ingatlaniroda eladásra kínálja a 1665-ös számú kiváló
tulajdonságokkal bíró családi házát Alsóörsön!Az alsóörsi panorámás lakóház
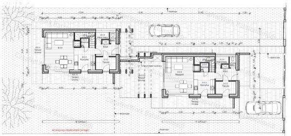
jellemzői:- 101 nm. lakótér + 31 nm. terasz és loggia- Biztonságos, családias,
kellemes zöldövezet, igazi balatoni hangulat; belterület, Lke-2 övezeti
besorolás.- A környék rendezett; a szomszédos telkek jó megjelenésű,
karbantartott ingatlanokkal beépítettek.- Kivételesen jó adottságú, sík,
téglalap alakú telek: az ingatlan hátsókertje nem beépíthető külterülettel
határos; így elragadó, zavartalan panoráma nyílik a balatonfüredi öbölre és a
Tihanyi-félszigetre.- A strand rövid sétával elérhető.- Az építési területen
kétegységes lakóépület kerülelhelyezésre, két különálló épületben. Az épületek
szerkezeti fallal vannakösszekötve, így alkotva egy egységet. Az egyes épületek
sajátkertkapcsolattal és autóparkolóval, bejárattal vannak kialakítva.- Az egyes
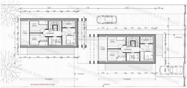
lakóegységek két szinten vannak elhelyezve.Földszinten a nappali funkciók,
illetve egy dolgozószoba; az emeletre kerülneka hálófunkciók. Az emeleten a
Balaton felé tájolva két hálószoba, amelyeknekközös közvetlen erkély kapcsolatuk
van.- A földszinten a saját használatú kert a nappali-konyha-étkezőbőlérhető el.
A bejárat mellett kapcsolódik az épülethez egy saját használatú tároló. -
Szerkezeti kialakítás: Hagyományos épületszerkezetirendszerrel készül (beton
sávalap, falazott tégla teherhordó falszerkezet, vb.födém, fűrészelt
fa-szerkezetű nyeregtető, cserép fedéssel). A homlokzatifalszerkezet kiegészítő
hőszigetelést kap. Fűtése hőszivattyún (levegő-víz)keresztül padlófűtés és
háztartási melegvíz ellátás. Az épületben fatüzeléseskandallóra lehetőség adott
(kéményt az ár tartalmazza). Nyílászárók: 3rétegű hőszigetelt üvegezésű műanyag
nyílászárókkal készül. - A bekerülési költség tartalmazza a hőszivattyús fűtést,
a gépkocsibeállót, burkolatokat, szaniterberendezéseket, csaptelepeket,
füvesítést, térkőburkolásokat,gépkocsibeállót, motoros kapunyitót, motoros
redőnyöket, riasztórendszert.- A kivitelező cég közel 30 éve foglalkozik komplex
építészeti tervezéssel, kivitelezéssel, mérnöki szolgáltatással.- Kiváló
lehetőség saját célra vagy befektetésnek. Amennyiben az 1665-ös számú
a CasaNetWork Ingatlaniroda által hirdetett alsóörsi lakóház, vagy bármely a
kínálatunkban található ingatlan felkeltette érdeklődését, kérem hívjon a
megadott telefonszámon! Schultheisz Brigitta+ 36 Vásárolna, de nincs rá keret ?
Kollégám díjmentes, banksemleges hitelügyintézéssel áll rendelkezésére
. CasaNetWork - A civilizált ingatlanértékesítés artériája!
Balatonalmádi Ingatlaniroda eladásra kínálja a 1665-ös számú kiváló
tulajdonságokkal bíró családi házát Alsóörsön!Az alsóörsi panorámás lakóház
jellemzői:- 101 nm. lakótér + 31 nm. terasz és loggia- Biztonságos, családias,
kellemes zöldövezet, igazi balatoni hangulat; belterület, Lke-2 övezeti
besorolás.- A környék rendezett; a szomszédos telkek jó megjelenésű,
karbantartott ingatlanokkal beépítettek.- Kivételesen jó adottságú, sík,
téglalap alakú telek: az ingatlan hátsókertje nem beépíthető külterülettel
határos; így elragadó, zavartalan panoráma nyílik a balatonfüredi öbölre és a
Tihanyi-félszigetre.- A strand rövid sétával elérhető.- Az építési területen
kétegységes lakóépület kerülelhelyezésre, két különálló épületben. Az épületek
szerkezeti fallal vannakösszekötve, így alkotva egy egységet. Az egyes épületek
sajátkertkapcsolattal és autóparkolóval, bejárattal vannak kialakítva.- Az egyes
lakóegységek két szinten vannak elhelyezve.Földszinten a nappali funkciók,
illetve egy dolgozószoba; az emeletre kerülneka hálófunkciók. Az emeleten a
Balaton felé tájolva két hálószoba, amelyeknekközös közvetlen erkély kapcsolatuk
van.- A földszinten a saját használatú kert a nappali-konyha-étkezőbőlérhető el.
A bejárat mellett kapcsolódik az épülethez egy saját használatú tároló. -
Szerkezeti kialakítás: Hagyományos épületszerkezetirendszerrel készül (beton
sávalap, falazott tégla teherhordó falszerkezet, vb.födém, fűrészelt
fa-szerkezetű nyeregtető, cserép fedéssel). A homlokzatifalszerkezet kiegészítő
hőszigetelést kap. Fűtése hőszivattyún (levegő-víz)keresztül padlófűtés és
háztartási melegvíz ellátás. Az épületben fatüzeléseskandallóra lehetőség adott
(kéményt az ár tartalmazza). Nyílászárók: 3rétegű hőszigetelt üvegezésű műanyag
nyílászárókkal készül. - A bekerülési költség tartalmazza a hőszivattyús fűtést,
a gépkocsibeállót, burkolatokat, szaniterberendezéseket, csaptelepeket,
füvesítést, térkőburkolásokat,gépkocsibeállót, motoros kapunyitót, motoros
redőnyöket, riasztórendszert.- A kivitelező cég közel 30 éve foglalkozik komplex
építészeti tervezéssel, kivitelezéssel, mérnöki szolgáltatással.- Kiváló
lehetőség saját célra vagy befektetésnek. Amennyiben az 1665-ös számú
a CasaNetWork Ingatlaniroda által hirdetett alsóörsi lakóház, vagy bármely a
kínálatunkban található ingatlan felkeltette érdeklődését, kérem hívjon a
megadott telefonszámon! Schultheisz Brigitta+ 36 Vásárolna, de nincs rá keret ?
Kollégám díjmentes, banksemleges hitelügyintézéssel áll rendelkezésére
. CasaNetWork - A civilizált ingatlanértékesítés artériája!
Részletek...
Adatlap
| Ár: | 183.500.000 Ft |
| Település: | Alsóörs |
| A hirdető: | Ingatlaniroda ajánlatából |
| Értékesítés típusa: | Eladó |
| Használtság: | Új építésű |
| Telek nagysága (m2) : | 736 |
| Épület hasznos területe (m2) : | 117 |
| Szobák száma: | 4 |
| Félszobák száma: | 1 |
| Feladás dátuma: | 2025.11.23 |
| Eddig megtekintették 42 alkalommal | |
A hirdető adatai
Kapcsolat a hirdetővel...
Családi házak rovaton belül a(z) "Eladó balatoni panorámás, új építésű lakóház Alsóörsön!" című hirdetést látja. (fent)




























