
Szászberken Családi ház - Szászberek
A CASANETWORK CEGLÉD eladásra kínálja a 174601427 számú, új építésű ingatlant
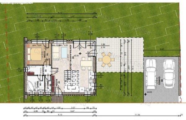
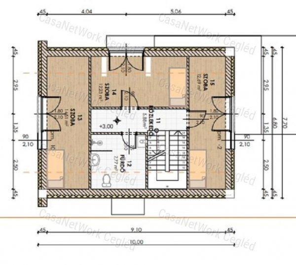
SZÁSZBEREK FŐUTCÁJÁN. Modern kivitelezésű CSALÁDI HÁZ. A CSALÁDI HÁZ 130 nm
lakóterületű, Terasz 20 nm, autóbeálló 36 nm. Elosztását tekintve előtér,
nappali, konyha-étkező, 4 szoba, 2 db fürdőszoba + wc, közlekedő, terasz.
Phorotherm 30 HS falazat, Austrotherm 15 cm hőszigeteléssel. Fűtése kombi
gázkazánnal lesz megoldva, lesz felszerelve szintenként 1-1db hűtő/fűtő klíma. A
burkolatokat a leendő tulajdonosok választják ki katalógusból.A lakás modern
megoldásokkal, igényes anyagokból épül Szászberek központi részén.A CASANETWORK
CEGLÉD által kínált ingatlan jellemzői:- 130 m2 fűtött lakótér- Nappali+4
szoba,- Tégla építésű, 15 cm-es hőszigetelés, - Belmagasság 2,8 méter,-
Összközműves,- Fűtése kondenzációs gázkazánnal lesz megoldva,- Hőszigetelt,
műanyag nyílászárók, fehér színben- Parkolni az udvarban saját saját fedett
beállón lehetséges 2 autó számára,- 2 db hűtő/fűtő klíma klíma, - plusz
információk kizárólag egyeztetett időpontban.A családi ház átadása 2024 évben
várható.A hirdetési ár 30% befizetésével garantált.A CSALÁDI HÁZ Szászberken
épül, 1000 fős település Szolnoktól 17 km-re. Közúton a 32-es főútról érhető el,
annak keleti oldalán fekszik. A 4-es számú főút kb. 8 perc alatt elérhető. A
település közössége kiváló, nemrég sportcsarnok valamint műfüves futballpálya
került átadásra. További fejlesztések várhatóak.Amennyiben a 174601185 számú A
CASANETWORK CEGLÉD által kínált CSALÁDI HÁZ vagy bármely a kínálatunkban
található TÉGLA LAKÁS, CSALÁDI HÁZ felkeltette érdeklődését, hívjon a megadott
telefonszámon. /A hirdetésben szereplő információk a megbízótól kapott adatok
alapján készültek, pontosságukért felelősséget nem vállalunk!/Kollégám
díjmentes, bank semleges hitel ügyintézéssel áll rendelkezésre.CasaNetWork -
Ingatlanban otthon vagyunk!
SZÁSZBEREK FŐUTCÁJÁN. Modern kivitelezésű CSALÁDI HÁZ. A CSALÁDI HÁZ 130 nm
lakóterületű, Terasz 20 nm, autóbeálló 36 nm. Elosztását tekintve előtér,
nappali, konyha-étkező, 4 szoba, 2 db fürdőszoba + wc, közlekedő, terasz.
Phorotherm 30 HS falazat, Austrotherm 15 cm hőszigeteléssel. Fűtése kombi
gázkazánnal lesz megoldva, lesz felszerelve szintenként 1-1db hűtő/fűtő klíma. A
burkolatokat a leendő tulajdonosok választják ki katalógusból.A lakás modern
megoldásokkal, igényes anyagokból épül Szászberek központi részén.A CASANETWORK
CEGLÉD által kínált ingatlan jellemzői:- 130 m2 fűtött lakótér- Nappali+4
szoba,- Tégla építésű, 15 cm-es hőszigetelés, - Belmagasság 2,8 méter,-
Összközműves,- Fűtése kondenzációs gázkazánnal lesz megoldva,- Hőszigetelt,
műanyag nyílászárók, fehér színben- Parkolni az udvarban saját saját fedett
beállón lehetséges 2 autó számára,- 2 db hűtő/fűtő klíma klíma, - plusz
információk kizárólag egyeztetett időpontban.A családi ház átadása 2024 évben
várható.A hirdetési ár 30% befizetésével garantált.A CSALÁDI HÁZ Szászberken
épül, 1000 fős település Szolnoktól 17 km-re. Közúton a 32-es főútról érhető el,
annak keleti oldalán fekszik. A 4-es számú főút kb. 8 perc alatt elérhető. A
település közössége kiváló, nemrég sportcsarnok valamint műfüves futballpálya
került átadásra. További fejlesztések várhatóak.Amennyiben a 174601185 számú A
CASANETWORK CEGLÉD által kínált CSALÁDI HÁZ vagy bármely a kínálatunkban
található TÉGLA LAKÁS, CSALÁDI HÁZ felkeltette érdeklődését, hívjon a megadott
telefonszámon. /A hirdetésben szereplő információk a megbízótól kapott adatok
alapján készültek, pontosságukért felelősséget nem vállalunk!/Kollégám
díjmentes, bank semleges hitel ügyintézéssel áll rendelkezésre.CasaNetWork -
Ingatlanban otthon vagyunk!
Részletek...
Adatlap
| Ár: | 88.000.000 Ft |
| Település: | Szászberek |
| A hirdető: | Ingatlaniroda ajánlatából |
| Értékesítés típusa: | Eladó |
| Használtság: | Használt |
| Telek nagysága (m2) : | 627 |
| Épület hasznos területe (m2) : | 150.00 |
| Szobák száma: | 5 |
| Fűtés: | Házközponti fűtéses (egyedi méréssel) |
| Feladás dátuma: | 2026.01.22 |
| Eddig megtekintették 49 alkalommal | |
A hirdető adatai
Kapcsolat a hirdetővel...
Családi házak rovaton belül a(z) "Szászberken Családi ház - Szászberek" című hirdetést látja. (fent)




























