
Belvárosi 61,5 nm, 1+2 fél szobás családi ház eladó - Szolno
A szolnoki CasaNetWork Ingatlaniroda megvételre kínál Szolnokon a belvárosban,
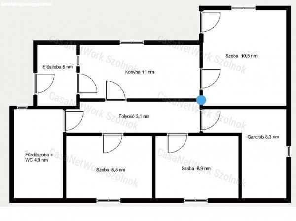
1+ 2 félszobás, 61,5 m2-es, bontandó, vályog építésű családi házat az alábbi
paraméterekkel:- belváros szívében a Moha utcában helyezkedik el, 377 m2-es
telken,- az ablakok műanyag nyílászárókra lettek kicserélve,- a ház jelenleg
viszonylag rossz állapotban van, de némi ráfordítással még megmenthető,- 1 egész
szoba és 2 félszoba található benne, melyek laminált parkettával borítottak,- a
konyha 11 m2-es, járólappal burkolt,- a fürdőszoba és WC egy helyiségben
található,- rendelkezésre áll egy 8,3 m2-es gardrób is,- az otthon melegéről
konvektor fűtés gondoskodik,Ajánlom befektetőknek !!!Amennyiben az 155805440
számú eladó szolnoki családi ház, vagy bármely a kínálatunkban található
ingatlan felkeltette érdeklődését, kérem hívjon bizalommal!/A hirdetésben
szereplő információk a megbízótól kapott adatok alapján készültek./Irodánk
teljeskörű szolgáltatással áll ügyfelei
rendelkezésére: hitelügyintézés, ügyvédi szolgáltatás, ingatlan értékbecslés,
energetikai tanúsítvány készítéseCasaNetWork-Ingatlanban otthon vagyunk!
1+ 2 félszobás, 61,5 m2-es, bontandó, vályog építésű családi házat az alábbi
paraméterekkel:- belváros szívében a Moha utcában helyezkedik el, 377 m2-es
telken,- az ablakok műanyag nyílászárókra lettek kicserélve,- a ház jelenleg
viszonylag rossz állapotban van, de némi ráfordítással még megmenthető,- 1 egész
szoba és 2 félszoba található benne, melyek laminált parkettával borítottak,- a
konyha 11 m2-es, járólappal burkolt,- a fürdőszoba és WC egy helyiségben
található,- rendelkezésre áll egy 8,3 m2-es gardrób is,- az otthon melegéről
konvektor fűtés gondoskodik,Ajánlom befektetőknek !!!Amennyiben az 155805440
számú eladó szolnoki családi ház, vagy bármely a kínálatunkban található
ingatlan felkeltette érdeklődését, kérem hívjon bizalommal!/A hirdetésben
szereplő információk a megbízótól kapott adatok alapján készültek./Irodánk
teljeskörű szolgáltatással áll ügyfelei
rendelkezésére: hitelügyintézés, ügyvédi szolgáltatás, ingatlan értékbecslés,
energetikai tanúsítvány készítéseCasaNetWork-Ingatlanban otthon vagyunk!
Részletek...
Adatlap
| Ár: | 20.000.000 Ft |
| Település: | Szolnok |
| A hirdető: | Ingatlaniroda ajánlatából |
| Értékesítés típusa: | Eladó |
| Használtság: | Használt |
| Telek nagysága (m2) : | 377 |
| Épület hasznos területe (m2) : | 62.00 |
| Szobák száma: | 1 |
| Félszobák száma: | 2 |
| Ingatlan állapota: | Felújítandó |
| Feladás dátuma: | 2026.01.22 |
| Eddig megtekintették 59 alkalommal | |
A hirdető adatai
Kapcsolat a hirdetővel...
Családi házak rovaton belül a(z) "Belvárosi 61,5 nm, 1+2 fél szobás családi ház eladó - Szolno" című hirdetést látja. (fent)




























