
Eladó 73m2-es Családi ház, Balatonszemes
A City Cartel Ingatlaniroda eladásra kínál Balatonszemes állandóan lakott
részén, új építésű lakóparkban, egy önálló, téglaépítésű, földszintes, 67 m2
alapterületű családi házat. Az ingatlanokhoz 200-250 m2-es önálló használatú
udvar tartozik. A területen 3 önálló családi ház kivitelezése kezdődött el. Az
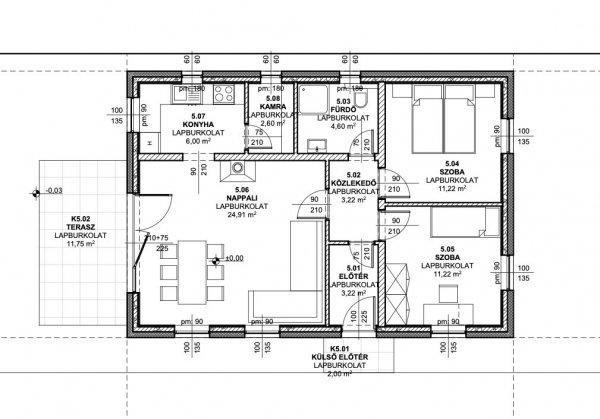
ingatlan felosztása a következő:egy előtér, 2 hálószoba, nappali, konyha, spájz,
és választhatóan kádas vagy zuhanyzós fürdőszoba WC-vel kerül benne
kialakításra. A tető hajlásszögének emelésével a szobák feletti részt is
kihasználták, amivel egy újabb tetőtéri ablakos "szoba", tároló került
kialakításra kb 16 m2. Az ingatlan részét képezi továbbá egy 12 m2-es terasz
is.Közműveket tekintve minden bekötésre kerül, tehát a víz, a villany gáz és a
csatorna is.Épületek mindegyikénél napelem rendszer kerül kialakításra 3,5 kWh,
mellyel jelentős áramszámla megtakarítás érhető el! A Thermo-Block falazat
biztosítja a minimális fűtési energia felhasználást 0,15-ös átbocsájtási
tényezővel. A fűtési rendszer elektromos padlófűtésből, szobákban elektromos
radiátorokból készül. A meleg vizet elektromos bojler szolgáltatja. Kiváló
választás lehet azoknak, akik állandóra keresnek, de befektetés szempontjából is
remek döntés. A legközelebbi szabad strand kb. 1000 méter, gyalogosan is 10-15
percen belül kényelmesen elérhető. Az építkezés elkezdődött.Fizetési ütemezés
megbeszélés szerint.További kérdések esetén állok rendelkezésére a hét bármely
napján. Irodáink: 8600 Siófok, Fő tér 6. (Sió Pláza -1. szint)8640 Fonyód, Ady
Endre u. 5. (Balaton Áruház földszint)8638 Balatonlelle, Rákóczi út
276. Kövess minket Facebook-on is: @citycartelbalaton!
részén, új építésű lakóparkban, egy önálló, téglaépítésű, földszintes, 67 m2
alapterületű családi házat. Az ingatlanokhoz 200-250 m2-es önálló használatú
udvar tartozik. A területen 3 önálló családi ház kivitelezése kezdődött el. Az
ingatlan felosztása a következő:egy előtér, 2 hálószoba, nappali, konyha, spájz,
és választhatóan kádas vagy zuhanyzós fürdőszoba WC-vel kerül benne
kialakításra. A tető hajlásszögének emelésével a szobák feletti részt is
kihasználták, amivel egy újabb tetőtéri ablakos "szoba", tároló került
kialakításra kb 16 m2. Az ingatlan részét képezi továbbá egy 12 m2-es terasz
is.Közműveket tekintve minden bekötésre kerül, tehát a víz, a villany gáz és a
csatorna is.Épületek mindegyikénél napelem rendszer kerül kialakításra 3,5 kWh,
mellyel jelentős áramszámla megtakarítás érhető el! A Thermo-Block falazat
biztosítja a minimális fűtési energia felhasználást 0,15-ös átbocsájtási
tényezővel. A fűtési rendszer elektromos padlófűtésből, szobákban elektromos
radiátorokból készül. A meleg vizet elektromos bojler szolgáltatja. Kiváló
választás lehet azoknak, akik állandóra keresnek, de befektetés szempontjából is
remek döntés. A legközelebbi szabad strand kb. 1000 méter, gyalogosan is 10-15
percen belül kényelmesen elérhető. Az építkezés elkezdődött.Fizetési ütemezés
megbeszélés szerint.További kérdések esetén állok rendelkezésére a hét bármely
napján. Irodáink: 8600 Siófok, Fő tér 6. (Sió Pláza -1. szint)8640 Fonyód, Ady
Endre u. 5. (Balaton Áruház földszint)8638 Balatonlelle, Rákóczi út
276. Kövess minket Facebook-on is: @citycartelbalaton!
Részletek...
Adatlap
| Ár: | 79.900.000 Ft |
| Település: | Balatonszemes |
| A hirdető: | Ingatlaniroda ajánlatából |
| Értékesítés típusa: | Eladó |
| Telek nagysága (m2) : | 1 993 |
| Épület hasznos területe (m2) : | 73 |
| Szobák száma: | 3 |
| Komfort: | Összkomfortos |
| Fűtés: | Egyéb fűtéses |
| Ingatlan állapota: | Normál állapotú |
| Anyaga: | Egyéb anyagból készült épület |
| A hirdető kérése: | Ingatlanközvetítő vagyok - keresse fel Irodánkat! |
| Feladás dátuma: | 2026.01.22 |
| Eddig megtekintették 52 alkalommal | |
A hirdető adatai
Kapcsolat a hirdetővel...
Családi házak rovaton belül a(z) "Eladó 73m2-es Családi ház, Balatonszemes" című hirdetést látja. (fent)




























