
Megvételre kínálunk Gyömrő közkedvelt lakóparkjában, a Kasté
Megvételre kínálunk Gyömrő közkedvelt lakóparkjában, a KastélyDombon egy
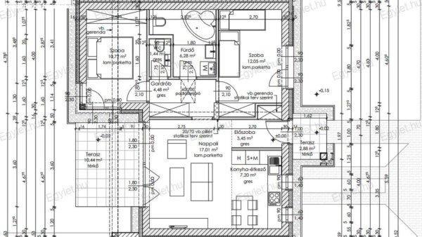
új építésű, HŐSZIVATTYÚS, 80 m˛ alapterületű + teraszos, 4 szobás,
összkomfortos, gardróbos, sorházat. A ház tájolása és elosztása kiváló, világos,
nyitott terekkel rendelkezik. Az ingatlan igényes kivitelezéssel,
minőségi alapanyagokból, átgondolt tervezéssel, egyedi belső kialakítással
készült, ahol a kényelem és az átgondolt tervezés mellett az energia
takarékosság volt a fő szempont. Az ingatlan nappalijából egy 10 nm-es teraszon
keresztül tudjuk megközelíteni a körbekerített privát kertet. A ház fűtéséről és
használati melegvíz ellátásáról egy hőszivattyú gondoskodik, padlófűtéssel
kombinálva. Ennek köszönhetően a rezsi költségek kedvezően alakulnak. A házhoz
tartozó privát kert mérete: 344 nm. A telek teljes mérete: 1086 nm. Ennél a
beruházásnál most lehetősége van kompromisszumok nélkül egy olyan ingatlanba
költözni, ahol Ön kiválaszthatja a hideg és meleg burkolatokat, szanitereket,
valamint az egyéb kiegészítőket a családja legnagyobb megelégedésére, ez által
személyre szabva álmai otthonát. Akár két gépjármű beállási lehetőségével a
térkövezett gépjármű beállón lehet biztonságosan parkolni. Várható átadás 2025.
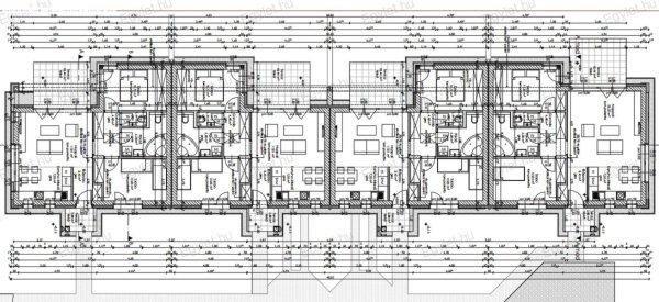
III. negyedév Összesen négy lakás található ebben a sorházban 61-80 nm közötti
méretben, valamint 180-344 nm privát telek méretekkel. A fotók látványterveket
tartalmaznak. Igénybe vehető lehetséges kedvezmények:- CSOK- 5% Áfa
visszatérítés- Babaváró hitel- Illeték kedvezmény vagy mentesség Helyiség
lista:- Előtér- WC- Fürdőszoba- Szoba- Szoba- Szoba- Amerikai konyha- Étkező-
Nappali - Terasz (hátsó)- Terasz (első) Az ingatlan biztonságos környezetben,
sorompóval elzárt és porta szolgálattal rendelkező lakóparkban helyezkedik el,
Gyömrő egyik legnyugodtabb részén. A környék fejlett infrastruktúrájának
köszönhetően bővelkedik a szociális intézményekben, bölcsőde, óvoda, általános
iskola, orvosi intézmények, bevásárlási lehetőségek, találhatóak a
közelben. Hitel, CSOK igénylésben díjmentes ügyintézéssel állunk
rendelkezésére!Várom megtisztelő érdeklődésüket.
új építésű, HŐSZIVATTYÚS, 80 m˛ alapterületű + teraszos, 4 szobás,
összkomfortos, gardróbos, sorházat. A ház tájolása és elosztása kiváló, világos,
nyitott terekkel rendelkezik. Az ingatlan igényes kivitelezéssel,
minőségi alapanyagokból, átgondolt tervezéssel, egyedi belső kialakítással
készült, ahol a kényelem és az átgondolt tervezés mellett az energia
takarékosság volt a fő szempont. Az ingatlan nappalijából egy 10 nm-es teraszon
keresztül tudjuk megközelíteni a körbekerített privát kertet. A ház fűtéséről és
használati melegvíz ellátásáról egy hőszivattyú gondoskodik, padlófűtéssel
kombinálva. Ennek köszönhetően a rezsi költségek kedvezően alakulnak. A házhoz
tartozó privát kert mérete: 344 nm. A telek teljes mérete: 1086 nm. Ennél a
beruházásnál most lehetősége van kompromisszumok nélkül egy olyan ingatlanba
költözni, ahol Ön kiválaszthatja a hideg és meleg burkolatokat, szanitereket,
valamint az egyéb kiegészítőket a családja legnagyobb megelégedésére, ez által
személyre szabva álmai otthonát. Akár két gépjármű beállási lehetőségével a
térkövezett gépjármű beállón lehet biztonságosan parkolni. Várható átadás 2025.
III. negyedév Összesen négy lakás található ebben a sorházban 61-80 nm közötti
méretben, valamint 180-344 nm privát telek méretekkel. A fotók látványterveket
tartalmaznak. Igénybe vehető lehetséges kedvezmények:- CSOK- 5% Áfa
visszatérítés- Babaváró hitel- Illeték kedvezmény vagy mentesség Helyiség
lista:- Előtér- WC- Fürdőszoba- Szoba- Szoba- Szoba- Amerikai konyha- Étkező-
Nappali - Terasz (hátsó)- Terasz (első) Az ingatlan biztonságos környezetben,
sorompóval elzárt és porta szolgálattal rendelkező lakóparkban helyezkedik el,
Gyömrő egyik legnyugodtabb részén. A környék fejlett infrastruktúrájának
köszönhetően bővelkedik a szociális intézményekben, bölcsőde, óvoda, általános
iskola, orvosi intézmények, bevásárlási lehetőségek, találhatóak a
közelben. Hitel, CSOK igénylésben díjmentes ügyintézéssel állunk
rendelkezésére!Várom megtisztelő érdeklődésüket.
Részletek...
Adatlap
| Ár: | 79.900.000 Ft |
| Település: | Gyömrő |
| A hirdető: | Ingatlaniroda ajánlatából |
| Értékesítés típusa: | Eladó |
| Telek nagysága (m2) : | 344 |
| Épület hasznos területe (m2) : | 80 |
| Szobák száma: | 4 |
| Komfort: | Összkomfortos |
| Ingatlan állapota: | Normál állapotú |
| Anyaga: | Tégla |
| A hirdető kérése: | Ingatlanközvetítő vagyok - keresse fel Irodánkat! |
| Feladás dátuma: | 2026.01.22 |
| Eddig megtekintették 55 alkalommal | |
A hirdető adatai
Kapcsolat a hirdetővel...
Családi házak rovaton belül a(z) "Megvételre kínálunk Gyömrő közkedvelt lakóparkjában, a Kasté" című hirdetést látja. (fent)




























