
Eladó 122m2-es Családi ház, Győr
Ménfőcsanak Győrhöz közeli részén, új zsákutcájában, családi házas
környezetben kínálok Önnek eladó modern megjelenésű újépítésű
ikerházakat, fűtéskész állapotban, 2026 évvégi átadással. A Ház ára 900.000
Ft/m2 +5% áfa , mely tartalmazza a telekhányadot is.Utcafrontról KÜLÖN BEJÁRAT,
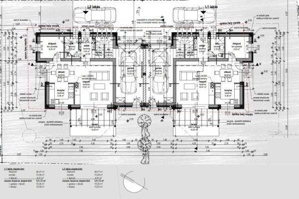
121,7 m2, nappali + 5 szoba, 3 fürdő, 3 Wc, gardrób, 15 m2 terasz, udvari
beálló, 302 m2 saját kert. A garázs tárolóval + 5 M Ft-ba kerül. A ház
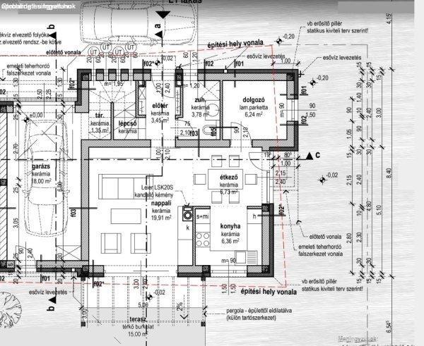
elosztása:- alsó szinten : konyha 6,36 m2, étkező 6,73 m2,nappali 19,91 m2,
dolgozószoba 6,24 m2, fürdő 3,78 m2, előtér 3,45 m2. terasz 15 m2. Garázs
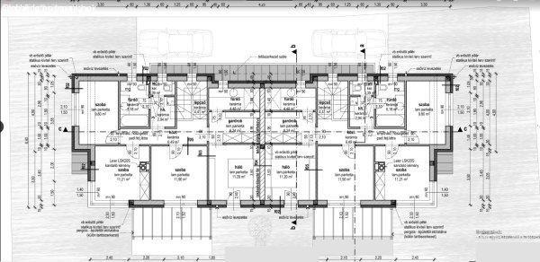
tárolóval 19,35 m2. - emeleten: teljes értékű szint, nincs tetőtér, szoba
11,2 m2, szoba 11,9 m2, szoba 11,21 m2, szoba 9,8m2, fürdő 4,48 m2, fürdő 5,18
m2, wc 1,39 m2, háztatási helyiség 2,99 m2 közlekedő 6,49 m2, lépcső 4,4
m2. 2026 évvégi átadással.Műszaki tartalom:- sávalap- monolint vasbeton
lemezalap- főfalak 30-as Leiertherm N+F tégla,- válaszfalak 10-es Leiertherm N
+F tégla- monolit vasbeton födém, - a tetőtérnél fogópáros fedélszék készül,
fenyőfa székszerkezettel, páraáteresztő fóliával, eresznél szellőző szalaggal,-
30 cm vastag celulóz szigetelés,- függesztett gipszkarton,- Leier Granite
Classic betoncserép, vagy ezzel azonos értékű tetőcserép.- fsz-i padozatban 12
cm AT-N 100 lemezszigetelés- belső gépi vakolás- 15 cm EPS szigetelés,
nemesvakolat homlokzati hőszigetelő rendszer színvakolattal- bádogos munka
függőeresz csatorna, valamint lefolyócső a cserép színével harmonizáló
színezett, porfestett alumínium lemez felhasználásával.- Veka softline 82 MD
Műanyag szerkezetű , 3 rétegű hőszigetelt üvegezéssel, UG 0,7 műanyag fehér
ablak,- Melegvizet és a fűtést Saunier Duval condens AS 25 fűtőkazán biztosítja,
melegvizet 200 literes HMV tároló biztosítja, hőleadó padlófűtés- 2db klíma
előkészítés- villanyvezeték lefűzve, az épületen belül műanyag elosztószekrény
kismegszakítóval.- vízvezeték szerelve- fürdőben törölközőszárítós radiátor,
alsó szinten zuhanyzó, emeleten kád lett tervezve- Közművek víz, villany, gáz,
csatorna a rákötéseket az ár tartalmazza.- csend nyugalom- déli fekvésnek
köszönhetően világosA városháza 7 km található, Ménfőcsanak Győr része,
számozott buszközlekedés, bölcsőde, óvoda, iskola helyben, bevásárlási lehetőség
bőséges. Autópálya felhajtó 1 km.Az ár tartalmazza a telekhányadot, a
közműhozzájárulást, CSOK +, független díjmentes HITEL ügyintézéssel állunk
rendelkezésükre.További kérdéseivel keressen bizalommal:Pfeiferné Zsuzsa
környezetben kínálok Önnek eladó modern megjelenésű újépítésű
ikerházakat, fűtéskész állapotban, 2026 évvégi átadással. A Ház ára 900.000
Ft/m2 +5% áfa , mely tartalmazza a telekhányadot is.Utcafrontról KÜLÖN BEJÁRAT,
121,7 m2, nappali + 5 szoba, 3 fürdő, 3 Wc, gardrób, 15 m2 terasz, udvari
beálló, 302 m2 saját kert. A garázs tárolóval + 5 M Ft-ba kerül. A ház
elosztása:- alsó szinten : konyha 6,36 m2, étkező 6,73 m2,nappali 19,91 m2,
dolgozószoba 6,24 m2, fürdő 3,78 m2, előtér 3,45 m2. terasz 15 m2. Garázs
tárolóval 19,35 m2. - emeleten: teljes értékű szint, nincs tetőtér, szoba
11,2 m2, szoba 11,9 m2, szoba 11,21 m2, szoba 9,8m2, fürdő 4,48 m2, fürdő 5,18
m2, wc 1,39 m2, háztatási helyiség 2,99 m2 közlekedő 6,49 m2, lépcső 4,4
m2. 2026 évvégi átadással.Műszaki tartalom:- sávalap- monolint vasbeton
lemezalap- főfalak 30-as Leiertherm N+F tégla,- válaszfalak 10-es Leiertherm N
+F tégla- monolit vasbeton födém, - a tetőtérnél fogópáros fedélszék készül,
fenyőfa székszerkezettel, páraáteresztő fóliával, eresznél szellőző szalaggal,-
30 cm vastag celulóz szigetelés,- függesztett gipszkarton,- Leier Granite
Classic betoncserép, vagy ezzel azonos értékű tetőcserép.- fsz-i padozatban 12
cm AT-N 100 lemezszigetelés- belső gépi vakolás- 15 cm EPS szigetelés,
nemesvakolat homlokzati hőszigetelő rendszer színvakolattal- bádogos munka
függőeresz csatorna, valamint lefolyócső a cserép színével harmonizáló
színezett, porfestett alumínium lemez felhasználásával.- Veka softline 82 MD
Műanyag szerkezetű , 3 rétegű hőszigetelt üvegezéssel, UG 0,7 műanyag fehér
ablak,- Melegvizet és a fűtést Saunier Duval condens AS 25 fűtőkazán biztosítja,
melegvizet 200 literes HMV tároló biztosítja, hőleadó padlófűtés- 2db klíma
előkészítés- villanyvezeték lefűzve, az épületen belül műanyag elosztószekrény
kismegszakítóval.- vízvezeték szerelve- fürdőben törölközőszárítós radiátor,
alsó szinten zuhanyzó, emeleten kád lett tervezve- Közművek víz, villany, gáz,
csatorna a rákötéseket az ár tartalmazza.- csend nyugalom- déli fekvésnek
köszönhetően világosA városháza 7 km található, Ménfőcsanak Győr része,
számozott buszközlekedés, bölcsőde, óvoda, iskola helyben, bevásárlási lehetőség
bőséges. Autópálya felhajtó 1 km.Az ár tartalmazza a telekhányadot, a
közműhozzájárulást, CSOK +, független díjmentes HITEL ügyintézéssel állunk
rendelkezésükre.További kérdéseivel keressen bizalommal:Pfeiferné Zsuzsa
Részletek...
Adatlap
| Ár: | 115.000.000 Ft |
| Település: | Győr |
| A hirdető: | Ingatlaniroda ajánlatából |
| Értékesítés típusa: | Eladó |
| Telek nagysága (m2) : | 302 |
| Épület hasznos területe (m2) : | 122 |
| Szobák száma: | 6 |
| Komfort: | Duplakomfortos |
| Fűtés: | Cirkó fűtéses |
| Ingatlan állapota: | Normál állapotú |
| Anyaga: | Tégla |
| A hirdető kérése: | Ingatlanközvetítő vagyok - keresse fel Irodánkat! |
| Feladás dátuma: | 2026.04.22 |
| Eddig megtekintették 77 alkalommal | |
A hirdető adatai
Kapcsolat a hirdetővel...
Családi házak rovaton belül a(z) "Eladó 122m2-es Családi ház, Győr" című hirdetést látja. (fent)




























