
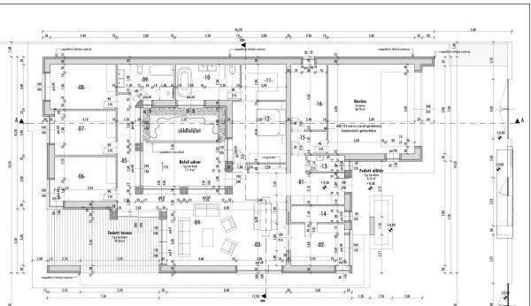
Egyedi, különleges, belső kertes családi ház!
Újkistelekiszőlő kedvelt, jól megközelíthető helyén eladó ez a
páratlan, nem hétköznapi, építés alatt álló önálló családi ház.Az összes közmű
a telken belül van. - tégla építésű, 38-as Porotherm, 15 cm szigetelés- lapos
tető, E- gerendás födém, 30 cm hőszigetelés- 3 rétegű műanyag nyílászárók -
nappali és 4 háló, szülői hálóhoz külön fürdőszoba és gardrób- 2 fürdőszoba,
külön vendég WC- leválasztható konyha kamrával - étkező- villanytűzhely -
hőszivattyús padlófűtés, mennyezet hűtés - légtechnikai rendszer gépészetileg
előkészítve - központi porszívó gépészetileg előkészítve - 3 X 16 A- lakórész:
180m2- 30 m2-s fedett terasz- 36 m2-s garázs Hörmann elektromos garázskapuval,
lakótér kapcsolattal - 1000m2 udvar- belső, zárt kertrész - riasztórendszer
alapvezetékelés kb. 70%-os készültség! 3%-os hitellel is befejezhető! Egyedi
megoldás a belső udvar, valamint a minden igényt kielégítő kiszolgáló
helyiségek. Bővebb műszaki tartalomért és bankfüggetlen teljes körű
ügyintézéssel várom hívását!
páratlan, nem hétköznapi, építés alatt álló önálló családi ház.Az összes közmű
a telken belül van. - tégla építésű, 38-as Porotherm, 15 cm szigetelés- lapos
tető, E- gerendás födém, 30 cm hőszigetelés- 3 rétegű műanyag nyílászárók -
nappali és 4 háló, szülői hálóhoz külön fürdőszoba és gardrób- 2 fürdőszoba,
külön vendég WC- leválasztható konyha kamrával - étkező- villanytűzhely -
hőszivattyús padlófűtés, mennyezet hűtés - légtechnikai rendszer gépészetileg
előkészítve - központi porszívó gépészetileg előkészítve - 3 X 16 A- lakórész:
180m2- 30 m2-s fedett terasz- 36 m2-s garázs Hörmann elektromos garázskapuval,
lakótér kapcsolattal - 1000m2 udvar- belső, zárt kertrész - riasztórendszer
alapvezetékelés kb. 70%-os készültség! 3%-os hitellel is befejezhető! Egyedi
megoldás a belső udvar, valamint a minden igényt kielégítő kiszolgáló
helyiségek. Bővebb műszaki tartalomért és bankfüggetlen teljes körű
ügyintézéssel várom hívását!
Részletek...
Adatlap
| Ár: | 81.900.000 Ft |
| Település: | Nyíregyháza |
| A hirdető: | Ingatlaniroda ajánlatából |
| Értékesítés típusa: | Eladó |
| Telek nagysága (m2) : | 1 000 |
| Épület hasznos területe (m2) : | 246 |
| Szobák száma: | 5 |
| Komfort: | Összkomfortos |
| Ingatlan állapota: | Normál állapotú |
| Anyaga: | Tégla |
| A hirdető kérése: | Ingatlanközvetítő vagyok - keresse fel Irodánkat! |
| Feladás dátuma: | 2026.04.22 |
| Eddig megtekintették 83 alkalommal | |
A hirdető adatai
Kapcsolat a hirdetővel...
Családi házak rovaton belül a(z) "Egyedi, különleges, belső kertes családi ház!" című hirdetést látja. (fent)




























