
Sorház telekkel, garázzsal, tárolóval a Hímesben.
Nyíregyháza, Hímesben eladóvá vált ez a tégla építésű sorház:- A
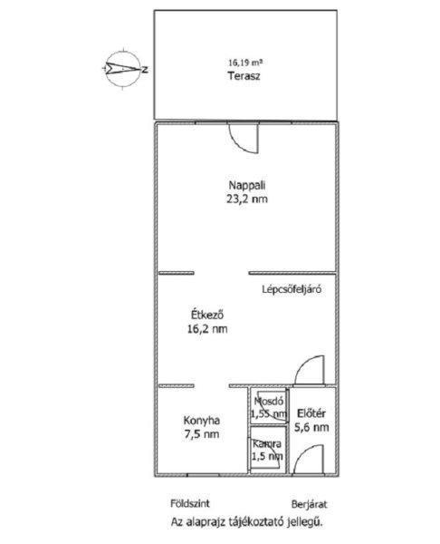
földszint nappali-étkező-konyha, kamra, lépcsőfeljáró, előtér, mosdó+WC, és
teraszból áll.- Az első szinten három szoba, egy zuhanyzós fürdőszoba WC-vel, és
egy kádas fürdőszoba található, a közlekedő-lépcsőfeljáró mellett.- A tetőtéri
részben került két szoba, egy kádas fürdőszoba kialakításra.- A szövetkezeti ház
műanyag nyílászárós, gáz-cirkó fűtésű, közös költsége 7.000,- Ft- A földszinti
nagy terasz, az emeleti szintén nagy erkély mellett az osztatlan közös tulajdonú
előkert és a hátsó kiskert is közel hozza a természetet.- A ház elhelyezkedését
tekintve középen található a ?sorban?, így fűtése gazdaságos.- A burkolatok
parketta, járólap, illetve egy szobában padlószőnyeg.- Az alapterület kb. 50nm,
az első szint szintén, a tetőtér kb. 35nm.- Stílusát tekintve az ingatlan a
múltat idézi, ezért aki a modern stílus kedvelője, számítson rá, hogy számára
felújítást igényel.- A kert végében egy garázs és egy ? akár garázzsá is
alakítható- tároló helyezkedik el.A Hímes kedvelt területén található ingatlan
az előzetes egyeztetést követő naptól megtekinthető.Én várom hívását, hisz erről
a házról elmondható, hogy három szinten, szinte minden megtalálható.
földszint nappali-étkező-konyha, kamra, lépcsőfeljáró, előtér, mosdó+WC, és
teraszból áll.- Az első szinten három szoba, egy zuhanyzós fürdőszoba WC-vel, és
egy kádas fürdőszoba található, a közlekedő-lépcsőfeljáró mellett.- A tetőtéri
részben került két szoba, egy kádas fürdőszoba kialakításra.- A szövetkezeti ház
műanyag nyílászárós, gáz-cirkó fűtésű, közös költsége 7.000,- Ft- A földszinti
nagy terasz, az emeleti szintén nagy erkély mellett az osztatlan közös tulajdonú
előkert és a hátsó kiskert is közel hozza a természetet.- A ház elhelyezkedését
tekintve középen található a ?sorban?, így fűtése gazdaságos.- A burkolatok
parketta, járólap, illetve egy szobában padlószőnyeg.- Az alapterület kb. 50nm,
az első szint szintén, a tetőtér kb. 35nm.- Stílusát tekintve az ingatlan a
múltat idézi, ezért aki a modern stílus kedvelője, számítson rá, hogy számára
felújítást igényel.- A kert végében egy garázs és egy ? akár garázzsá is
alakítható- tároló helyezkedik el.A Hímes kedvelt területén található ingatlan
az előzetes egyeztetést követő naptól megtekinthető.Én várom hívását, hisz erről
a házról elmondható, hogy három szinten, szinte minden megtalálható.
Részletek...
Adatlap
| Ár: | 69.900.000 Ft |
| Település: | Nyíregyháza |
| A hirdető: | Ingatlaniroda ajánlatából |
| Értékesítés típusa: | Eladó |
| Telek nagysága (m2) : | 110 |
| Épület hasznos területe (m2) : | 135 |
| Szobák száma: | 5 |
| Komfort: | Duplakomfortos |
| Fűtés: | Cirkó fűtéses |
| Ingatlan állapota: | Normál állapotú |
| Anyaga: | Tégla |
| A hirdető kérése: | Ingatlanközvetítő vagyok - keresse fel Irodánkat! |
| Feladás dátuma: | 2026.04.22 |
| Eddig megtekintették 83 alkalommal | |
A hirdető adatai
Kapcsolat a hirdetővel...
Családi házak rovaton belül a(z) "Sorház telekkel, garázzsal, tárolóval a Hímesben. " című hirdetést látja. (fent)




























