
Bevezető áron, új építésű ikerház!
Kerváros természetközeli utcájában ikerházrész! - 30-s Porotherm tégla,
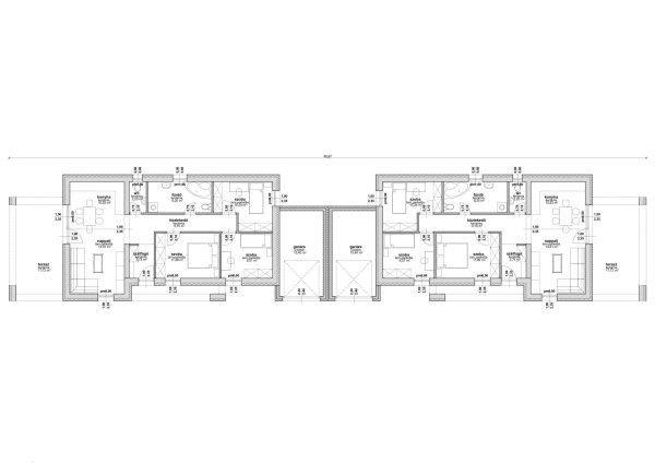
15 cm szigetelés- fafödémes- beton cserép, hővédő fóliázás- amerikai konyhás
nappali- 3 hálószoba- fürdő, WC külön- közlekedő, előtér- 80 m2 hasznos
alapterület- műanyag nyílászárók- nappaliból nyíló terasz pergola fedéssel -
padlófűtés, egyedi gáz- hűtő- fűtő klíma- beton alapozású, könnyűszerkezetes
garázs, e mentén kapcsolódik az ikerház másik feléhez A vételár tartalmazza a
kerítést, térkövezést. Belső burkolatok még választhatók.Szerződjön most, átadás
kb. 9 hónap. Kiváló megközelíthetőség, mind a belváros, mind az autópálya
felhajtóhoz. CSOK PLUSZ igénybe vehető. Teljes körű, bankfüggeten,
ingyenes ügyintézéssel várom hívását!
15 cm szigetelés- fafödémes- beton cserép, hővédő fóliázás- amerikai konyhás
nappali- 3 hálószoba- fürdő, WC külön- közlekedő, előtér- 80 m2 hasznos
alapterület- műanyag nyílászárók- nappaliból nyíló terasz pergola fedéssel -
padlófűtés, egyedi gáz- hűtő- fűtő klíma- beton alapozású, könnyűszerkezetes
garázs, e mentén kapcsolódik az ikerház másik feléhez A vételár tartalmazza a
kerítést, térkövezést. Belső burkolatok még választhatók.Szerződjön most, átadás
kb. 9 hónap. Kiváló megközelíthetőség, mind a belváros, mind az autópálya
felhajtóhoz. CSOK PLUSZ igénybe vehető. Teljes körű, bankfüggeten,
ingyenes ügyintézéssel várom hívását!
Részletek...
Adatlap
| Ár: | 67.500.000 Ft |
| Település: | Nyíregyháza |
| A hirdető: | Ingatlaniroda ajánlatából |
| Értékesítés típusa: | Eladó |
| Telek nagysága (m2) : | 452 |
| Épület hasznos területe (m2) : | 80 |
| Szobák száma: | 4 |
| Komfort: | Összkomfortos |
| Fűtés: | Egyéb fűtéses |
| Ingatlan állapota: | Normál állapotú |
| Anyaga: | Tégla |
| A hirdető kérése: | Ingatlanközvetítő vagyok - keresse fel Irodánkat! |
| Feladás dátuma: | 2026.01.22 |
| Eddig megtekintették 48 alkalommal | |
A hirdető adatai
Kapcsolat a hirdetővel...
Családi házak rovaton belül a(z) "Bevezető áron, új építésű ikerház!" című hirdetést látja. (fent)




























