
Igényes megjelenésű ház a strand közelében! - Keszthely
A Gold Balaton Home Ingatlaniroda megvételre kínálja a 100 424-as sorszámú
KESZTHELYI IKERHÁZI LAKÁSTIgényes megjelenésű ház a Libás strand közelében
található!Nyaralónak is kitűnő választás!Főfalakig visszabontották a meglévő
épületet, és teljesen újjá építik a házat a mostani műszaki követelmények
szerint.A lakás várható átadása 2023. október.A kettő szintes ikerházi lakás
amerikai konyhás nappalival, három szobával, kettő fürdőszobával, terasszal,
erkéllyel épült. Kényelmes életteret biztosít Ön és családja számára.-
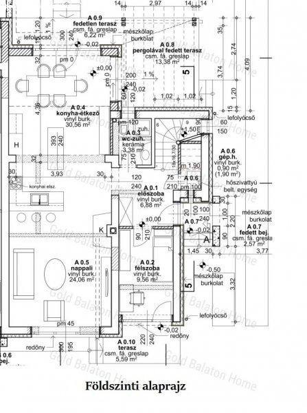
Földszinti helyiségek: amerikai konyhás nappali 54,6 m2, szoba 9,56, előszoba
6,88 m2,Tusoló-WC 3,38 m2, háztartási helyiség 1,9 m2, lépcső 5,85 m2, bejárat
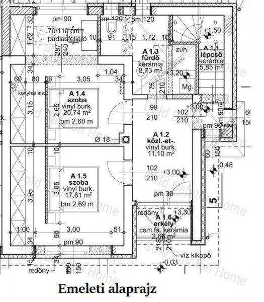
2,57 m2, teraszok 25,5 m2- Emeleti helyiségek: szoba 20,74 m2, szoba 17,81 m2,
fürdőszoba 8,73 m2, közlekedő 11,1 m2, erkély 2,66 m2Műszaki paraméterek:- tégla
építés, 15 cm-es külső hőszigeteléssel ellátott családi ház- tető héjazata
cserép és lemez fedés- műanyag nyílászárók három rétegű üvegezéssel- fűtés
hőszivattyús klíma rendszerrel megoldott- lakótér 140 m2, teraszok 30m2, saját
udvar területe 350 m2Az ingatlan egyéb jellemzői:- rendezett, körbekerített
udvar- térkővel lerakott udvarrészStrand 400 m-re található.Amennyiben
hirdetésem felkeltette érdeklődését, kérem, keressen bizalommal!Irodánk
szolgáltatásai igény esetén: ügyvéd, energetikai tanúsítvány, hitelügyintézés,
értékbecslés, statikus, földmérő, belsőépítész. Biztonság, szakértelem - GOLD
BALATON HOME - ?Élj ott, ahol mások nyaralnak?
KESZTHELYI IKERHÁZI LAKÁSTIgényes megjelenésű ház a Libás strand közelében
található!Nyaralónak is kitűnő választás!Főfalakig visszabontották a meglévő
épületet, és teljesen újjá építik a házat a mostani műszaki követelmények
szerint.A lakás várható átadása 2023. október.A kettő szintes ikerházi lakás
amerikai konyhás nappalival, három szobával, kettő fürdőszobával, terasszal,
erkéllyel épült. Kényelmes életteret biztosít Ön és családja számára.-
Földszinti helyiségek: amerikai konyhás nappali 54,6 m2, szoba 9,56, előszoba
6,88 m2,Tusoló-WC 3,38 m2, háztartási helyiség 1,9 m2, lépcső 5,85 m2, bejárat
2,57 m2, teraszok 25,5 m2- Emeleti helyiségek: szoba 20,74 m2, szoba 17,81 m2,
fürdőszoba 8,73 m2, közlekedő 11,1 m2, erkély 2,66 m2Műszaki paraméterek:- tégla
építés, 15 cm-es külső hőszigeteléssel ellátott családi ház- tető héjazata
cserép és lemez fedés- műanyag nyílászárók három rétegű üvegezéssel- fűtés
hőszivattyús klíma rendszerrel megoldott- lakótér 140 m2, teraszok 30m2, saját
udvar területe 350 m2Az ingatlan egyéb jellemzői:- rendezett, körbekerített
udvar- térkővel lerakott udvarrészStrand 400 m-re található.Amennyiben
hirdetésem felkeltette érdeklődését, kérem, keressen bizalommal!Irodánk
szolgáltatásai igény esetén: ügyvéd, energetikai tanúsítvány, hitelügyintézés,
értékbecslés, statikus, földmérő, belsőépítész. Biztonság, szakértelem - GOLD
BALATON HOME - ?Élj ott, ahol mások nyaralnak?
Részletek...
Adatlap
| Ár: | 134.900.000 Ft |
| Település: | Keszthely |
| A hirdető: | Ingatlaniroda ajánlatából |
| Értékesítés típusa: | Eladó |
| Használtság: | Használt |
| Telek nagysága (m2) : | 500 |
| Épület hasznos területe (m2) : | 140.00 |
| Szobák száma: | 4 |
| Ingatlan állapota: | Felújított |
| Feladás dátuma: | 2026.03.23 |
| Eddig megtekintették 72 alkalommal | |
A hirdető adatai
Kapcsolat a hirdetővel...
Családi házak rovaton belül a(z) "Igényes megjelenésű ház a strand közelében! - Keszthely" című hirdetést látja. (fent)




























