
Tiszaszigeten új családi házak eladóak!
Home&People azonosító: 22230Nieszner György: AMENNYIBEN KOLLÉGÁNK ELFOGLALT,
KÉRJEN VISSZAHÍVÁST A SMS-BEN A TELEFONSZÁMON!Új építésű családi házak
eladóak!Szeged szomszédságában elhelyezkedő, dinamikusan fejlődő Tiszaszigeten
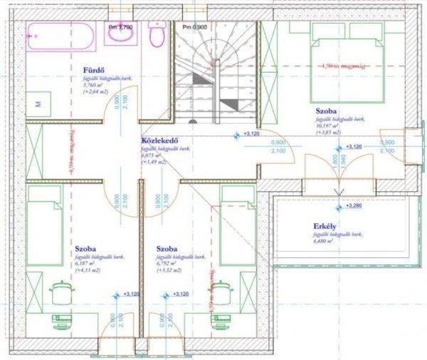
új építésű családi házak eladóak. 677m2-es telekméret, a telken 1 db lakóház
kerül megépítésre, 112m2 lakóterület, tetőteres családi ház, 4db hálószoba +
nappali, földszinten 2 db terasz, tetőtérben erkély, HELUZ 30 Nútféderes
tégla tartófalak, + 10 cm hőszigetelés, központi fűtés levegő- víz
hőszivattyúval, könnyűszerkezetes válaszfalak, kulcsrakész kivitelezés.A
vételár a telekárat tartalmazza! Tervezett befejezés: 2026. 02.H&P
azonosító: 22230Irányár: 79 900 000 FtTovábbi részletes információkért hívjon
bizalommal! Nieszner György Cégünk az ügyfeleink részére ingyenesen vállalja, a
megegyezés sikeres lebonyolítását, jogi tanácsadást, illetve teljeskörű CSOK és
hitelügyintézést! Kérje ingyenes tájékoztatásunkat! A kínálatában található
összes ingatlannal kapcsolatban felvilágosítást tudunk nyújtani, a Home and
People Ingatlanügynökség szegedi irodájában a Bécsi krt. 18. szám alatt.
Szolgáltatásaink vevőink részére díjmentesek. Home and People akciós forint
HITELEK: *Részletekért és díjmentes kalkulációkért keresse hitelspecialista
kollégánkat: Szalai Gábor Hitelspecialista.
KÉRJEN VISSZAHÍVÁST A SMS-BEN A TELEFONSZÁMON!Új építésű családi házak
eladóak!Szeged szomszédságában elhelyezkedő, dinamikusan fejlődő Tiszaszigeten
új építésű családi házak eladóak. 677m2-es telekméret, a telken 1 db lakóház
kerül megépítésre, 112m2 lakóterület, tetőteres családi ház, 4db hálószoba +
nappali, földszinten 2 db terasz, tetőtérben erkély, HELUZ 30 Nútféderes
tégla tartófalak, + 10 cm hőszigetelés, központi fűtés levegő- víz
hőszivattyúval, könnyűszerkezetes válaszfalak, kulcsrakész kivitelezés.A
vételár a telekárat tartalmazza! Tervezett befejezés: 2026. 02.H&P
azonosító: 22230Irányár: 79 900 000 FtTovábbi részletes információkért hívjon
bizalommal! Nieszner György Cégünk az ügyfeleink részére ingyenesen vállalja, a
megegyezés sikeres lebonyolítását, jogi tanácsadást, illetve teljeskörű CSOK és
hitelügyintézést! Kérje ingyenes tájékoztatásunkat! A kínálatában található
összes ingatlannal kapcsolatban felvilágosítást tudunk nyújtani, a Home and
People Ingatlanügynökség szegedi irodájában a Bécsi krt. 18. szám alatt.
Szolgáltatásaink vevőink részére díjmentesek. Home and People akciós forint
HITELEK: *Részletekért és díjmentes kalkulációkért keresse hitelspecialista
kollégánkat: Szalai Gábor Hitelspecialista.
Részletek...
Adatlap
| Ár: | 79.900.000 Ft |
| Település: | Tiszasziget |
| A hirdető: | Ingatlaniroda ajánlatából |
| Értékesítés típusa: | Eladó |
| Használtság: | Új építésű |
| Utca: | |
| Telek nagysága (m2) : | 677 |
| Épület hasznos területe (m2) : | 112.00 |
| Szobák száma: | 5 |
| Feladás dátuma: | 2026.01.23 |
| Eddig megtekintették 71 alkalommal | |
A hirdető adatai
Kapcsolat a hirdetővel...
Családi házak rovaton belül a(z) "Tiszaszigeten új családi házak eladóak!" című hirdetést látja. (fent)




























