
Eladó 153.00 nm-es Új építésű Családi ház Kehidakustány
KEHIDAKUSTÁNYBAN szerkezetkész ház eladó! Csendes, családiházas környezetben
épülő ház sürgősen eladó.A telek 900 m2, sík terület. Szabályzat szerint LK-1
lakóövezetben a szabályoknak megfelelően kezdődött el az építkezés.
Szerkezetkész állapotig a tervnek megfelelően készült az épület.Minden
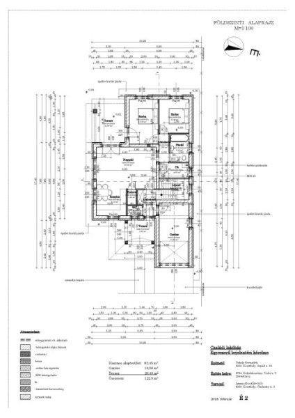
dokumentáció, rendelkezésre áll.Földszinten a lakótér 102 m2, terasz 20,5 m2 és
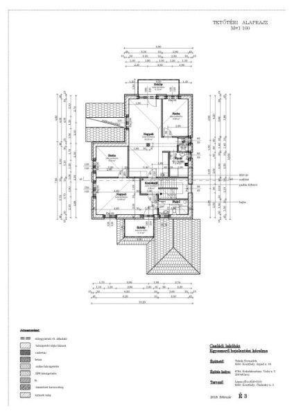
a garázs 30,5 m2.Tetőtér beépíthetősége 84 m2.Belső kialakítása, gépészete igény
szerint módosítható.Kérdéseivel forduljon hozzám bizalommalÜdvözlettelSzöllősi
Zsuzsánna
épülő ház sürgősen eladó.A telek 900 m2, sík terület. Szabályzat szerint LK-1
lakóövezetben a szabályoknak megfelelően kezdődött el az építkezés.
Szerkezetkész állapotig a tervnek megfelelően készült az épület.Minden
dokumentáció, rendelkezésre áll.Földszinten a lakótér 102 m2, terasz 20,5 m2 és
a garázs 30,5 m2.Tetőtér beépíthetősége 84 m2.Belső kialakítása, gépészete igény
szerint módosítható.Kérdéseivel forduljon hozzám bizalommalÜdvözlettelSzöllősi
Zsuzsánna
Részletek...
Adatlap
| Ár: | 64.900.000 Ft |
| Település: | Kehidakustány |
| A hirdető: | Ingatlaniroda ajánlatából |
| Értékesítés típusa: | Eladó |
| Használtság: | Új építésű |
| Telek nagysága (m2) : | 900 |
| Épület hasznos területe (m2) : | 153.00 |
| Szobák száma: | 3 |
| Feladás dátuma: | 2026.04.19 |
| Eddig megtekintették 96 alkalommal | |
A hirdető adatai
Kapcsolat a hirdetővel...
Családi házak rovaton belül a(z) "Eladó 153.00 nm-es Új építésű Családi ház Kehidakustány" című hirdetést látja. (fent)



























