
Eladó 145m2-es Ikerház, Gödöllő
Gödöllő keresett, kertvárosi részén, csendes, nyugodt környéken,
referenciákkal rendelkező, megbízható kivitelező által épülő modern, nappali + 3
szobás ikerházfél eladó!Műszaki adatok:- 30-as PTH tégla falazat + 12cm grafit
szigetelés, - 10cm válaszfalak, glettelve, fehér színűre festve, - lábazaton
zsalukő, szigetelve, vakolva, - 5 légkamrás műanyag nyílászárók 3 rétegű
üvegezéssel, középszürke színben,- monolit vasbetonfödém, - Antracit
cserépfedés,- középszürke színű ereszcsatorna, - Atlantic loria hőszivattyú
beépített melegvíz tárolóval, minden helyiségben padlófűtés, fürdőben
törülközőszárítós radiátor, - riasztó, klíma előkészítés.Ár tartalmazza:-
beltéri ajtókat 60.000.-Ft/db,- hideg- és melegburkolatokat 5.000.-Ft/nm,-
teraszburkolatot 6.500.-Ft/nm,- mosdókat 20.000.-Ft/db,- csaptelepeket
15.000.-Ft/db, - beépített Geberit Wc kagylókat 20.000.-Ft/db,A burkolatok és a
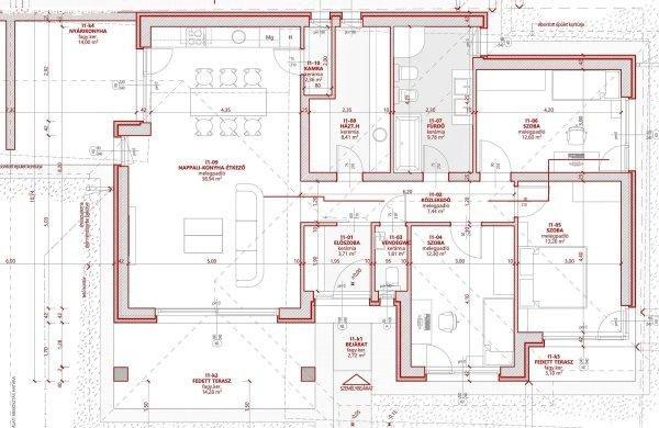
szaniterek a vevő igényei szerint még szabadon választhatók!Elosztás:- Előszoba,
nappali-konyha-étkező, kamra, 3 szoba, közlekedő, tágas fürdőszoba, vendégmosdó,
háztartási helyiség + 14,28nm fedett terasz és 14nm nyári konyhaTelek:- teljesen
elszeparált kb.550nm telek,- parkoláshoz kocsibeálló kerül
kialakításra.Környék:- Nagyon jó környék, gyalog minden 5 percen belül
elérhető.Várható kulcsrakész átadás 2026.03.Kérésre teljes műszaki tartalmat,
alaprajzot szívesen küldünk! Irányár: 149,9MftHivatkozási szám:
2518132.Megtekinthető telefonos időpont egyeztetés alapján:Sápi Balázs +36 20
772-2429 sapibalazs@godolloi.hu GÖDÖLLŐ INGATLANKÖZPONT - www.godolloi.hu:
Gödöllő és környéke legnagyobb ingatlan választéka /Gödöllő, Szada, Veresegyház,
Kistarcsa, Kerepes, Erdőkertes, Fót, Dunakeszi/ eladó-kiadó családi ház, telek,
lakás! Ingatlan építés és felújítás!
referenciákkal rendelkező, megbízható kivitelező által épülő modern, nappali + 3
szobás ikerházfél eladó!Műszaki adatok:- 30-as PTH tégla falazat + 12cm grafit
szigetelés, - 10cm válaszfalak, glettelve, fehér színűre festve, - lábazaton
zsalukő, szigetelve, vakolva, - 5 légkamrás műanyag nyílászárók 3 rétegű
üvegezéssel, középszürke színben,- monolit vasbetonfödém, - Antracit
cserépfedés,- középszürke színű ereszcsatorna, - Atlantic loria hőszivattyú
beépített melegvíz tárolóval, minden helyiségben padlófűtés, fürdőben
törülközőszárítós radiátor, - riasztó, klíma előkészítés.Ár tartalmazza:-
beltéri ajtókat 60.000.-Ft/db,- hideg- és melegburkolatokat 5.000.-Ft/nm,-
teraszburkolatot 6.500.-Ft/nm,- mosdókat 20.000.-Ft/db,- csaptelepeket
15.000.-Ft/db, - beépített Geberit Wc kagylókat 20.000.-Ft/db,A burkolatok és a
szaniterek a vevő igényei szerint még szabadon választhatók!Elosztás:- Előszoba,
nappali-konyha-étkező, kamra, 3 szoba, közlekedő, tágas fürdőszoba, vendégmosdó,
háztartási helyiség + 14,28nm fedett terasz és 14nm nyári konyhaTelek:- teljesen
elszeparált kb.550nm telek,- parkoláshoz kocsibeálló kerül
kialakításra.Környék:- Nagyon jó környék, gyalog minden 5 percen belül
elérhető.Várható kulcsrakész átadás 2026.03.Kérésre teljes műszaki tartalmat,
alaprajzot szívesen küldünk! Irányár: 149,9MftHivatkozási szám:
2518132.Megtekinthető telefonos időpont egyeztetés alapján:Sápi Balázs +36 20
772-2429 sapibalazs@godolloi.hu GÖDÖLLŐ INGATLANKÖZPONT - www.godolloi.hu:
Gödöllő és környéke legnagyobb ingatlan választéka /Gödöllő, Szada, Veresegyház,
Kistarcsa, Kerepes, Erdőkertes, Fót, Dunakeszi/ eladó-kiadó családi ház, telek,
lakás! Ingatlan építés és felújítás!
Részletek...
Adatlap
| Ár: | 149.900.000 Ft |
| Település: | Gödöllő |
| A hirdető: | Ingatlaniroda ajánlatából |
| Értékesítés típusa: | Eladó |
| Telek nagysága (m2) : | 550 |
| Épület hasznos területe (m2) : | 145 |
| Szobák száma: | 4 |
| Komfort: | Összkomfortos |
| Ingatlan állapota: | Normál állapotú |
| Anyaga: | Tégla |
| A hirdető kérése: | Ingatlanközvetítő vagyok - keresse fel Irodánkat! |
| Feladás dátuma: | 2026.05.03 |
| Eddig megtekintették 82 alkalommal | |
A hirdető adatai
Kapcsolat a hirdetővel...
Családi házak rovaton belül a(z) "Eladó 145m2-es Ikerház, Gödöllő" című hirdetést látja. (fent)




























