
Eladó 113m2-es Ikerház, Őrbottyán
Őrbottyánban ÚJ ÉPÍTÉSŰ, CSOK-KÉPES, IKERHÁZFÉL ELADÓ!A házban
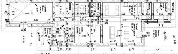
kialakításra kerül amerikai konyhás nappali + 4 hálószoba, háztartási
helyiség. Műszaki tartalom: -Színes aluminium csatornarendszer-Színes bejárati
ajtó-Színes 10cm szigetelt motorizált garázsajtó -Külső, belső műanyag
párkány-5db klímakiállás-Riasztó valamint kamerarendszer kicsövezése-Kábel tv ,
internet-10kwh hőszivattyú-Padlófűtés -Fűtött garázs-H tarifa rendszer
kiépítése-Utca fronti kerítés zsalukővel, színezéssel felépítve-Garázs beálló,
gyalogos bejáró házkörüli védőjárda viakolorozott Belső burkolatok, szaniterek a
vevő igénye szerint kerülnek beépítésre.A kivitelező referenciával
rendelkezik.CSALÁDI OTTHONTEREMTÉSI KEDVEZMÉNY (CSOK) és az ILLETÉKKEDVEZMÉNYEK
igénybe vehetők, hitelügyintézésben díjtalanul segítséget nyújtunk.Megtekinthető
telefonos időpont-egyeztetés alapján: Czirják Mihály 20/220-9995
kialakításra kerül amerikai konyhás nappali + 4 hálószoba, háztartási
helyiség. Műszaki tartalom: -Színes aluminium csatornarendszer-Színes bejárati
ajtó-Színes 10cm szigetelt motorizált garázsajtó -Külső, belső műanyag
párkány-5db klímakiállás-Riasztó valamint kamerarendszer kicsövezése-Kábel tv ,
internet-10kwh hőszivattyú-Padlófűtés -Fűtött garázs-H tarifa rendszer
kiépítése-Utca fronti kerítés zsalukővel, színezéssel felépítve-Garázs beálló,
gyalogos bejáró házkörüli védőjárda viakolorozott Belső burkolatok, szaniterek a
vevő igénye szerint kerülnek beépítésre.A kivitelező referenciával
rendelkezik.CSALÁDI OTTHONTEREMTÉSI KEDVEZMÉNY (CSOK) és az ILLETÉKKEDVEZMÉNYEK
igénybe vehetők, hitelügyintézésben díjtalanul segítséget nyújtunk.Megtekinthető
telefonos időpont-egyeztetés alapján: Czirják Mihály 20/220-9995
Részletek...
Adatlap
| Ár: | 98.000.000 Ft |
| Település: | Őrbottyán |
| A hirdető: | Ingatlaniroda ajánlatából |
| Értékesítés típusa: | Eladó |
| Telek nagysága (m2) : | 450 |
| Épület hasznos területe (m2) : | 113 |
| Szobák száma: | 5 |
| A hirdető kérése: | Ingatlanközvetítő vagyok - keresse fel Irodánkat! |
| Feladás dátuma: | 2025.11.11 |
| Eddig megtekintették 39 alkalommal | |
A hirdető adatai
Kapcsolat a hirdetővel...
Családi házak rovaton belül a(z) "Eladó 113m2-es Ikerház, Őrbottyán" című hirdetést látja. (fent)




























