
ÚJ! Nappali + 3 szoba + garázs Gencsapátiban
Szombathely és Gencsapáti határán 16 db új , könnyűszerkezetes lakóház
kerül kialakításra kiváló fekvésű telkeken. Mindez a legújabb SIP
technológiával, figyelembe véve az új modern energetikai és építészeti
jogszabályokat. A DANIELLA LAKÓPARK a 89-es és 87-es főút szomszédságában
helyezkedik el, így gépkocsival Szombathely körgyűrűjén a város minden oldalról
gyorsan és jól megközelíthető. Lakóháza 4-8 hónap alatt a ZBAU gyors és
megbízható kivitelezésében a legjobb minőségben kulcsrakészen elkészül. A
lakóépületbe, lakásokba nem szerelünk gázt, a kialakítandó fűtés elektromos
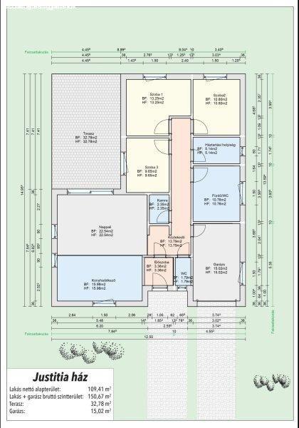
üzemű. Hatféle fűtési lehetőséget kínálunk . A 109 m2-es (nettó) ingatlan
nappali + 3 szobás , valamint 33 m2-es terasz tartozik hozzá és 15 m2-es garázs
is. A lakópark kialakításának rugalmasságát jelzi, hogy ha Ön nagyobb telekre
gondolt vagy másfajta családi házra, akkor arra is van lehetősége.Ha felkeltette
érdeklődését és máris kérdések kavarognak a fejében, akkor kérem hívjon! Igénybe
vehető állami támogatások : CSOK, kamattámogatott hitel, babaváró, ÁFA
visszaigénylés, illeték kedvezményIrodánk segíti Önt a banki ajánlatok és a
támogatások területén is
kerül kialakításra kiváló fekvésű telkeken. Mindez a legújabb SIP
technológiával, figyelembe véve az új modern energetikai és építészeti
jogszabályokat. A DANIELLA LAKÓPARK a 89-es és 87-es főút szomszédságában
helyezkedik el, így gépkocsival Szombathely körgyűrűjén a város minden oldalról
gyorsan és jól megközelíthető. Lakóháza 4-8 hónap alatt a ZBAU gyors és
megbízható kivitelezésében a legjobb minőségben kulcsrakészen elkészül. A
lakóépületbe, lakásokba nem szerelünk gázt, a kialakítandó fűtés elektromos
üzemű. Hatféle fűtési lehetőséget kínálunk . A 109 m2-es (nettó) ingatlan
nappali + 3 szobás , valamint 33 m2-es terasz tartozik hozzá és 15 m2-es garázs
is. A lakópark kialakításának rugalmasságát jelzi, hogy ha Ön nagyobb telekre
gondolt vagy másfajta családi házra, akkor arra is van lehetősége.Ha felkeltette
érdeklődését és máris kérdések kavarognak a fejében, akkor kérem hívjon! Igénybe
vehető állami támogatások : CSOK, kamattámogatott hitel, babaváró, ÁFA
visszaigénylés, illeték kedvezményIrodánk segíti Önt a banki ajánlatok és a
támogatások területén is
Részletek...
Adatlap
| Ár: | 97.969.773 Ft |
| Település: | Gencsapáti |
| A hirdető: | Ingatlaniroda ajánlatából |
| Értékesítés típusa: | Eladó |
| Telek nagysága (m2) : | 478 |
| Épület hasznos területe (m2) : | 109 |
| Anyaga: | Egyéb anyagból készült épület |
| A hirdető kérése: | Ingatlanközvetítő vagyok - keresse fel Irodánkat! |
| Feladás dátuma: | 2026.04.24 |
| Eddig megtekintették 76 alkalommal | |
A hirdető adatai
Kapcsolat a hirdetővel...
Családi házak rovaton belül a(z) "ÚJ! Nappali + 3 szoba + garázs Gencsapátiban" című hirdetést látja. (fent)




























