
Eladó Ház, Siófok
Balaton déli part Siófok 160 m2 családi ház eladó. Az ingatlan Kiliti
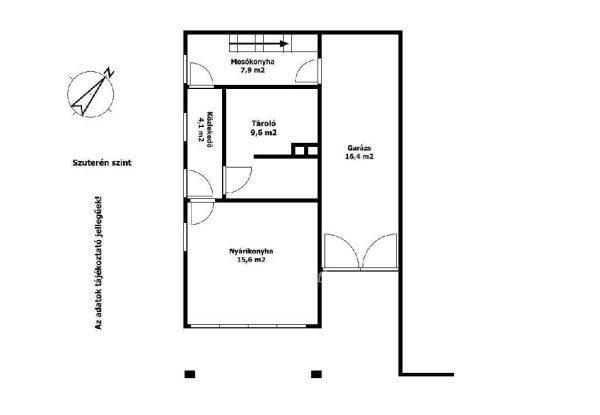
városrészben családi házas övezetben helyezkedik el. A két szintes lakóépület
alsó szintjén garázs, nyári konyha, mosókonyha és tároló kapott helyet, alkalmas
lehet külön lakrészként való hasznosításra. A két szint belső lépcsővel
összekötött. A 108 m2-es lakószinten a lakóelőtérből 3 szoba és egy félszoba
nyílik. A kedvező tájolású nappalihoz teraszkapcsolat biztosított. A tetőtér
jelenleg padlásként funkcionál, belső lépcsőről megközelíthető, de külső lépcső
építése és tetőtér beépítése esetén nettó 90 m2-es önálló lakásként használható
lehet. A lakóépület tetőfedése néhány éve felújításra került. A ház fűtés kombi
gázkazánnal, radiátoros hőleadókkal kiépített a lakószinten, a szuterénben
gázkonvektor fűt. Az összközműves, bekerített telek terület 800 m2, melyen
további gazdasági épület: tároló, műhely található. A lakóépület vásárláshoz OTP
hitel, CSOK+ hitel igénybe vehető, ügyintézésben ingyenes szakértői segítséget
nyújtunk. Balaton-part 3200 méter, autópálya csatlakozás 1200 méter távolságban
van. Otthon Start Hitelprogram Bővebb információért keressen telefonon!
városrészben családi házas övezetben helyezkedik el. A két szintes lakóépület
alsó szintjén garázs, nyári konyha, mosókonyha és tároló kapott helyet, alkalmas
lehet külön lakrészként való hasznosításra. A két szint belső lépcsővel
összekötött. A 108 m2-es lakószinten a lakóelőtérből 3 szoba és egy félszoba
nyílik. A kedvező tájolású nappalihoz teraszkapcsolat biztosított. A tetőtér
jelenleg padlásként funkcionál, belső lépcsőről megközelíthető, de külső lépcső
építése és tetőtér beépítése esetén nettó 90 m2-es önálló lakásként használható
lehet. A lakóépület tetőfedése néhány éve felújításra került. A ház fűtés kombi
gázkazánnal, radiátoros hőleadókkal kiépített a lakószinten, a szuterénben
gázkonvektor fűt. Az összközműves, bekerített telek terület 800 m2, melyen
további gazdasági épület: tároló, műhely található. A lakóépület vásárláshoz OTP
hitel, CSOK+ hitel igénybe vehető, ügyintézésben ingyenes szakértői segítséget
nyújtunk. Balaton-part 3200 méter, autópálya csatlakozás 1200 méter távolságban
van. Otthon Start Hitelprogram Bővebb információért keressen telefonon!
Részletek...
Adatlap
| Ár: | 76.500.000 Ft |
| Település: | Siófok |
| A hirdető: | Ingatlaniroda ajánlatából |
| Értékesítés típusa: | Eladó |
| Használtság: | Használt |
| Telek nagysága (m2) : | 800 |
| Épület hasznos területe (m2) : | 106.00 |
| Szobák száma: | 3 |
| Félszobák száma: | 1 |
| Komfort: | Összkomfortos |
| Fűtés: | Házközponti fűtéses (egyedi méréssel) |
| Ingatlan állapota: | Normál állapotú |
| Feladás dátuma: | 2026.04.24 |
| Eddig megtekintették 67 alkalommal | |
A hirdető adatai
Kapcsolat a hirdetővel...
Családi házak rovaton belül a(z) "Eladó Ház, Siófok" című hirdetést látja. (fent)




























