
Eladó 2 telken lévő felújított 3 lakásos Családi ház Balaton
Kivételes lehetőség Balatonbogláron a település legszebb szabadstranja
közelében! -Két helyrajzi számon nyílvántartott, akár 4 részre osztható, két
utcára nyíló több bejárattal rendelkező ingatlan!A kellemes részben térkővel,
ősfákkal ellátott, gyönyörűen parkosított telkeken 3 felújított lakóegység és
további lakhatásra is alkalmas épületek találhatók.-A két fő apartman teljes
körű felújítása most fejeződőtt be, melyekben elekromos alumínium redőnnyel,
szunyoghálóval felszerelt nyílászárók, új szigetelt cseréptető,
homlokzatszigetelés, modern stílusos burkolatok, prémium minőségű gépesített
konyhák kerültek beépítésre.-Mindhárom apartman fűtését egyenként beépített új
kondenzációs gázkazán látja el. -A két fő apartmanban padlófőtés illetve
radiátorok , klímák biztosítják a kellemes hőmérsékletet.-Dupla teleknek
köszönhetően kimondottan széles utcafronttal rendelkezik, több bejárattal
elaktromos kapukkal ellátott.-Beépített kamerarendszer került kialakításra.-Új
napellemeknek köszönhetően kimondottan jó energetika jellemzi az ingatlant.-A 1.
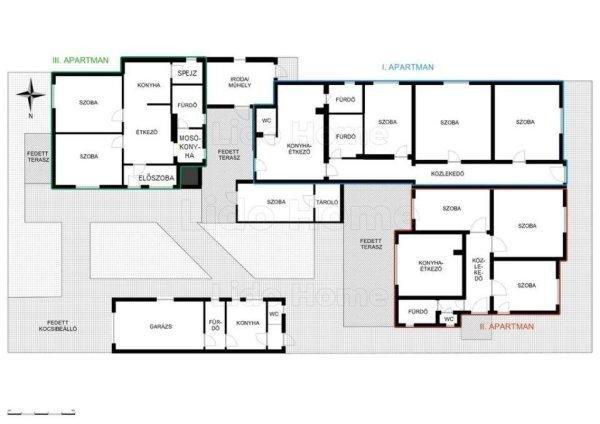
107 m2 + 14 m2 fedett terasszal rendelkező apartman helyiségkiosztása: konyha
étkezővel, 3 szoba, 2 fürdőszoba, folyosó, külön mellékhelyiség.-A 2. 72 m2 +30
m2 fedett terasz kialakítású apartmanban: 3 szoba, konyha étkezővel, előszoba, 2
fürdőszoba, külön megllékhelyiség kiosztású.-A 3. 60 m2 + 4 m terasz felépítésű
házban: 2 hálószoba, konyha, fürdőszoba, előszoba, mosókonyha került
kialakításra. -Ez az ingatlan is új cseréptetővel rendelkezik, kívül teljes
körűen felújított belűl jó állapotú.További felépítmények: 30 m2 melynek fele
garázsként használható, másik oldalon jelenleg nyári konyha, fürdőszoba, tároló
található. -14 m2 önnáló épület jelenleg szobaként és tárolóként funkcionál. -a
3. 10 m2 es ingatlan hasznosítható.Per.-igény tehermentes. -Rugalmasan
emegtekinthető.Amennyiben a LIDO HOME BALATONBOGLÁR által kínált családi ház,
vagy bármely a kínálatunkban található ingatlan felkeltette érdeklődését hívjon
bizalommal.LIDO HOME - Ingatlanok egy életen át!
közelében! -Két helyrajzi számon nyílvántartott, akár 4 részre osztható, két
utcára nyíló több bejárattal rendelkező ingatlan!A kellemes részben térkővel,
ősfákkal ellátott, gyönyörűen parkosított telkeken 3 felújított lakóegység és
további lakhatásra is alkalmas épületek találhatók.-A két fő apartman teljes
körű felújítása most fejeződőtt be, melyekben elekromos alumínium redőnnyel,
szunyoghálóval felszerelt nyílászárók, új szigetelt cseréptető,
homlokzatszigetelés, modern stílusos burkolatok, prémium minőségű gépesített
konyhák kerültek beépítésre.-Mindhárom apartman fűtését egyenként beépített új
kondenzációs gázkazán látja el. -A két fő apartmanban padlófőtés illetve
radiátorok , klímák biztosítják a kellemes hőmérsékletet.-Dupla teleknek
köszönhetően kimondottan széles utcafronttal rendelkezik, több bejárattal
elaktromos kapukkal ellátott.-Beépített kamerarendszer került kialakításra.-Új
napellemeknek köszönhetően kimondottan jó energetika jellemzi az ingatlant.-A 1.
107 m2 + 14 m2 fedett terasszal rendelkező apartman helyiségkiosztása: konyha
étkezővel, 3 szoba, 2 fürdőszoba, folyosó, külön mellékhelyiség.-A 2. 72 m2 +30
m2 fedett terasz kialakítású apartmanban: 3 szoba, konyha étkezővel, előszoba, 2
fürdőszoba, külön megllékhelyiség kiosztású.-A 3. 60 m2 + 4 m terasz felépítésű
házban: 2 hálószoba, konyha, fürdőszoba, előszoba, mosókonyha került
kialakításra. -Ez az ingatlan is új cseréptetővel rendelkezik, kívül teljes
körűen felújított belűl jó állapotú.További felépítmények: 30 m2 melynek fele
garázsként használható, másik oldalon jelenleg nyári konyha, fürdőszoba, tároló
található. -14 m2 önnáló épület jelenleg szobaként és tárolóként funkcionál. -a
3. 10 m2 es ingatlan hasznosítható.Per.-igény tehermentes. -Rugalmasan
emegtekinthető.Amennyiben a LIDO HOME BALATONBOGLÁR által kínált családi ház,
vagy bármely a kínálatunkban található ingatlan felkeltette érdeklődését hívjon
bizalommal.LIDO HOME - Ingatlanok egy életen át!
Részletek...
Adatlap
| Ár: | 420.000.000 Ft |
| Település: | Balatonboglár |
| A hirdető: | Ingatlaniroda ajánlatából |
| Értékesítés típusa: | Eladó |
| Használtság: | Használt |
| Telek nagysága (m2) : | 1074 |
| Épület hasznos területe (m2) : | 318.00 |
| Szobák száma: | 8 |
| Ingatlan állapota: | Felújított |
| Feladás dátuma: | 2026.05.01 |
| Eddig megtekintették 90 alkalommal | |
A hirdető adatai
Kapcsolat a hirdetővel...
Családi házak rovaton belül a(z) "Eladó 2 telken lévő felújított 3 lakásos Családi ház Balaton" című hirdetést látja. (fent)




























