
Eladó családi ház Gencsapáti, Daniella Lakópark
EGY TECHNOLÓGIA AMI MEGHÓDÍTOTTA A VILÁGOTKöltözzön még az idén!Kanadában és
az Egyesült Államokban már a legelterjedtebb könnyűszerkezetes házak építési
technológiája, ami most már Magyarországon is elérhető. A DANIELLA LAKÓPARK
Szombathely és Gencsapáti határán várja új lakóit.Zöldmezős beruházásként
összesen 16 db könnyűszerkezetes lakóház kerül kialakításra. Kiváló fekvésű
telkeken építjük fel új otthonát, a legmodernebb SIP technológiával, figyelembe
véve az új modern energetikai és építészeti jogszabályokat. Lakóháza 4-8 hónap
alatt a ZBAU gyors és megbízható kivitelezésében a legjobb minőségben
kulcsrakészen elkészül. A DANIELLA LAKÓPARK a 89-es és 87-es főút
szomszédságában helyezkedik el, így gépkocsival Szombathely körgyűrűjén a város
minden oldalról gyorsan és jól megközelíthető. A 89-es és 87-es főútvonalak pár
éven belül további fejlesztésen esnek át, ezáltal a gyorsforgalmi utak közvetlen
és gyorsabb elérést biztosítanak Kőszeg, Bucsu és Ausztria de a 86-os főút
közvetlen irányában is. A telkek összterülete épületenként megoszlik, így
egy-egy épülethez tartozó telekméret várhatóan 438 és 478 m2 közé esik. Családi
házaink alaprajzai változatos elrendezéssel a mai kornak megfelelő igények
alapján készültek, tíz különböző típustervből választhat. A terveket komoly
múlttal rendelkező építészmérnökök készítették, mely hátteret biztosít az új
modern építészet és a felmerülő igények összehangolásában. Egyedi
tervdokumentáció alapján is kivitelezzük modern SIP panelből készült otthonát! A
lakóépületbe, lakásokba nem szerelünk gázt, a kialakítandó fűtés elektromos
üzemű. Az alapfelszereltségben a teljes épületben hagyományos vizes rendszerű
padlófűtést és 6Kw fűtőteljesítményíg AT-fűtőmodult (elektromos kazán) szerelünk
az épületekbe. Így a hagyományos vízkeringetős padlófűtéses technológiával
biztosítható a fűtési rendszer melynél a hőledó maga a teljes padlófelület. Kis
helyigénye és nagyon magas fűtési hatásfoka megfelel a legmagasabb elvárásoknak
és kimeríti az épület fűtési energiájának használatát. Ezen felül választhat más
fűtéstecnológiák közül.Gree levegő-víz hőszívattyús rendszer hagyományos
vízkeringetős technológiával, mely fan-coil hőleadókkal van felszerelve.
Hatékonysága messze erőteljes fűtés/hűtés kialakítására ad lehetőséget
elektromos rendszerekre hangolva. A falra szerelhető fan-coil hőleadó pedig
alacsony hőmérsékletű (30-35 fokos) vízes rendszereknél magas hatásfokot
biztosít a fűtés és egyben hűtés elérésére. Ezzel a technológiával nem csak a
fűtést hanem egyben a hűtést is tudjuk biztosítani az épületben és mindezt egy
berendezésen keresztül. Mivel a beépített eszközök, termékek A++ jelzésűek ezért
az épület energetikai besorolása az új jogszabályoknak megfelel és az ingatlan
várható eredménye a majdnem nulla energiaosztályba sorolást kaphatja (76kWh/m2
alatti érték). Ebben az esetben a vízkeringetős padlófűtés a csőhálózat
lefektetésével választható ,opcionálisan kérhető. Az eszköz egyben használati
melegvíz előállítására is alkalmas. Osztott rendszerű hőszivattyú, beépített
185l-es HMV tárolóval, magyar nyelvű kezelőfelülettel és számos extra
kiegészítővel. Külön beltéri és kültéri egységből áll. Felépítéséből adódóan kis
helyigényű készülék. Saját beépített HMV tárolóval, fűtőbetéttel, és háromjáratú
váltószeleppel a könnyebb telepíthetőség érdekében. Alkalmazkodva a kor
igényeihez Wi-Fi eléréssel és saját Gree alkalmazással távolról kezelhető.2 féle
fan-coil hőleadó berendezés közül választhat, a falraszerelt és a lábon álló
verziók egyikéből. Az egyik helytakarékos, míg a másik könnyebben kezelhető..
Norvég elektromos Wi-fi fűtőpaneleket szerelünk 2023 Júliustól kiegészítő,
rásegítő fűtésként. A radiátorok helyett jól működő elektromos fűtések az új
2023 Novemberi jogszabályban meghatározott elektromos energiafelvétel miatt,
kisegítő fűtésként vagy napelemmel együtt működtetve éri el azokat az
energetikai értékeket amik szükségesek az új építésű épületek energetikai
számításaihoz. Ezért elsősorban fürdőszobába, Wc helyiségbe vagy olyan kisegítős
helyiségekbe szereljük, ajánljuk amikkel az épület energetikai jellemzőit nem
vagy csekély mértékben befolyásoljuk. Kialakításuk nem igényelnek különösebb
kivitelezési feladatokat a villanyszerelésen kívül. Minden szobában lévő
fűtőpanel külön termosztáttal van ellátva és wi-fi vel okostelefonról is
működtethető. Akár szobánkénti fűtésállítási lehetőség, vagy fűtőtestenkénti
távvezérlés. Mire hazaér fűtött térbe ér haza. Költséghatékony és modern
megjelenést biztosít hosszútávon. Többféle színben.A Norvég elektromos
padlófűtési rendszert kiegészítő fűtésként ajánljuk a fűtőpanelek mellé vagy
akár helyettük is. Abban az esetben ha nem a hagyományos csőkígyós megoldást
választja úgy ezen termékek kialakítása nem igényel különösebb kivitelezési
feladatokat a villanyszerelésen és az alap burkolásokon kívül. Itt közvetlen a
járólap vagy burkolatok alá kerül beépítésre a fűtőszönyeg, mely költséghatékony
kivitelezést eredményez. Olyan helyiségekbe ajánljuk ahol hidegburkolattal
ellátott padozat kerül kialakításra (mint pl.: fürdő, Wc, nappali, konyha stb).
Minden helyiség külön termosztáttal van ellátva és wi-fi vel okostelefonról is
működtethető. Akár helyiségenkénti fűtés állítási lehetőségre is van lehetőség.
Költséghatékony és hosszútávon jól üzemelő rendszer. A hirdetésben szereplő
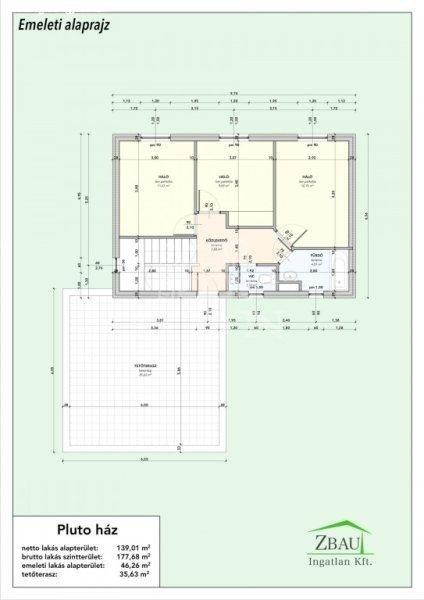
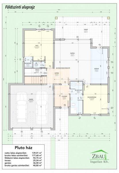
ingatlan a Pluto típusház. A Pluto ház ára a kulcsrakész állapot alapján került
kiszámításra. Ha felkeltette érdeklődését, bővebb tájékoztatásért keresse
irodánkat !Igénybe vehető állami támogatások : CSOK, kamattámogatott hitel,
babaváró, ÁFA visszaigénylés, illeték kedvezmény. Ragadja meg a lehetőségeket,
még ebben az évben. Referencia házak megtekinthetők. ...TOVÁBBI, TÖBBEZRES
INGATLAN KÍNÁLAT: www.gdn-ingatlan.hu - GDN azonosító: 334286
az Egyesült Államokban már a legelterjedtebb könnyűszerkezetes házak építési
technológiája, ami most már Magyarországon is elérhető. A DANIELLA LAKÓPARK
Szombathely és Gencsapáti határán várja új lakóit.Zöldmezős beruházásként
összesen 16 db könnyűszerkezetes lakóház kerül kialakításra. Kiváló fekvésű
telkeken építjük fel új otthonát, a legmodernebb SIP technológiával, figyelembe
véve az új modern energetikai és építészeti jogszabályokat. Lakóháza 4-8 hónap
alatt a ZBAU gyors és megbízható kivitelezésében a legjobb minőségben
kulcsrakészen elkészül. A DANIELLA LAKÓPARK a 89-es és 87-es főút
szomszédságában helyezkedik el, így gépkocsival Szombathely körgyűrűjén a város
minden oldalról gyorsan és jól megközelíthető. A 89-es és 87-es főútvonalak pár
éven belül további fejlesztésen esnek át, ezáltal a gyorsforgalmi utak közvetlen
és gyorsabb elérést biztosítanak Kőszeg, Bucsu és Ausztria de a 86-os főút
közvetlen irányában is. A telkek összterülete épületenként megoszlik, így
egy-egy épülethez tartozó telekméret várhatóan 438 és 478 m2 közé esik. Családi
házaink alaprajzai változatos elrendezéssel a mai kornak megfelelő igények
alapján készültek, tíz különböző típustervből választhat. A terveket komoly
múlttal rendelkező építészmérnökök készítették, mely hátteret biztosít az új
modern építészet és a felmerülő igények összehangolásában. Egyedi
tervdokumentáció alapján is kivitelezzük modern SIP panelből készült otthonát! A
lakóépületbe, lakásokba nem szerelünk gázt, a kialakítandó fűtés elektromos
üzemű. Az alapfelszereltségben a teljes épületben hagyományos vizes rendszerű
padlófűtést és 6Kw fűtőteljesítményíg AT-fűtőmodult (elektromos kazán) szerelünk
az épületekbe. Így a hagyományos vízkeringetős padlófűtéses technológiával
biztosítható a fűtési rendszer melynél a hőledó maga a teljes padlófelület. Kis
helyigénye és nagyon magas fűtési hatásfoka megfelel a legmagasabb elvárásoknak
és kimeríti az épület fűtési energiájának használatát. Ezen felül választhat más
fűtéstecnológiák közül.Gree levegő-víz hőszívattyús rendszer hagyományos
vízkeringetős technológiával, mely fan-coil hőleadókkal van felszerelve.
Hatékonysága messze erőteljes fűtés/hűtés kialakítására ad lehetőséget
elektromos rendszerekre hangolva. A falra szerelhető fan-coil hőleadó pedig
alacsony hőmérsékletű (30-35 fokos) vízes rendszereknél magas hatásfokot
biztosít a fűtés és egyben hűtés elérésére. Ezzel a technológiával nem csak a
fűtést hanem egyben a hűtést is tudjuk biztosítani az épületben és mindezt egy
berendezésen keresztül. Mivel a beépített eszközök, termékek A++ jelzésűek ezért
az épület energetikai besorolása az új jogszabályoknak megfelel és az ingatlan
várható eredménye a majdnem nulla energiaosztályba sorolást kaphatja (76kWh/m2
alatti érték). Ebben az esetben a vízkeringetős padlófűtés a csőhálózat
lefektetésével választható ,opcionálisan kérhető. Az eszköz egyben használati
melegvíz előállítására is alkalmas. Osztott rendszerű hőszivattyú, beépített
185l-es HMV tárolóval, magyar nyelvű kezelőfelülettel és számos extra
kiegészítővel. Külön beltéri és kültéri egységből áll. Felépítéséből adódóan kis
helyigényű készülék. Saját beépített HMV tárolóval, fűtőbetéttel, és háromjáratú
váltószeleppel a könnyebb telepíthetőség érdekében. Alkalmazkodva a kor
igényeihez Wi-Fi eléréssel és saját Gree alkalmazással távolról kezelhető.2 féle
fan-coil hőleadó berendezés közül választhat, a falraszerelt és a lábon álló
verziók egyikéből. Az egyik helytakarékos, míg a másik könnyebben kezelhető..
Norvég elektromos Wi-fi fűtőpaneleket szerelünk 2023 Júliustól kiegészítő,
rásegítő fűtésként. A radiátorok helyett jól működő elektromos fűtések az új
2023 Novemberi jogszabályban meghatározott elektromos energiafelvétel miatt,
kisegítő fűtésként vagy napelemmel együtt működtetve éri el azokat az
energetikai értékeket amik szükségesek az új építésű épületek energetikai
számításaihoz. Ezért elsősorban fürdőszobába, Wc helyiségbe vagy olyan kisegítős
helyiségekbe szereljük, ajánljuk amikkel az épület energetikai jellemzőit nem
vagy csekély mértékben befolyásoljuk. Kialakításuk nem igényelnek különösebb
kivitelezési feladatokat a villanyszerelésen kívül. Minden szobában lévő
fűtőpanel külön termosztáttal van ellátva és wi-fi vel okostelefonról is
működtethető. Akár szobánkénti fűtésállítási lehetőség, vagy fűtőtestenkénti
távvezérlés. Mire hazaér fűtött térbe ér haza. Költséghatékony és modern
megjelenést biztosít hosszútávon. Többféle színben.A Norvég elektromos
padlófűtési rendszert kiegészítő fűtésként ajánljuk a fűtőpanelek mellé vagy
akár helyettük is. Abban az esetben ha nem a hagyományos csőkígyós megoldást
választja úgy ezen termékek kialakítása nem igényel különösebb kivitelezési
feladatokat a villanyszerelésen és az alap burkolásokon kívül. Itt közvetlen a
járólap vagy burkolatok alá kerül beépítésre a fűtőszönyeg, mely költséghatékony
kivitelezést eredményez. Olyan helyiségekbe ajánljuk ahol hidegburkolattal
ellátott padozat kerül kialakításra (mint pl.: fürdő, Wc, nappali, konyha stb).
Minden helyiség külön termosztáttal van ellátva és wi-fi vel okostelefonról is
működtethető. Akár helyiségenkénti fűtés állítási lehetőségre is van lehetőség.
Költséghatékony és hosszútávon jól üzemelő rendszer. A hirdetésben szereplő
ingatlan a Pluto típusház. A Pluto ház ára a kulcsrakész állapot alapján került
kiszámításra. Ha felkeltette érdeklődését, bővebb tájékoztatásért keresse
irodánkat !Igénybe vehető állami támogatások : CSOK, kamattámogatott hitel,
babaváró, ÁFA visszaigénylés, illeték kedvezmény. Ragadja meg a lehetőségeket,
még ebben az évben. Referencia házak megtekinthetők. ...TOVÁBBI, TÖBBEZRES
INGATLAN KÍNÁLAT: www.gdn-ingatlan.hu - GDN azonosító: 334286
Részletek...
Adatlap
| Ár: | 144.535.826 Ft |
| Település: | Gencsapáti |
| A hirdető: | Ingatlaniroda ajánlatából |
| Értékesítés típusa: | Eladó |
| Használtság: | Új építésű |
| Utca: | Daniella Lakópark |
| Telek nagysága (m2) : | 478 |
| Épület hasznos területe (m2) : | 186 |
| Szobák száma: | 6 |
| Fűtés: | Egyéb fűtéses |
| Anyaga: | Egyéb anyagból készült épület |
| A hirdető kérése: | Ingatlanközvetítő vagyok - keresse fel Irodánkat! |
| Feladás dátuma: | 2026.05.08 |
| Eddig megtekintették 69 alkalommal | |
A hirdető adatai
Kapcsolat a hirdetővel...
Családi házak rovaton belül a(z) "Eladó családi ház Gencsapáti, Daniella Lakópark" című hirdetést látja. (fent)




























