
Eladó családi ház Budakeszi, Máriamakk
BUDAKESZIN, MÁRIAMAKKON, TÖBB GENERÁCIÓS, PANORÁMÁS, 550NM-ES, 10 + 6 FÉLSZOBÁS
CSALÁDI HÁZ ELADÓ!A Budakeszi erdő közelében, csendes nyugodt környezetben eladó
egy 2005-ben épült, 3 szintes családi ház. A szintek külön bejáratúak, ezért
alkalmas lehet több generáció vagy több család számára is. A fűtést és a meleg
víz ellátást központosított gázkazán biztosítja. Újszerű fa nyílászárók
redőnnyel és szúnyoghálóval.ALSÓ SZINT:- 2 kocsibeállós garázs (60 nm),- WC (1,3
nm),- raktár helységek (össz: 85 nm).A raktárak egybenyitásával tökéletesen
alkalmas lehet üzleti tevékenység végzésére, irodai szobák, edzőterem,
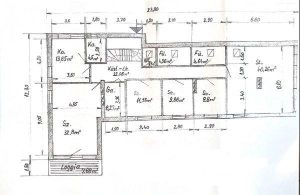
spa-részleg kialakítására.KÖZÉPSŐ SZINT: - konyha (10,6 nm),- tárgyaló, iroda
(35 nm),- nappali (33 nm),- 2 fürdőszoba (5 nm; 5 nm),- 2 WC (1,1 nm; 1,1 nm),-
3 hálószoba (11,1 nm; 13,2 nm; 16 nm),- gardrób (6 nm),- panorámás terasz
kertkapcsolattal (17 nm).FELSŐ SZINT:- konyha (13,7 nm),- nappali (32,8 nm),-
gardrób (6,3 nm),- 3 hálószoba (11,6 nm; 9,9 nm; 9,8 nm),- 2 fürdőszoba (5 nm;
4,6 nm),- WC (2 nm),- iroda (40,3 nm).Parkolási lehetőség 2 autó számára
garázsban, további 3-4 autónak a garázs előtti területen.A ház Budakeszi
központi részén, a Fő utcához közel, mégis csendes részen található. Iskola,
óvoda, számos bevásárlási lehetőség, orvosi rendelő pár perces séta vagy rövid
autós távolságon belül.A tömegközlekedési lehetőségek közül BKV buszok (22, 22A,
222) Széll Kálmán téri végállomással, illetve a 188-as Volánbusz Kelenföldi
végcéllal választhatóak.Ha bármi további kérdése van vagy szeretné megtekinteni,
kérem hívjon! Ha nem venném fel, visszahívom!HITELRE VAN SZÜKSÉGE? Segítünk
Önnek megtalálni a legjobb megoldást a legalacsonyabb kamatokkal! Ingyenes
előbírálat, 4 hónapig érvényes hitelígérvénnyel!AMENNYIBEN NEM RENDELKEZIK A
TELJES VÉTELÁRRAL, segítünk Önnek megtalálni a legjobb megoldást!BANKFÜGGETLEN
hitelcentrumunk minden elérhető bank és hitelintézet ajánlatát versenyezteti az
Ön kedvéért, ráadásul díjmentesen. Önnek nincs más dolga, mint elbeszélgetni
munkatársunkkal, aki a hallott információk alapján versenyre hívja a bankokat,
hogy Ön hosszú távon is a legjobb konstrukciót kaphassa. A legjobb ajánlatokból
végül Ön választhatja ki a nyertest. Munkatársaink sokéves szakmai
tapasztalattal várják Önt, előre egyeztetve akár a normál munkaidő után is.
...TOVÁBBI, TÖBBEZRES INGATLAN KÍNÁLAT: www.gdn-ingatlan.hu - GDN azonosító:
337005
CSALÁDI HÁZ ELADÓ!A Budakeszi erdő közelében, csendes nyugodt környezetben eladó
egy 2005-ben épült, 3 szintes családi ház. A szintek külön bejáratúak, ezért
alkalmas lehet több generáció vagy több család számára is. A fűtést és a meleg
víz ellátást központosított gázkazán biztosítja. Újszerű fa nyílászárók
redőnnyel és szúnyoghálóval.ALSÓ SZINT:- 2 kocsibeállós garázs (60 nm),- WC (1,3
nm),- raktár helységek (össz: 85 nm).A raktárak egybenyitásával tökéletesen
alkalmas lehet üzleti tevékenység végzésére, irodai szobák, edzőterem,
spa-részleg kialakítására.KÖZÉPSŐ SZINT: - konyha (10,6 nm),- tárgyaló, iroda
(35 nm),- nappali (33 nm),- 2 fürdőszoba (5 nm; 5 nm),- 2 WC (1,1 nm; 1,1 nm),-
3 hálószoba (11,1 nm; 13,2 nm; 16 nm),- gardrób (6 nm),- panorámás terasz
kertkapcsolattal (17 nm).FELSŐ SZINT:- konyha (13,7 nm),- nappali (32,8 nm),-
gardrób (6,3 nm),- 3 hálószoba (11,6 nm; 9,9 nm; 9,8 nm),- 2 fürdőszoba (5 nm;
4,6 nm),- WC (2 nm),- iroda (40,3 nm).Parkolási lehetőség 2 autó számára
garázsban, további 3-4 autónak a garázs előtti területen.A ház Budakeszi
központi részén, a Fő utcához közel, mégis csendes részen található. Iskola,
óvoda, számos bevásárlási lehetőség, orvosi rendelő pár perces séta vagy rövid
autós távolságon belül.A tömegközlekedési lehetőségek közül BKV buszok (22, 22A,
222) Széll Kálmán téri végállomással, illetve a 188-as Volánbusz Kelenföldi
végcéllal választhatóak.Ha bármi további kérdése van vagy szeretné megtekinteni,
kérem hívjon! Ha nem venném fel, visszahívom!HITELRE VAN SZÜKSÉGE? Segítünk
Önnek megtalálni a legjobb megoldást a legalacsonyabb kamatokkal! Ingyenes
előbírálat, 4 hónapig érvényes hitelígérvénnyel!AMENNYIBEN NEM RENDELKEZIK A
TELJES VÉTELÁRRAL, segítünk Önnek megtalálni a legjobb megoldást!BANKFÜGGETLEN
hitelcentrumunk minden elérhető bank és hitelintézet ajánlatát versenyezteti az
Ön kedvéért, ráadásul díjmentesen. Önnek nincs más dolga, mint elbeszélgetni
munkatársunkkal, aki a hallott információk alapján versenyre hívja a bankokat,
hogy Ön hosszú távon is a legjobb konstrukciót kaphassa. A legjobb ajánlatokból
végül Ön választhatja ki a nyertest. Munkatársaink sokéves szakmai
tapasztalattal várják Önt, előre egyeztetve akár a normál munkaidő után is.
...TOVÁBBI, TÖBBEZRES INGATLAN KÍNÁLAT: www.gdn-ingatlan.hu - GDN azonosító:
337005
Részletek...
Adatlap
| Ár: | 349.900.000 Ft |
| Település: | Budakeszi |
| A hirdető: | Ingatlaniroda ajánlatából |
| Értékesítés típusa: | Eladó |
| Használtság: | Használt |
| Utca: | Máriamakk |
| Telek nagysága (m2) : | 1819 |
| Épület hasznos területe (m2) : | 550 |
| Szobák száma: | 10 |
| Félszobák száma: | 6 |
| Fűtés: | Cirkó fűtéses |
| Ingatlan állapota: | Normál állapotú |
| Anyaga: | Tégla |
| A hirdető kérése: | Ingatlanközvetítő vagyok - keresse fel Irodánkat! |
| Feladás dátuma: | 2026.05.08 |
| Eddig megtekintették 77 alkalommal | |
A hirdető adatai
Kapcsolat a hirdetővel...
Családi házak rovaton belül a(z) "Eladó családi ház Budakeszi, Máriamakk" című hirdetést látja. (fent)




























