
Eladó családi ház Hegyhátszentjakab, Vadása u.
Gyöngyszem a Vadása-tó partjához közel! A Vadása-tó csodálatosan szép
környezetben az Őrség dombjai által határolt, négy hektár nagyságú,
természetvédelmi területen helyezkedik el. Az Őrségi Nemzeti Park jól járható
turista útvonalai itt futnak össze. A tó tiszta vízét 12 forrás táplálja.A
Vadása-tó két tóból áll. A kisebb vízfelületű tó vadregényes, sűrű erdő közepén
fekszik. Elsősorban a horgászok kedvelt helye. A nagyobb tó strandolásra
alkalmas. Hegyhátszentjakab település, a Vasi Hegyháton, Körmendtől 20
kilométerre délre, Zalalövőtől 7 kilométerre északnyugatra helyezkedik el. Ebben
a csodálatos üdülő környezetben kínálok eladásra olyan ingatlant, amely több
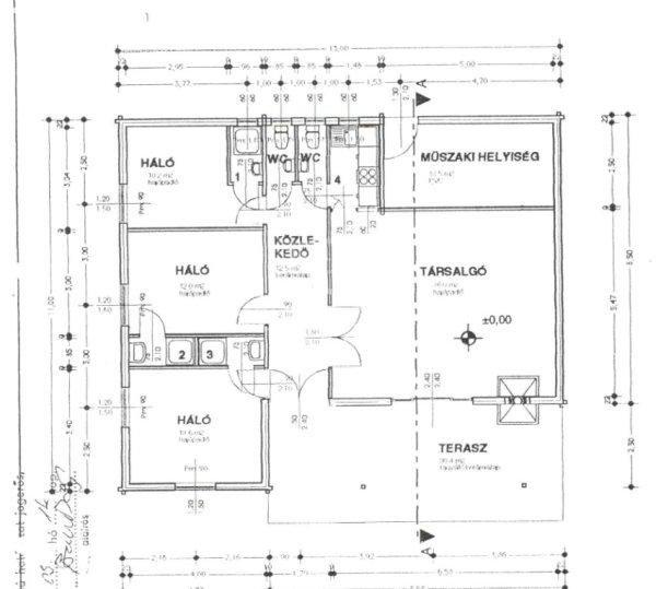
funkciót is elláthat. Jelenleg a hangulatos faházat, életvitelszerűen lakják.
Alsó szintjén három hálószoba, külön tusolóval, hatalmas nappali, étkező,
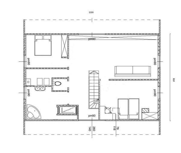
konyha, 2db wc található. Beépített tetőterében, tágas nappali beépített
egyedileg tervezett bútorokkal, villanykandallóval, luxus fürdőszoba,(
masszázskáddal, tusolóval, tv-vel felszerelt ) kettő hálószoba lett kialakítva.
Minőségi anyagok beépítésével valósították meg a kreatív ötleteket. A ház fűtése
gáz-cirkó kazánnal, kandallóval, infra padlófűtéssel, panellel és
villanykandallóval történik. Az ablakok zsalugáterrel, szúnyoghálóval
felszereltek. A dupla teraszajtón elektromos aluredőny van. A ház felső szintjét
az átalakítás óta nem használták, itt minden új. Az épületet 30 m2-es terasz
köti össze a természettel. Ha olyan helyen szeretne élni, pihenni, vállalkozni,
ahol meghatározó szerepe van a nyugalomnak, madárcsicsergésnek, kirándulásnak,
ide el kell jönni megtekinteni.Ha bővebb tájékoztatást szeretne, keressen
elérhetőségeimen. ...TOVÁBBI, TÖBBEZRES INGATLAN KÍNÁLAT: www.gdn-ingatlan.hu -
GDN azonosító: 341704
környezetben az Őrség dombjai által határolt, négy hektár nagyságú,
természetvédelmi területen helyezkedik el. Az Őrségi Nemzeti Park jól járható
turista útvonalai itt futnak össze. A tó tiszta vízét 12 forrás táplálja.A
Vadása-tó két tóból áll. A kisebb vízfelületű tó vadregényes, sűrű erdő közepén
fekszik. Elsősorban a horgászok kedvelt helye. A nagyobb tó strandolásra
alkalmas. Hegyhátszentjakab település, a Vasi Hegyháton, Körmendtől 20
kilométerre délre, Zalalövőtől 7 kilométerre északnyugatra helyezkedik el. Ebben
a csodálatos üdülő környezetben kínálok eladásra olyan ingatlant, amely több
funkciót is elláthat. Jelenleg a hangulatos faházat, életvitelszerűen lakják.
Alsó szintjén három hálószoba, külön tusolóval, hatalmas nappali, étkező,
konyha, 2db wc található. Beépített tetőterében, tágas nappali beépített
egyedileg tervezett bútorokkal, villanykandallóval, luxus fürdőszoba,(
masszázskáddal, tusolóval, tv-vel felszerelt ) kettő hálószoba lett kialakítva.
Minőségi anyagok beépítésével valósították meg a kreatív ötleteket. A ház fűtése
gáz-cirkó kazánnal, kandallóval, infra padlófűtéssel, panellel és
villanykandallóval történik. Az ablakok zsalugáterrel, szúnyoghálóval
felszereltek. A dupla teraszajtón elektromos aluredőny van. A ház felső szintjét
az átalakítás óta nem használták, itt minden új. Az épületet 30 m2-es terasz
köti össze a természettel. Ha olyan helyen szeretne élni, pihenni, vállalkozni,
ahol meghatározó szerepe van a nyugalomnak, madárcsicsergésnek, kirándulásnak,
ide el kell jönni megtekinteni.Ha bővebb tájékoztatást szeretne, keressen
elérhetőségeimen. ...TOVÁBBI, TÖBBEZRES INGATLAN KÍNÁLAT: www.gdn-ingatlan.hu -
GDN azonosító: 341704
Részletek...
Adatlap
| Ár: | 86.000.000 Ft |
| Település: | Hegyhátszentjakab |
| A hirdető: | Ingatlaniroda ajánlatából |
| Értékesítés típusa: | Eladó |
| Használtság: | Használt |
| Utca: | Vadása u. |
| Telek nagysága (m2) : | 600 |
| Épület hasznos területe (m2) : | 237 |
| Szobák száma: | 5 |
| Fűtés: | Cirkó fűtéses |
| Ingatlan állapota: | Felújított |
| Anyaga: | Fa |
| A hirdető kérése: | Ingatlanközvetítő vagyok - keresse fel Irodánkat! |
| Feladás dátuma: | 2026.05.08 |
| Eddig megtekintették 66 alkalommal | |
A hirdető adatai
Kapcsolat a hirdetővel...
Családi házak rovaton belül a(z) "Eladó családi ház Hegyhátszentjakab, Vadása u." című hirdetést látja. (fent)




























