
Eladó családi ház Forráskút, Forráskút Szegedhez közeli vég
FORRÁSKÚTI ÚJ,KULCSRAKÉSZ MAGÁNHÁZAK Forráskúton kínálunk eladásra egy
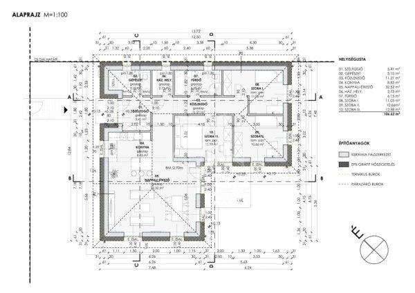
tervezett, új építésű földszintes családi házat, amely 113 m2-es lakóteret
biztosít egy tágas, 800 m2-es telken. Az ingatlan jelenleg terv szinten van, de
a kivitelezés kulcsrakész állapotban lesz megvalósítva, teljesen a leendő
tulajdonos igényeire szabva.A ház elrendezése átgondolt és praktikus: a központi
tér egy világos nappali, amely egybenyílik az étkezővel és az amerikai
konyhával. Innen nyílnak a hálószobák, összesen három külön szoba,
amelyekideálisak lehetnek gyerekeknek, vendégszobának vagy dolgozószobának. A
mindennapi kényelmet szolgálja egy fürdőszoba, kamra és továbbá egy WC és
kézmosóval ellátott háztartási helyiség is helyet kapott a tervben a bejárat
közelében. Az étkező után egy teraszra léphetünk ki, amely tökéletes helyszíne
lehet reggeli kávézásnak vagy baráti összejöveteleknek.A ház korszerű építési
megoldásokkal készül: Porotherm téglafalak és 15 centiméteres hőszigetelés
gondoskodnak a stabilitásról és az energiahatékonyságról, míg a háromrétegű
üvegezésű nyílászárókbiztosítják a jó hő- és hangszigetelést. A tetőszerkezet
szeglemezes kialakítású, betoncseréppel fedve, a külső homlokzat pedig színezve
és szigetelve készül el. Természetesen minden közmű ? víz, villany,csatorna ?
rendelkezésre áll.A villany- és vízvezetékek kiépítése teljes mértékben
előkészítve történik, így biztosítva a lámpák,konnektorok, televízió és internet
bekötésének lehetőségét. A fürdőszobai és konyhai kiállások szintén kialakításra
kerülnek, valamint a riasztórendszer és a külső világítás is előkészített
állapotban várja a tulajdonost. A fűtés és a hűtés kialakítása a vásárlóra van
bízva, így szabadon választható hőszivattyú,vagy akár klíma is.Ez az ingatlan
tökéletes lehetőség azok számára, akik egy nyugodt, barátságos környezetben
szeretnék megvalósítani álmaik otthonát. A nagy telek (800m2)számtalan
lehetőséget kínál: kert, játszótér vagy akár medence is helyet kaphat rajta,
miközben Forráskút békés hangulata és Szeged közelsége ideális kombinációt
teremt a mindennapi élethez. ...TOVÁBBI, TÖBBEZRES INGATLAN KÍNÁLAT:
www.gdn-ingatlan.hu - GDN azonosító: 348979
tervezett, új építésű földszintes családi házat, amely 113 m2-es lakóteret
biztosít egy tágas, 800 m2-es telken. Az ingatlan jelenleg terv szinten van, de
a kivitelezés kulcsrakész állapotban lesz megvalósítva, teljesen a leendő
tulajdonos igényeire szabva.A ház elrendezése átgondolt és praktikus: a központi
tér egy világos nappali, amely egybenyílik az étkezővel és az amerikai
konyhával. Innen nyílnak a hálószobák, összesen három külön szoba,
amelyekideálisak lehetnek gyerekeknek, vendégszobának vagy dolgozószobának. A
mindennapi kényelmet szolgálja egy fürdőszoba, kamra és továbbá egy WC és
kézmosóval ellátott háztartási helyiség is helyet kapott a tervben a bejárat
közelében. Az étkező után egy teraszra léphetünk ki, amely tökéletes helyszíne
lehet reggeli kávézásnak vagy baráti összejöveteleknek.A ház korszerű építési
megoldásokkal készül: Porotherm téglafalak és 15 centiméteres hőszigetelés
gondoskodnak a stabilitásról és az energiahatékonyságról, míg a háromrétegű
üvegezésű nyílászárókbiztosítják a jó hő- és hangszigetelést. A tetőszerkezet
szeglemezes kialakítású, betoncseréppel fedve, a külső homlokzat pedig színezve
és szigetelve készül el. Természetesen minden közmű ? víz, villany,csatorna ?
rendelkezésre áll.A villany- és vízvezetékek kiépítése teljes mértékben
előkészítve történik, így biztosítva a lámpák,konnektorok, televízió és internet
bekötésének lehetőségét. A fürdőszobai és konyhai kiállások szintén kialakításra
kerülnek, valamint a riasztórendszer és a külső világítás is előkészített
állapotban várja a tulajdonost. A fűtés és a hűtés kialakítása a vásárlóra van
bízva, így szabadon választható hőszivattyú,vagy akár klíma is.Ez az ingatlan
tökéletes lehetőség azok számára, akik egy nyugodt, barátságos környezetben
szeretnék megvalósítani álmaik otthonát. A nagy telek (800m2)számtalan
lehetőséget kínál: kert, játszótér vagy akár medence is helyet kaphat rajta,
miközben Forráskút békés hangulata és Szeged közelsége ideális kombinációt
teremt a mindennapi élethez. ...TOVÁBBI, TÖBBEZRES INGATLAN KÍNÁLAT:
www.gdn-ingatlan.hu - GDN azonosító: 348979
Részletek...
Adatlap
| Ár: | 114.000.000 Ft |
| Település: | Forráskút |
| A hirdető: | Ingatlaniroda ajánlatából |
| Értékesítés típusa: | Eladó |
| Használtság: | Új építésű |
| Utca: | Forráskút Szegedhez közeli végén |
| Telek nagysága (m2) : | 800 |
| Épület hasznos területe (m2) : | 113 |
| Szobák száma: | 3 |
| Félszobák száma: | 1 |
| Fűtés: | Egyéb fűtéses |
| Anyaga: | Tégla |
| A hirdető kérése: | Ingatlanközvetítő vagyok - keresse fel Irodánkat! |
| Feladás dátuma: | 2026.05.08 |
| Eddig megtekintették 76 alkalommal | |
A hirdető adatai
Kapcsolat a hirdetővel...
Családi házak rovaton belül a(z) "Eladó családi ház Forráskút, Forráskút Szegedhez közeli vég" című hirdetést látja. (fent)




























