
Eladó családi ház Zalaegerszeg, Zalaegerszeg, Csács
Eladó PRÉMIUM CSALÁDI HÁZ ÚJ KIVITELEZŐTŐL!?Zalaegerszeg, csácsi városrészében
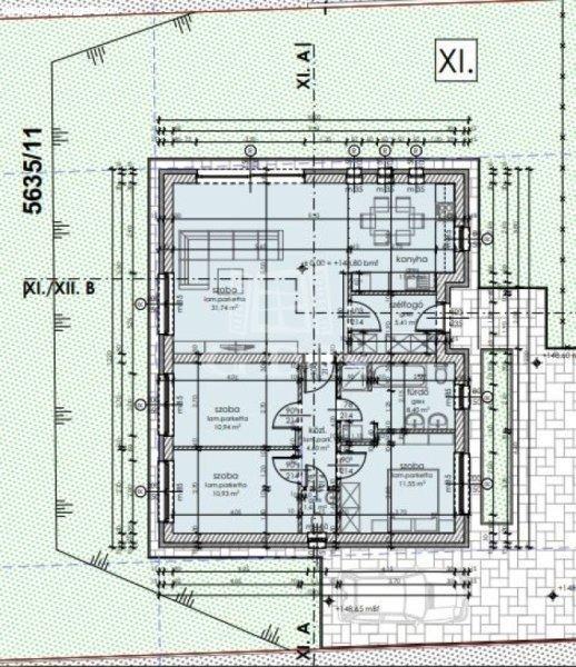
egy 100 m2-es, új építésű, korszerű kialakítású alacsony rezsivel rendelkező
családi ház eladó! ?Az ingatlan helyiségei:- amerikai konyhás nappali
étkezővel- 3 szoba-fürdőszoba plusz WC-előszoba-közlekedő-teraszMűszaki
információk:- 30-as tégla falazat- 15 cm-es szigetelés- 3 rétegű műanyag
nyílászárók redőnnyel ellátva- hőszivattyús fűtésrendszer (padlófűtés)- 1 db
inverteres klíma- választható hideg-meleg burkolatokTovábbi jellemzők, extrák:A
vételár tartalmazza a tereprendezést, a kerítés kialakítását és a térkövezést
egyaránt.Délnyugati tájolásának megfelelően tágas terei napfényesek és világosak
szinte egész nap.Csendes, családi lakóövezet, egy szintes kialakítással.CSOK és
egyéb illetékkedvezmények egyaránt igénybe vehetők!A hirdetésben szereplő képek
látványtervek.Amennyiben az ingatlan elnyerte tetszését és megtekintené,
keressen bizalommal!Irodánk ingyenes hiteltanácsadással és hitelügyintézéssel,
kedvező díjszabású ügyvéddel és energetikai tanúsítvány elkészítésével várja az
ügyfeleket ...TOVÁBBI, TÖBBEZRES INGATLAN KÍNÁLAT: www.gdn-ingatlan.hu - GDN
azonosító: 351240
egy 100 m2-es, új építésű, korszerű kialakítású alacsony rezsivel rendelkező
családi ház eladó! ?Az ingatlan helyiségei:- amerikai konyhás nappali
étkezővel- 3 szoba-fürdőszoba plusz WC-előszoba-közlekedő-teraszMűszaki
információk:- 30-as tégla falazat- 15 cm-es szigetelés- 3 rétegű műanyag
nyílászárók redőnnyel ellátva- hőszivattyús fűtésrendszer (padlófűtés)- 1 db
inverteres klíma- választható hideg-meleg burkolatokTovábbi jellemzők, extrák:A
vételár tartalmazza a tereprendezést, a kerítés kialakítását és a térkövezést
egyaránt.Délnyugati tájolásának megfelelően tágas terei napfényesek és világosak
szinte egész nap.Csendes, családi lakóövezet, egy szintes kialakítással.CSOK és
egyéb illetékkedvezmények egyaránt igénybe vehetők!A hirdetésben szereplő képek
látványtervek.Amennyiben az ingatlan elnyerte tetszését és megtekintené,
keressen bizalommal!Irodánk ingyenes hiteltanácsadással és hitelügyintézéssel,
kedvező díjszabású ügyvéddel és energetikai tanúsítvány elkészítésével várja az
ügyfeleket ...TOVÁBBI, TÖBBEZRES INGATLAN KÍNÁLAT: www.gdn-ingatlan.hu - GDN
azonosító: 351240
Részletek...
Adatlap
| Ár: | 99.000.000 Ft |
| Település: | Zalaegerszeg |
| A hirdető: | Ingatlaniroda ajánlatából |
| Értékesítés típusa: | Eladó |
| Használtság: | Új építésű |
| Utca: | Zalaegerszeg, Csács |
| Telek nagysága (m2) : | 404 |
| Épület hasznos területe (m2) : | 100 |
| Szobák száma: | 4 |
| Anyaga: | Tégla |
| A hirdető kérése: | Ingatlanközvetítő vagyok - keresse fel Irodánkat! |
| Feladás dátuma: | 2026.05.08 |
| Eddig megtekintették 79 alkalommal | |
A hirdető adatai
Kapcsolat a hirdetővel...
Családi házak rovaton belül a(z) "Eladó családi ház Zalaegerszeg, Zalaegerszeg, Csács" című hirdetést látja. (fent)




























