
Eladó családi ház Tura, Központi helyen
TÖBB CÉLÚ INGATLAN, ÓRIÁS MÉRETEKKEL!Megvételre kínálok Tura központjában, 1926
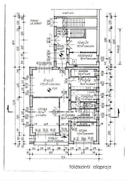
nm-es telken, délnyugati fekvésű, tégla falazatú, nettó 154,1 nm, bruttó 442 nm,
7 szobás, kertkapcsolatos, több generációs, hatalmas családi házat, melyet
szinte bármilyen célra hasznosítani lehet. A lakható felületet 310 nm-re lehet
bővíteni, az egyszintes épület alatt pedig egy remek boros pince húzódik.Az
házat a hatalmas terek, valamint rengeteg lehetőség jellemzi. Alkalmas szociális
célokra (óvoda, bölcsőde, idősek otthona, stb.), de kiváló lehetőség a hatalmas
házak kedvelőinek is.Az ingatlan 1990-ben nyerte el jelen kinézetét. Kiváló
minőségű, fa termó nyílászárók, 3 fázisú elektromos hálózat, többszörös víz
elleni szigetelés, valamint tömeg kazán került beépítésre.Az udvarról 288 nm
melléképület érhető el, valamint az óriási kert közelíthető meg. A
melléképületek közepes állapotúak és szintén rengeteg lehetőséget rejtenek. A
kert dél-délnyugati fekvésének köszönhetően napelemek telepítésére kiválóan
alkalmas.A szomszédok barátságosak, kedvesek.Infrastruktúrája kiváló, 1 perc
sétára óvoda, iskola, gyógyszertár és orvosi rendelők, polgármesteri hivatal,
boltok, 2 perce sétára pedig buszmegálló található.Hatvan-Gödöllő-Budapest
városok közelsége miatt, kiváló adottságokkal rendelkezik munkahelyek
tekintetében.INGYENES hitel tanácsadás! CSOK Ügy intézés!BANKFÜGGETLEN
hitelcentrumunk minden elérhető bank és hitelintézet ajánlatát versenyezteti az
Ön kedvéért, ráadásul DÍJMENTESEN.Önnek nincs más dolga, mint elbeszélgetni
munkatársunkkal, aki a hallott információk alapján versenyre hívja a bankokat,
hogy Ön hosszú távon is a legjobb konstrukciót kaphassa. A legjobb ajánlatokból
végül Ön választhatja ki a nyertest.Munkatársaink sokéves szakmai tapasztalattal
várják Önt, előre egyeztetve akár a normál munkaidő után is.Amennyiben
hirdetésem felkeltette érdeklődését, várom hívását, akár hétvégén is! S.S.
...TOVÁBBI, TÖBBEZRES INGATLAN KÍNÁLAT: www.gdn-ingatlan.hu - GDN azonosító:
353675
nm-es telken, délnyugati fekvésű, tégla falazatú, nettó 154,1 nm, bruttó 442 nm,
7 szobás, kertkapcsolatos, több generációs, hatalmas családi házat, melyet
szinte bármilyen célra hasznosítani lehet. A lakható felületet 310 nm-re lehet
bővíteni, az egyszintes épület alatt pedig egy remek boros pince húzódik.Az
házat a hatalmas terek, valamint rengeteg lehetőség jellemzi. Alkalmas szociális
célokra (óvoda, bölcsőde, idősek otthona, stb.), de kiváló lehetőség a hatalmas
házak kedvelőinek is.Az ingatlan 1990-ben nyerte el jelen kinézetét. Kiváló
minőségű, fa termó nyílászárók, 3 fázisú elektromos hálózat, többszörös víz
elleni szigetelés, valamint tömeg kazán került beépítésre.Az udvarról 288 nm
melléképület érhető el, valamint az óriási kert közelíthető meg. A
melléképületek közepes állapotúak és szintén rengeteg lehetőséget rejtenek. A
kert dél-délnyugati fekvésének köszönhetően napelemek telepítésére kiválóan
alkalmas.A szomszédok barátságosak, kedvesek.Infrastruktúrája kiváló, 1 perc
sétára óvoda, iskola, gyógyszertár és orvosi rendelők, polgármesteri hivatal,
boltok, 2 perce sétára pedig buszmegálló található.Hatvan-Gödöllő-Budapest
városok közelsége miatt, kiváló adottságokkal rendelkezik munkahelyek
tekintetében.INGYENES hitel tanácsadás! CSOK Ügy intézés!BANKFÜGGETLEN
hitelcentrumunk minden elérhető bank és hitelintézet ajánlatát versenyezteti az
Ön kedvéért, ráadásul DÍJMENTESEN.Önnek nincs más dolga, mint elbeszélgetni
munkatársunkkal, aki a hallott információk alapján versenyre hívja a bankokat,
hogy Ön hosszú távon is a legjobb konstrukciót kaphassa. A legjobb ajánlatokból
végül Ön választhatja ki a nyertest.Munkatársaink sokéves szakmai tapasztalattal
várják Önt, előre egyeztetve akár a normál munkaidő után is.Amennyiben
hirdetésem felkeltette érdeklődését, várom hívását, akár hétvégén is! S.S.
...TOVÁBBI, TÖBBEZRES INGATLAN KÍNÁLAT: www.gdn-ingatlan.hu - GDN azonosító:
353675
Részletek...
Adatlap
| Ár: | 87.000.000 Ft |
| Település: | Tura |
| A hirdető: | Ingatlaniroda ajánlatából |
| Értékesítés típusa: | Eladó |
| Utca: | Központi helyen |
| Telek nagysága (m2) : | 1926 |
| Épület hasznos területe (m2) : | 442 |
| Szobák száma: | 7 |
| Fűtés: | Egyéb fűtéses |
| Anyaga: | Tégla |
| A hirdető kérése: | Ingatlanközvetítő vagyok - keresse fel Irodánkat! |
| Feladás dátuma: | 2026.05.08 |
| Eddig megtekintették 69 alkalommal | |
A hirdető adatai
Kapcsolat a hirdetővel...
Családi házak rovaton belül a(z) "Eladó családi ház Tura, Központi helyen" című hirdetést látja. (fent)




























