
Eladó ikerház Szombathely, Harmóniában a természettel
AZ OTTHONTEREMTÉS ÚJ VILÁGA .Szombathelyen a már jól ismert ÚJVILÁG LAKÓPARK
újabb ütemmel bővül. 85 m2-139 m2 nagyságig lesznek elérhető különálló családi
házak és ikerházak egyaránt. Funkció, intimitás, kényelem, tudatos okos, zöld
megoldások a legfontosabb tervezői szempontok. A tervezett belső terek vevői
igény szerint változtathatók. Elhelyezkedését tekintve a lehető legjobb
választás, hiszen közel a belváros, remek az infrastruktúra, a várost elkerülő
gyorsforgalmi útkapcsolat könnyen megközelíthető. A beruházók szinte
egyedülállóan olyan tervekkel rukkoltak elő, amelyek a mai modern, energia
hatékony, pénztárca kímélő megoldásokat tartalmaznak.- HŐSZIVATTYÚAz ingatlan
fűtéséről?hűtéséről egy levegő-víz hőszivattyú gondoskodik, 250 literes meleg
víztárolóval, a házban Rehau padlófűtés lesz kialakítva, amely megkönnyíti a
lakberendezést. A vízrendszer alapszerelése szintén Rehau rendszerből készül,
valamint az ár tartalmaz vízlágyítót is. - NAPELEM RENDSZER Az ingatlan
gépészeti rendszeréhez kapcsolódóan 5 kw-os napelemrendszer telepítése történik,
amelyhez hibrid inverter tartozik, így 10-15 kw akkumulátor rendszer
kapcsolható. Az akkumulátor rendszer felár ellenében elérhető. - CSAPADÉK
VÍZGYŰJTÉSAz esővíz egy 5 m3-es csapadékgyűjtőbe lesz bekötve, szikkasztóval
ellátva, ami kiválóan alkalmas a növényzet öntözésére. Így nem kell kutat fúrni
és nem borul fel a terület vízháztartása.Plusz tartalom, amit még magába foglal
az alapár, és annak elválaszthatatlan szerves része:- KONYHABÚTOR Minden
ingatlanhoz tartozik konyhabútor 1.5 millió forint értékben.- RENDEZETT UDVARAz
ingatlanhoz tartozó járda, autóbeálló, közlekedő területek térkövezése,
nagyságrendileg 60-100 m2 területen. Az udvaron kerti csap kiépítése is
megtörténik. Az ingatlanok előtt vendégparkolók kialakítására is sor kerül.
Gépkocsi fedett beálló opcionálisan kérhető.- KERÍTÉSTelek utcafronti, jobb és
baloldali kerítés illetve az ingatlanok közti elválasztó kerítés (felületmintás
betonelem) építése 1.75-2 m magasságban.Egyéb műszaki tartalom : Teherhordó
falak Porotherm 30 X-therm Rapid téglából, a lakásokat elválasztó falak
hanggátló Porotherm 30 AKU Z P15 téglából készülnek. Koszorú Porotherm U zsalu
30-as elemből építve, vasbeton szerkezet készül statikai terv alapján. Erre
kerül az építészeti tervek szerint, számítógépes tetőtervezéssel legyártott
szeglemezes tetőszerkezet. Ez a tetőszerkezet teszi lehetővé, hogy a belső
tereket tetszés szerint variálhatjuk. A tetőre a vízzárás kialakítása után
Tondach Planoton 9 tetőcserép kerül a hozzá tartózó
kiegészítőkkel,tetőelemekkel. Bádog anyaga, elemei szerves része ennek a
családnak.A válaszfalak gyári 7,5 cm gipszkarton szerkezetre szerelt hő és
hangszigeteléssel ellátott kétoldalt dupla gipszkartonlap rögzítve, ami így a
hagyományos 10 cm vastagságú válaszfal helyett 12,5 cmvastagságú válaszfalat
eredményez. Ennek a technológiának nagy előnye, hogy a szerelvényezéskor nem
kell szétvésni, meggyengíteni a10 cm-es kerámia válaszfalat, a szerelvény a 7,5
cm-es szerkezetben kerül kialakításra. A födémet a tetőszerkezet elemei adják,
amihez gipszkarton álmennyezet kerül rögzítésre, kialakítva egy 20 m2-es
pakolásra alkalmas területet, amit padlásfeljáró segítségével lehet elérni. A
teherhordó falak és a hanggátló fal is gipszkartonlap borítást kap, így az egész
belső tér egy homogén, rendkívül pontos felületet fog alkotni. Nyílászárók
prémium minőségű, fokozottan hang- és hőszigetelt műanyag nyílászárók 3 rétegű 5
kamrás kivitelben kerülnek beépítésre, szúnyoghálóval, alumínium redőnyökkel
felszerelve.Bejárati ajtó választható.Beltéri ajtók a beruházó által
meghatározott gyártó, kivitelező mintáiból választhatók, bruttó 100.000 Ft/db
értékhatárig.Garázskapu szekcionált, motoros kivitelben készül.Az épületre 10 cm
vastagságú XPS lábazati szigetelés, lábazati vakolat, homlokzatra 20 cm
vastagságú grafitos szigetelés kerül, 1.5 cm vastagságú baumit kapart vékony
vakolat készül.A könnyűszerkezetes födémre 30-as tűzálló szigetelés kerül.A
házakban három fázisú villamos rendszer lesz kialakítva 3x25 A teljesítménnyel.
Elektromos autó töltés előkészítését, riasztó rendszer alapszerelését és
kaputelefon kiépítését is tartalmazza a vételár. Hideg-meleg burkolatok
választhatók. A meleg burkolatok (laminált padló) bruttó 5.000 Ft/m2, a
hidegburkolatok (járólap) bruttó 8.000 Ft/m2 áron maximalizált. Ha a választott
termékek meghaladják ezen árakat, természetesen felárral tetszés szerint
választhatnak a vásárlók burkolatokat. Ha bővebb tájékoztatást szeretne, kérem
keressen!Talán az utolsó jó lehetőség az Újvilág Lakópark, városunkban való
elhelyezkedés tekintetében. Vegye igénybe irodánk szolgáltatásait. Készséggel
állunk rendelkezésére, ha esetleg lakberendezési tanácsokra lenne szüksége.26/B
...TOVÁBBI, TÖBBEZRES INGATLAN KÍNÁLAT: www.gdn-ingatlan.hu - GDN azonosító:
363792
újabb ütemmel bővül. 85 m2-139 m2 nagyságig lesznek elérhető különálló családi
házak és ikerházak egyaránt. Funkció, intimitás, kényelem, tudatos okos, zöld
megoldások a legfontosabb tervezői szempontok. A tervezett belső terek vevői
igény szerint változtathatók. Elhelyezkedését tekintve a lehető legjobb
választás, hiszen közel a belváros, remek az infrastruktúra, a várost elkerülő
gyorsforgalmi útkapcsolat könnyen megközelíthető. A beruházók szinte
egyedülállóan olyan tervekkel rukkoltak elő, amelyek a mai modern, energia
hatékony, pénztárca kímélő megoldásokat tartalmaznak.- HŐSZIVATTYÚAz ingatlan
fűtéséről?hűtéséről egy levegő-víz hőszivattyú gondoskodik, 250 literes meleg
víztárolóval, a házban Rehau padlófűtés lesz kialakítva, amely megkönnyíti a
lakberendezést. A vízrendszer alapszerelése szintén Rehau rendszerből készül,
valamint az ár tartalmaz vízlágyítót is. - NAPELEM RENDSZER Az ingatlan
gépészeti rendszeréhez kapcsolódóan 5 kw-os napelemrendszer telepítése történik,
amelyhez hibrid inverter tartozik, így 10-15 kw akkumulátor rendszer
kapcsolható. Az akkumulátor rendszer felár ellenében elérhető. - CSAPADÉK
VÍZGYŰJTÉSAz esővíz egy 5 m3-es csapadékgyűjtőbe lesz bekötve, szikkasztóval
ellátva, ami kiválóan alkalmas a növényzet öntözésére. Így nem kell kutat fúrni
és nem borul fel a terület vízháztartása.Plusz tartalom, amit még magába foglal
az alapár, és annak elválaszthatatlan szerves része:- KONYHABÚTOR Minden
ingatlanhoz tartozik konyhabútor 1.5 millió forint értékben.- RENDEZETT UDVARAz
ingatlanhoz tartozó járda, autóbeálló, közlekedő területek térkövezése,
nagyságrendileg 60-100 m2 területen. Az udvaron kerti csap kiépítése is
megtörténik. Az ingatlanok előtt vendégparkolók kialakítására is sor kerül.
Gépkocsi fedett beálló opcionálisan kérhető.- KERÍTÉSTelek utcafronti, jobb és
baloldali kerítés illetve az ingatlanok közti elválasztó kerítés (felületmintás
betonelem) építése 1.75-2 m magasságban.Egyéb műszaki tartalom : Teherhordó
falak Porotherm 30 X-therm Rapid téglából, a lakásokat elválasztó falak
hanggátló Porotherm 30 AKU Z P15 téglából készülnek. Koszorú Porotherm U zsalu
30-as elemből építve, vasbeton szerkezet készül statikai terv alapján. Erre
kerül az építészeti tervek szerint, számítógépes tetőtervezéssel legyártott
szeglemezes tetőszerkezet. Ez a tetőszerkezet teszi lehetővé, hogy a belső
tereket tetszés szerint variálhatjuk. A tetőre a vízzárás kialakítása után
Tondach Planoton 9 tetőcserép kerül a hozzá tartózó
kiegészítőkkel,tetőelemekkel. Bádog anyaga, elemei szerves része ennek a
családnak.A válaszfalak gyári 7,5 cm gipszkarton szerkezetre szerelt hő és
hangszigeteléssel ellátott kétoldalt dupla gipszkartonlap rögzítve, ami így a
hagyományos 10 cm vastagságú válaszfal helyett 12,5 cmvastagságú válaszfalat
eredményez. Ennek a technológiának nagy előnye, hogy a szerelvényezéskor nem
kell szétvésni, meggyengíteni a10 cm-es kerámia válaszfalat, a szerelvény a 7,5
cm-es szerkezetben kerül kialakításra. A födémet a tetőszerkezet elemei adják,
amihez gipszkarton álmennyezet kerül rögzítésre, kialakítva egy 20 m2-es
pakolásra alkalmas területet, amit padlásfeljáró segítségével lehet elérni. A
teherhordó falak és a hanggátló fal is gipszkartonlap borítást kap, így az egész
belső tér egy homogén, rendkívül pontos felületet fog alkotni. Nyílászárók
prémium minőségű, fokozottan hang- és hőszigetelt műanyag nyílászárók 3 rétegű 5
kamrás kivitelben kerülnek beépítésre, szúnyoghálóval, alumínium redőnyökkel
felszerelve.Bejárati ajtó választható.Beltéri ajtók a beruházó által
meghatározott gyártó, kivitelező mintáiból választhatók, bruttó 100.000 Ft/db
értékhatárig.Garázskapu szekcionált, motoros kivitelben készül.Az épületre 10 cm
vastagságú XPS lábazati szigetelés, lábazati vakolat, homlokzatra 20 cm
vastagságú grafitos szigetelés kerül, 1.5 cm vastagságú baumit kapart vékony
vakolat készül.A könnyűszerkezetes födémre 30-as tűzálló szigetelés kerül.A
házakban három fázisú villamos rendszer lesz kialakítva 3x25 A teljesítménnyel.
Elektromos autó töltés előkészítését, riasztó rendszer alapszerelését és
kaputelefon kiépítését is tartalmazza a vételár. Hideg-meleg burkolatok
választhatók. A meleg burkolatok (laminált padló) bruttó 5.000 Ft/m2, a
hidegburkolatok (járólap) bruttó 8.000 Ft/m2 áron maximalizált. Ha a választott
termékek meghaladják ezen árakat, természetesen felárral tetszés szerint
választhatnak a vásárlók burkolatokat. Ha bővebb tájékoztatást szeretne, kérem
keressen!Talán az utolsó jó lehetőség az Újvilág Lakópark, városunkban való
elhelyezkedés tekintetében. Vegye igénybe irodánk szolgáltatásait. Készséggel
állunk rendelkezésére, ha esetleg lakberendezési tanácsokra lenne szüksége.26/B
...TOVÁBBI, TÖBBEZRES INGATLAN KÍNÁLAT: www.gdn-ingatlan.hu - GDN azonosító:
363792
Részletek...
Adatlap
| Ár: | 120.000.000 Ft |
| Település: | Szombathely |
| A hirdető: | Ingatlaniroda ajánlatából |
| Értékesítés típusa: | Eladó |
| Használtság: | Új építésű |
| Utca: | Harmóniában a természettel |
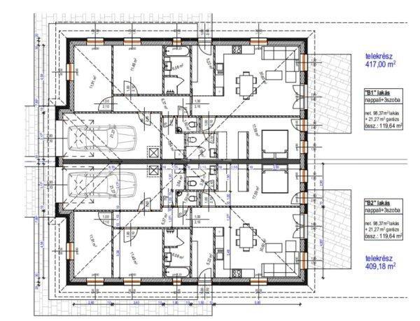
| Telek nagysága (m2) : | 417 |
| Épület hasznos területe (m2) : | 120 |
| Szobák száma: | 4 |
| Anyaga: | Tégla |
| A hirdető kérése: | Ingatlanközvetítő vagyok - keresse fel Irodánkat! |
| Feladás dátuma: | 2026.01.08 |
| Eddig megtekintették 38 alkalommal | |
A hirdető adatai
Kapcsolat a hirdetővel...
Családi házak rovaton belül a(z) "Eladó ikerház Szombathely, Harmóniában a természettel" című hirdetést látja. (fent)




























