
Eladó családi ház Felsőörs, Hamu utca
Település: FelsőörsA Balatontól csak négy, Veszprémtől hét kilométerre található
Felsőörs, épített és temészeti kincsekben egyaránt gazdag települése. Szerencsés
fekvése miatt a településre a bevándorlás jellemző, lakossága folyamatosan nő,
az elmúlt évtizedben sok kisgyerekes család talált itt új otthonra.A Balaton
felé lejtő lankák és észak-déli lefutású völgyek már az ókortól ideális
termőhelyet biztosítottak itt a szőlőtermesztéshez, a borkultúra
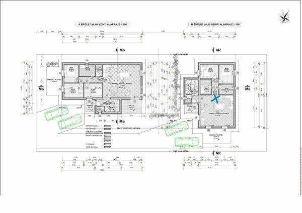
meghonosodásához.A épület:Földszintsz.: 87 nm, 4 szoba,10 + 4 nm terasz.Emelet:
67 nm, 3 szoba.A ház jellemzői:-0-as PTH falazat 15 cm-es grafitos
hőszigeteléssel, minőségivékonyvakolat, homlokzatburkolat- hő- és hangszigetelt
minőségi nyílászárók- melegvíz ellátás hőszivattyús bojlerről- pollenszűrős
levegő-levegő höszivattyús fűtési rendszer- telefonról vezérelhető,
termosztáttal ellátott padlófűtés- telefonról vezérelhető, okos villany- és
kamerarendszer- elekromokos redőnyök és kapu- prémium bejárati biztonsági ajtók-
kültéri, hőszivattyúval működtethető, 3 x 8 méteres medence- kültéri esztétikus
szaletli- hangulatos, tágas terasz- udvari, esztétikus viacolor burkolatú
kocsibeálló- kiváló energetikai besorolás (alacsony rezsiköltség)- napelem kerül
az épületre (villamosenergia számla pénzvisszatérítés)- kedvezményesen
felvehető hitel (CSOK, zöldhitel)- választhatóak még: melegburkolatok 13.000
Ft/nm árban, beltéri ajtók 140.000 Ft/db árban, szaniterek, homlokzati
színezésTovábbi kedvezményekért, eressen minket bizalommal, örömmel állunk a
szolgálatára!Szívélyes üdvözlettel,Tőkés Levente ...TOVÁBBI, TÖBBEZRES INGATLAN
KÍNÁLAT: www.gdn-ingatlan.hu - GDN azonosító: 366330
Felsőörs, épített és temészeti kincsekben egyaránt gazdag települése. Szerencsés
fekvése miatt a településre a bevándorlás jellemző, lakossága folyamatosan nő,
az elmúlt évtizedben sok kisgyerekes család talált itt új otthonra.A Balaton
felé lejtő lankák és észak-déli lefutású völgyek már az ókortól ideális
termőhelyet biztosítottak itt a szőlőtermesztéshez, a borkultúra
meghonosodásához.A épület:Földszintsz.: 87 nm, 4 szoba,10 + 4 nm terasz.Emelet:
67 nm, 3 szoba.A ház jellemzői:-0-as PTH falazat 15 cm-es grafitos
hőszigeteléssel, minőségivékonyvakolat, homlokzatburkolat- hő- és hangszigetelt
minőségi nyílászárók- melegvíz ellátás hőszivattyús bojlerről- pollenszűrős
levegő-levegő höszivattyús fűtési rendszer- telefonról vezérelhető,
termosztáttal ellátott padlófűtés- telefonról vezérelhető, okos villany- és
kamerarendszer- elekromokos redőnyök és kapu- prémium bejárati biztonsági ajtók-
kültéri, hőszivattyúval működtethető, 3 x 8 méteres medence- kültéri esztétikus
szaletli- hangulatos, tágas terasz- udvari, esztétikus viacolor burkolatú
kocsibeálló- kiváló energetikai besorolás (alacsony rezsiköltség)- napelem kerül
az épületre (villamosenergia számla pénzvisszatérítés)- kedvezményesen
felvehető hitel (CSOK, zöldhitel)- választhatóak még: melegburkolatok 13.000
Ft/nm árban, beltéri ajtók 140.000 Ft/db árban, szaniterek, homlokzati
színezésTovábbi kedvezményekért, eressen minket bizalommal, örömmel állunk a
szolgálatára!Szívélyes üdvözlettel,Tőkés Levente ...TOVÁBBI, TÖBBEZRES INGATLAN
KÍNÁLAT: www.gdn-ingatlan.hu - GDN azonosító: 366330
Részletek...
Adatlap
| Ár: | 153.000.000 Ft |
| Település: | Felsőörs |
| A hirdető: | Ingatlaniroda ajánlatából |
| Értékesítés típusa: | Eladó |
| Használtság: | Új építésű |
| Utca: | Hamu utca |
| Telek nagysága (m2) : | 900 |
| Épület hasznos területe (m2) : | 162 |
| Szobák száma: | 4 |
| Félszobák száma: | 2 |
| Anyaga: | Tégla |
| A hirdető kérése: | Ingatlanközvetítő vagyok - keresse fel Irodánkat! |
| Feladás dátuma: | 2026.05.08 |
| Eddig megtekintették 66 alkalommal | |
A hirdető adatai
Kapcsolat a hirdetővel...
Családi házak rovaton belül a(z) "Eladó családi ház Felsőörs, Hamu utca" című hirdetést látja. (fent)




























