
Eladó családi ház Szigliget, Hegyaljai út
Páratlan örök Balatoni panorámás családi ház eladó Szigligeten!Szigliget:A
Balaton északi partján, Veszprém megyében, Badacsony és Keszthely közötti
félszigeten helyezkedik el. A nagyjából 1000 fő lakosú település csendes,
nyugodt fekvésű, igazi kis falu. Szigliget legfőbb jellegzetessége a település
fölé emelkedő várhegy és a 750 éves Szigligeti-vár. Szigliget a mai napig
megőrizte jellegzetes településszerkezetét. Az Ófalu egész belső területe
védett. A központban található Esterházy kastélyt mindenképp érdemes
meglátogatni, aminek kertje gyönyörű arborétum, valamint az írók Alkotóháza is
ebben kapott helyet. ?Szigligetet a Balaton ?gyöngyszemének? nevezik, nem
véletlenül.A településen - félsziget mivolta miatt - nem megy át vasútvonal
(Szigliget Badacsonytördemiccel osztozik a vasútállomáson), ezért a
legcsöndesebb balatoni települések egyike. Nincsen átmenő-forgalom sem, és az
egész faluban 40km/h sebességkorlátozás van érvényben, ezáltal békés még a nyári
csúcsforgalomban is. Szigligeten nincsenek szállodák, kempingek illetve nagy
szupermarketek sem (megszállni apartmanokban, kiadó házakban és néhány panzióban
lehet). A Balaton Gyöngyszeme ideális hely annak, aki a város nyüzsgő zaja elől
?menekülne??, de a vízpart közelsége is fontos a számára, illetve szeretne a
balatoni panorámában gyönyörködve, jó borral a kezében a naplementébe
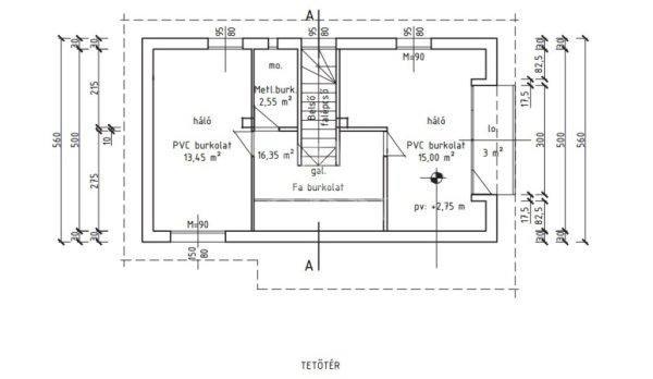
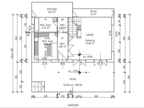
feledkezni.?A ház főbb jellemzői:Ház építés éve:1976Ingatlan jogi besorolása:
Kivett hétvégi ház, udvar.Telek mérete: 1581 nm.Ingatlan nettó nm tulajdoni lap
szerint: 95 nmTerasz:35 nmSzintek: pince szint: 23 nm, lakás szint: 45 nm+28 nm
előtér, tetőtér: 38 nm.A ház kívülről szigetelt (2-3éve 10cm dryvit), a tető
nádtető.Fűtés típusa: Hőszivattyú, napelem.Autó beállok: 2 db. utca szinti
fedett 7m x 7m kocsibeálló, feljáró a házhoz, ház mellett is lehet
parkolni.Extrák: légkondicionáló, napelem, hőszivattyú fancoil hűt fűt,
gépesített konyha, motoros árnyékolók, motoros terasz tetőmozgatásjakuzzi
(feláras) riasztó, parkosított kert, automata öntöző rendszer, a házban meg
cserépkályha.Viacolorral lerakott autófeljáró.A szigligeti strand 600 m.Tiszta
tulajdonviszonyok tehermentes ingatlan!Érdeklődés esetén kérem írjon / hívjon.A
megtekintés előre leegyeztetett időponttal történik. ...TOVÁBBI, TÖBBEZRES
INGATLAN KÍNÁLAT: www.gdn-ingatlan.hu - GDN azonosító: 367737
Balaton északi partján, Veszprém megyében, Badacsony és Keszthely közötti
félszigeten helyezkedik el. A nagyjából 1000 fő lakosú település csendes,
nyugodt fekvésű, igazi kis falu. Szigliget legfőbb jellegzetessége a település
fölé emelkedő várhegy és a 750 éves Szigligeti-vár. Szigliget a mai napig
megőrizte jellegzetes településszerkezetét. Az Ófalu egész belső területe
védett. A központban található Esterházy kastélyt mindenképp érdemes
meglátogatni, aminek kertje gyönyörű arborétum, valamint az írók Alkotóháza is
ebben kapott helyet. ?Szigligetet a Balaton ?gyöngyszemének? nevezik, nem
véletlenül.A településen - félsziget mivolta miatt - nem megy át vasútvonal
(Szigliget Badacsonytördemiccel osztozik a vasútállomáson), ezért a
legcsöndesebb balatoni települések egyike. Nincsen átmenő-forgalom sem, és az
egész faluban 40km/h sebességkorlátozás van érvényben, ezáltal békés még a nyári
csúcsforgalomban is. Szigligeten nincsenek szállodák, kempingek illetve nagy
szupermarketek sem (megszállni apartmanokban, kiadó házakban és néhány panzióban
lehet). A Balaton Gyöngyszeme ideális hely annak, aki a város nyüzsgő zaja elől
?menekülne??, de a vízpart közelsége is fontos a számára, illetve szeretne a
balatoni panorámában gyönyörködve, jó borral a kezében a naplementébe
feledkezni.?A ház főbb jellemzői:Ház építés éve:1976Ingatlan jogi besorolása:
Kivett hétvégi ház, udvar.Telek mérete: 1581 nm.Ingatlan nettó nm tulajdoni lap
szerint: 95 nmTerasz:35 nmSzintek: pince szint: 23 nm, lakás szint: 45 nm+28 nm
előtér, tetőtér: 38 nm.A ház kívülről szigetelt (2-3éve 10cm dryvit), a tető
nádtető.Fűtés típusa: Hőszivattyú, napelem.Autó beállok: 2 db. utca szinti
fedett 7m x 7m kocsibeálló, feljáró a házhoz, ház mellett is lehet
parkolni.Extrák: légkondicionáló, napelem, hőszivattyú fancoil hűt fűt,
gépesített konyha, motoros árnyékolók, motoros terasz tetőmozgatásjakuzzi
(feláras) riasztó, parkosított kert, automata öntöző rendszer, a házban meg
cserépkályha.Viacolorral lerakott autófeljáró.A szigligeti strand 600 m.Tiszta
tulajdonviszonyok tehermentes ingatlan!Érdeklődés esetén kérem írjon / hívjon.A
megtekintés előre leegyeztetett időponttal történik. ...TOVÁBBI, TÖBBEZRES
INGATLAN KÍNÁLAT: www.gdn-ingatlan.hu - GDN azonosító: 367737
Részletek...
Adatlap
| Ár: | 299.000.000 Ft |
| Település: | Szigliget |
| A hirdető: | Ingatlaniroda ajánlatából |
| Értékesítés típusa: | Eladó |
| Használtság: | Használt |
| Utca: | Hegyaljai út |
| Telek nagysága (m2) : | 1581 |
| Épület hasznos területe (m2) : | 112 |
| Szobák száma: | 3 |
| Fűtés: | Egyéb fűtéses |
| Ingatlan állapota: | Felújított |
| Anyaga: | Tégla |
| A hirdető kérése: | Ingatlanközvetítő vagyok - keresse fel Irodánkat! |
| Feladás dátuma: | 2026.05.08 |
| Eddig megtekintették 75 alkalommal | |
A hirdető adatai
Kapcsolat a hirdetővel...
Családi házak rovaton belül a(z) "Eladó családi ház Szigliget, Hegyaljai út" című hirdetést látja. (fent)


















![Szigliget, 120 m2, 194900000 HUF, 3 szoba [1786_5876] Szigliget, 120 m2, 194900000 HUF, 3 szoba [1786_5876]](/hirdetesek/ads_new_xml2/13/139841/thmb_szigliget-120-m2-1_01748380086.jpg)









