
Eladó családi ház Budapest, XVIII. kerület, Szemeretelep
Budapest, 18. kerületében, Szemeretelepen, csekély átmenő forgalmú utcában,
csendes kertvárosias környezetben, 745nm-es, előkertes telken családi ház
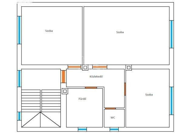
ELADÓ! A ház jellemzői: 200nm lakótér, magasföldszinten 100nm, az
emeleten szintén 100nm, -- a földszinten 42nm amerikai konyhás-nappali utcára
és kertre néző ablakokkal, 12nm kisszoba, iroda, zuhanyzó, sarokkád, mosdó a
fürdőszobában, külön helyiségben WC, mindez a folyosóról nyílik, melyről
az emeletre, ill. a pinceszinti raktárba, mosókonyhába juthatunk. Az
emeleten három hálószoba (16,24,12 nm-es), utcára, kertre néző ablakok,
fürdőben zuhanyzó, mosdó, kád ill. külön wc található. A ház összes
ablaka műanyag, szigetelt többrétegű. A meleget turbós, kondenzációs gázkazán
biztosítja, földszinten padlófűtéssel, az emeleten radiátorokkal. A
nappaliban külső levegős kandalló is szolgáltathat romantikus légkört keltő
meleget. Az épület két lakószintjén egy-egy turbós Panasonic klíma van
felszerelve elviselhetetlen meleg, vagy kemény hideg esetére. A
földszinten a terasz 30nm, a teteje távirányitással kihúzható, az oldala
szintén. A telken négy személyautó parkolására van lehetőség, a hátsó
kertben fedett grillterasz, mellette sátortetős, felfújható kismedence, a
gyerekek számára csúszda és mászóka található. Amennyiben felkeltettem
érdeklődését hívjon bizalommal, bármikor! kf. ...TOVÁBBI, TÖBBEZRES
INGATLAN KÍNÁLAT: www.gdn-ingatlan.hu - GDN azonosító: 373563
csendes kertvárosias környezetben, 745nm-es, előkertes telken családi ház
ELADÓ! A ház jellemzői: 200nm lakótér, magasföldszinten 100nm, az
emeleten szintén 100nm, -- a földszinten 42nm amerikai konyhás-nappali utcára
és kertre néző ablakokkal, 12nm kisszoba, iroda, zuhanyzó, sarokkád, mosdó a
fürdőszobában, külön helyiségben WC, mindez a folyosóról nyílik, melyről
az emeletre, ill. a pinceszinti raktárba, mosókonyhába juthatunk. Az
emeleten három hálószoba (16,24,12 nm-es), utcára, kertre néző ablakok,
fürdőben zuhanyzó, mosdó, kád ill. külön wc található. A ház összes
ablaka műanyag, szigetelt többrétegű. A meleget turbós, kondenzációs gázkazán
biztosítja, földszinten padlófűtéssel, az emeleten radiátorokkal. A
nappaliban külső levegős kandalló is szolgáltathat romantikus légkört keltő
meleget. Az épület két lakószintjén egy-egy turbós Panasonic klíma van
felszerelve elviselhetetlen meleg, vagy kemény hideg esetére. A
földszinten a terasz 30nm, a teteje távirányitással kihúzható, az oldala
szintén. A telken négy személyautó parkolására van lehetőség, a hátsó
kertben fedett grillterasz, mellette sátortetős, felfújható kismedence, a
gyerekek számára csúszda és mászóka található. Amennyiben felkeltettem
érdeklődését hívjon bizalommal, bármikor! kf. ...TOVÁBBI, TÖBBEZRES
INGATLAN KÍNÁLAT: www.gdn-ingatlan.hu - GDN azonosító: 373563
Részletek...
Adatlap
| Ár: | 179.900.000 Ft |
| Település: | XVIII. kerület |
| A hirdető: | Ingatlaniroda ajánlatából |
| Értékesítés típusa: | Eladó |
| Használtság: | Újszerű |
| Utca: | Szemeretelep |
| Telek nagysága (m2) : | 745 |
| Épület hasznos területe (m2) : | 316 |
| Szobák száma: | 5 |
| Fűtés: | Cirkó fűtéses |
| Anyaga: | Tégla |
| A hirdető kérése: | Ingatlanközvetítő vagyok - keresse fel Irodánkat! |
| Feladás dátuma: | 2026.01.08 |
| Eddig megtekintették 37 alkalommal | |
A hirdető adatai
Kapcsolat a hirdetővel...
Családi házak rovaton belül a(z) "Eladó családi ház Budapest, XVIII. kerület, Szemeretelep" című hirdetést látja. (fent)




























