
Eladó családi ház Aszód, Béke utca
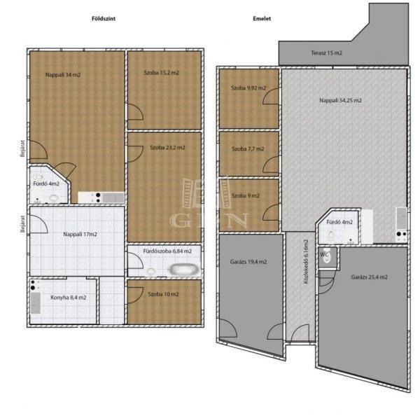
Aszódon a Béke utcába 8. szám alatt 381 m2-es összközműves telken eladó egy
panorámás, három generációs tégla építésű, kétszintes családi ház.Az ingatlant
2006-ban újították fel, dryvit szigeteléssel lett ellátva, nyílászárói fa és
műanyag thermo kivitelűek. Fűtését és meleg víz ellátását 2017-ben
korszerűsített 2db kondenzációs kombi gázkazán látja el.A felső lakás 136 m2-es,
ami magába foglalja a két fűtött garázst is (19,4, 25,4m2), melyek elektromos
garázsajtóval lettek ellátva. Az 54m2-es nappaliból gyönyörű panoráma látható a
15 m2-es terasz irányába. A 9,92 m2-es hálószoba is panorámás kilátással
rendelkezik. További két szoba található ezen a szinten és egy igényes
anyagokkal felújított fürdőszoba is. Az alsó szinten két lakás helyezkedik el. A
nagyobbik (76m2)szintén panorámás kilátással rendelkezik. Itt 32,6 m2-es
amerikai konyhás nappali és két nagy szoba (15,2m2, 23,2m2) és egy 5 m2-es
fürdőszoba lett kialakítva.A harmadik lakás 45,3 m2-es. Itt 17 m2-es a nappali
8,4m2-es részben egybenyitott konyhával, 10 m2-es szoba és közlekedő és egy
7m2-es fürdőszoba taláható!Számos beépített bútor és a három konyha is a vételár
részét képezik.A közművek almérőkkel rendelkeznek. A kertben a beton burkolatú
udvar rész alatt 30m2 tárolásra alkamas helyiség van. Amennyiben hirdetésem
felkeltette az érdeklődését vagy egyéb információra van szüksége ,hívjon
bizalommal! ...TOVÁBBI, TÖBBEZRES INGATLAN KÍNÁLAT: www.gdn-ingatlan.hu - GDN
azonosító: 379234
panorámás, három generációs tégla építésű, kétszintes családi ház.Az ingatlant
2006-ban újították fel, dryvit szigeteléssel lett ellátva, nyílászárói fa és
műanyag thermo kivitelűek. Fűtését és meleg víz ellátását 2017-ben
korszerűsített 2db kondenzációs kombi gázkazán látja el.A felső lakás 136 m2-es,
ami magába foglalja a két fűtött garázst is (19,4, 25,4m2), melyek elektromos
garázsajtóval lettek ellátva. Az 54m2-es nappaliból gyönyörű panoráma látható a
15 m2-es terasz irányába. A 9,92 m2-es hálószoba is panorámás kilátással
rendelkezik. További két szoba található ezen a szinten és egy igényes
anyagokkal felújított fürdőszoba is. Az alsó szinten két lakás helyezkedik el. A
nagyobbik (76m2)szintén panorámás kilátással rendelkezik. Itt 32,6 m2-es
amerikai konyhás nappali és két nagy szoba (15,2m2, 23,2m2) és egy 5 m2-es
fürdőszoba lett kialakítva.A harmadik lakás 45,3 m2-es. Itt 17 m2-es a nappali
8,4m2-es részben egybenyitott konyhával, 10 m2-es szoba és közlekedő és egy
7m2-es fürdőszoba taláható!Számos beépített bútor és a három konyha is a vételár
részét képezik.A közművek almérőkkel rendelkeznek. A kertben a beton burkolatú
udvar rész alatt 30m2 tárolásra alkamas helyiség van. Amennyiben hirdetésem
felkeltette az érdeklődését vagy egyéb információra van szüksége ,hívjon
bizalommal! ...TOVÁBBI, TÖBBEZRES INGATLAN KÍNÁLAT: www.gdn-ingatlan.hu - GDN
azonosító: 379234
Részletek...
Adatlap
| Ár: | 105.000.000 Ft |
| Település: | Aszód |
| A hirdető: | Ingatlaniroda ajánlatából |
| Értékesítés típusa: | Eladó |
| Használtság: | Használt |
| Utca: | Béke utca |
| Telek nagysága (m2) : | 381 |
| Épület hasznos területe (m2) : | 257 |
| Szobák száma: | 8 |
| Fűtés: | Cirkó fűtéses |
| Ingatlan állapota: | Felújított |
| Anyaga: | Tégla |
| A hirdető kérése: | Ingatlanközvetítő vagyok - keresse fel Irodánkat! |
| Feladás dátuma: | 2026.05.08 |
| Eddig megtekintették 72 alkalommal | |
A hirdető adatai
Kapcsolat a hirdetővel...
Családi házak rovaton belül a(z) "Eladó családi ház Aszód, Béke utca" című hirdetést látja. (fent)




























