
Eladó családi ház Dunakeszi, Duna sor
DUNAKESZI DUNA SOR! PANORÁMÁS KILÁTÁSSAL A DUNÁRA!Az épület bejáratánál
közvetlenül a régi szabadstrand lejárói nyílnak direkt hozzáféréssel a Duna
egyik rejtettebb strand szigetére.A NÉPSZERŰ CSURGÓ BÜFÉ 3 PERCRE!Felső szinten
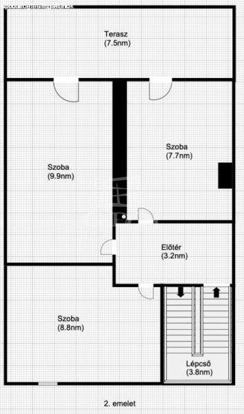
egy közlekedő, 3 szoba és terasz nyílik a dunai panorámára.Szobák falai nem
tartó falak, a helyiségek egymásba nyithatók, helyi építési szabályzatnak
megfelelően akár a terasz is lakótérhez csatolható, és az alatta lévő terasz
méretével egyező terasz hozható létre ezen a szinten is.Belső terek jelenleg az
emeleten 34nm, de az említett átalakítással 41nm-re bővíthető, az új terasz
10-15nm méretekig bővíthető.Középső emeleten 45nm lakórész és 15nm terasz
található. Kandallónak kiépített helye van a falon és a kéményben, különálló és
beépített tűzteret is lehetséges ide telepíteni. Az emeleten található egy
kényelmes pezsgőfürdős kádas fürdő. A fő szoba ideális tér lehet nappalinak.
Jelenleg konyha is található a szoba egyik szegletében. A szoba tereiből kilátás
nyílik a Dunára.Földszinten található egy második fürdő zuhanyzóval, ezen a
szinten a belső terek összesen 50nm-t tesznek ki. A fő szoba ideális lehet egy
amerikai konyhás nappalinak és étkezőnek. Ezen kívül egy gépészeti szoba, tároló
helyiség, és egy mini szauna is helyet kapott ezen az emeleten.Ingatlan az utca
legmagasabb pontján van, a legmélyebb ponthoz képest 8-10 méterrel magasabban
van, így árvizektől sem kell tartani. Horányi komp 4 perc sétatávra, és
Dunakeszi ingyenes tömegközlekedése is 5 perc sétára található.Besorolása
szerint lakóövezeti!KIVÉTELES LEHETŐSÉG, NE MARADJON LE RÓLA! ...TOVÁBBI,
TÖBBEZRES INGATLAN KÍNÁLAT: www.gdn-ingatlan.hu - GDN azonosító: 379591
közvetlenül a régi szabadstrand lejárói nyílnak direkt hozzáféréssel a Duna
egyik rejtettebb strand szigetére.A NÉPSZERŰ CSURGÓ BÜFÉ 3 PERCRE!Felső szinten
egy közlekedő, 3 szoba és terasz nyílik a dunai panorámára.Szobák falai nem
tartó falak, a helyiségek egymásba nyithatók, helyi építési szabályzatnak
megfelelően akár a terasz is lakótérhez csatolható, és az alatta lévő terasz
méretével egyező terasz hozható létre ezen a szinten is.Belső terek jelenleg az
emeleten 34nm, de az említett átalakítással 41nm-re bővíthető, az új terasz
10-15nm méretekig bővíthető.Középső emeleten 45nm lakórész és 15nm terasz
található. Kandallónak kiépített helye van a falon és a kéményben, különálló és
beépített tűzteret is lehetséges ide telepíteni. Az emeleten található egy
kényelmes pezsgőfürdős kádas fürdő. A fő szoba ideális tér lehet nappalinak.
Jelenleg konyha is található a szoba egyik szegletében. A szoba tereiből kilátás
nyílik a Dunára.Földszinten található egy második fürdő zuhanyzóval, ezen a
szinten a belső terek összesen 50nm-t tesznek ki. A fő szoba ideális lehet egy
amerikai konyhás nappalinak és étkezőnek. Ezen kívül egy gépészeti szoba, tároló
helyiség, és egy mini szauna is helyet kapott ezen az emeleten.Ingatlan az utca
legmagasabb pontján van, a legmélyebb ponthoz képest 8-10 méterrel magasabban
van, így árvizektől sem kell tartani. Horányi komp 4 perc sétatávra, és
Dunakeszi ingyenes tömegközlekedése is 5 perc sétára található.Besorolása
szerint lakóövezeti!KIVÉTELES LEHETŐSÉG, NE MARADJON LE RÓLA! ...TOVÁBBI,
TÖBBEZRES INGATLAN KÍNÁLAT: www.gdn-ingatlan.hu - GDN azonosító: 379591
Részletek...
Adatlap
| Ár: | 130.000.000 Ft |
| Település: | Dunakeszi |
| A hirdető: | Ingatlaniroda ajánlatából |
| Értékesítés típusa: | Eladó |
| Használtság: | Használt |
| Utca: | Duna sor |
| Telek nagysága (m2) : | 200 |
| Épület hasznos területe (m2) : | 148 |
| Szobák száma: | 5 |
| Fűtés: | Egyéb fűtéses |
| Ingatlan állapota: | Normál állapotú |
| Anyaga: | Tégla |
| A hirdető kérése: | Ingatlanközvetítő vagyok - keresse fel Irodánkat! |
| Feladás dátuma: | 2026.03.09 |
| Eddig megtekintették 59 alkalommal | |
A hirdető adatai
Kapcsolat a hirdetővel...
Családi házak rovaton belül a(z) "Eladó családi ház Dunakeszi, Duna sor" című hirdetést látja. (fent)




























