
Eladó családi ház Vácegres, Vácegres központi részén
CSEND ÉS NYUGALOM!ÁLMODD MEG ÉS MEGÉPÍTIK, AKÁR CSOK+ FELHASZNÁLÁSÁVAL
!!!FALAK:- A külső ?határoló falak'' bordázat 50 cm-ként, kívülről 15 mm OSB
borítással, a fő falban 15 cm hőszigetelés, belső oldalon hőtükrös párazáró
fólia, 2 réteg gipszkarton borítás.- A válaszfalak gipszkarton bordázat 50
cm-ként, mindkét oldalon 1 rétegnormál - gipszkarton, a válaszfalakban 10 cm
hangszigetelés.FÖDÉM:- rácsos tartószerkezet statika szerint, (ha kell fesztáv
függő)- A födém szerkezetben 25 cm hőszigetelés,- Mennyezeten gipszkarton
borítás, hőtükrös párazáró fóliaTETŐSZERKEZET :? rácsos tartó fém tető vagy
szeglemezes fa tető- Páraáteresztő fólia terítés 15 cm átfedéssel,- Tetőlécezés
3 x 5 cm, szarufákon ellen lécezéssel,- Az eresz lambériázása, 2 rétegben festve
vagy dobozolva- Alumínium függőeresz csatorna, a cseréppel megegyező színben
(félkörszelvényű), 4 lefolyó a házon.- Cserepeslemez vagy- Beton cserépfedés
(Leier - Terrán - Bramac) alapcserép ből választható színekben, vagy
cserepeslemez vagy zsindely max 3.500/ m2 a kúpokkal együtt.NYÍLÁSZÁRÓK: -
Standard készen vehető - Ablakok: 3 rétegű ( Ug = 0,75 W/ m2 K ) gáztöltésű
üveggel ellátva- Szín: alapárban fehér- Az erkélyajtók bukó-nyíló vasalattal-
Beltéri ajtók utólag beszerelhető dekorpaneles ajtók ? választható színekben
bruttó 65.000 Ft ig- Redőny és szúnyogháló nélkül- Kívül ? belül fehér műanyag
párkányKÜLSŐ FALFELÜLETEK:- Fő falakon extrudált polisztirolhab hőszigetelő
lemez 10 cm vastagságban, - tárcsázva- Lábazaton 5 cm vastag xps polisztirol
hőszigetelő lemez- Homlokzaton 1.5 mm kapart hatású műgyanta vakolat pasztell
színben- Külső vakolat színe a gyártó által megadott színskálából választható-
Lábazaton lábazati műgyanta vakolat szintén választható- Ablakoknál dísz
spaletták nélkülALJZAT SZIGETELÉS ? ALJZATBETON:- 12 cm vastag hőszigetelés az
aljzatban- Dilatációs szalag a falaknál- 6 cm vastag esztrich betonHIDEG ÉS
MELEG BURKOLATOK :- Beton alapfelületek felületelőkészítése, alapozó felhordása
ahol szükséges- Padlóburkolat készítése beton alap felületen, 3-7 mm
ragasztóba rakva, 1-5 mm fugaszélesség, max. 40 x 40 lapmérettel az alapárban,
fugázóanyag a kívánt színben- Hideg burkolatoknál lábazat készítése a
padlóburkolat anyagából- A padlóburkolat és a lábazatnál képződő negatív sarok
rugalmas fugázó anyaggal tömítve- Fürdő falainál 2 m magasságig burkolva,
épített zuhanykabin nélkül- A sarkokban rugalmas gumi sarok kialakítása, a kád
és zuhanykabin mögött folyékony fólia felkenése- Ha a terveken külön szerepel,
kültérben lépcsőburkolat készítése 3- 10 mm ragasztóba rakva, járólap 35 cm
szélességig 1-5 mm fugaszélesség, élvédelem nélkül, fugázva- Laminált parketta
fektetés, hangszigetelt réteggel ellátva- Parkettás helyiségekben lábazat
készítése a parkettával azonos lábazatiprofilokból- A hideg és meleg
burkolatokat a megrendelő biztosítja, + a kiegészítők (élvédők, szegélyek)- Az
árajánlat tartalmazza a gumisarkot - folyékony fóliát a fürdőben, a
burkolatoknál a ragasztót, a fuga anyagot, és a szilikont a sarokban. Laminált
parkettánál a hővisszaverős alátétet.FESTÉS-FELÜLETKÉPZÉS:- Belső festéseknél
felület előkészítése, glettelés - gipszes glettel 3 rétegben- Diszperziós
festés fehér vagy gyárilag színezett festékkel pasztell színekkel, 2
rétegbenFűtés szerelés:Elektromos fűtéseknél:- javasoljuk ebben az esetben 2 db
fűtő hűtő klímát, és Nobo radiátorokat, törölköző szárító
radiátortSzerelvényezés:- Konyha, fürdőszoba, wc szerelvényezése ? készre
szerelése sarokszelepek, csaptelepek, stb. felszerelése .Amit a szerelvényezés
nem tartalmaz :- zuhanykabin összeszerelése,- zuhanynál ajtó, üvegfal, stb.,-
szekrények, polcok, fali tartók stb .,- a konyha bekötésénél, ha még nincs
konyhaszekrény, akkor helyszíni egyeztetés szükséges az épületgépésszel
!Villanyszerelés:Egy 100 méteres háznál így alakul:- előtér: 1 lámpa
váltókapcsolóval- wc: 1 lámpa, 1 kapcsoló, 1 dugalj- házt.h: 1 lámpa, 1
kapcsoló, 4 dugalj, - kazán ? mosógép- vasaló,+1 dugalj- fürdő: 2 lámpa, 2
kapcsoló, 2 dugalj- konyha: 2 lámpa, 2 kapcsoló, 10 dugalj- nappali: 2 lámpa
váltókapcsolóval, 6 dugalj- szobák /db: 1 lámpa, 1 kapcsoló, 4 dugalj- kültér:
bejáratnál 1 lámpa - 1 kapcsoló, homlokzaton 2 lámpa,2 kapcsoló, 2 dugalj- tv
kiállás: 3 db- összesen: 65 db kiállás - 100 m2, a végleges alaprajz fogja
megadni.- schneider sedna szerelvénycsalád, a kapcsolók és dugaljak fehér
színben- a villanyszerelés nem tartalmazza a lámpatestek felszerelését
Mérőhely, elektromos fűtés, napelem előkészítése, kamera, riasztó, szivattyú,
kapunyitó, lámpatestek felszerelése, stb egyedi árajánlat szükséges.INGYENES
hitel tanácsadás! CSOK+ Ügy intézés!BANKFÜGGETLEN hitelcentrumunk minden
elérhető bank és hitelintézet ajánlatát versenyezteti az Ön kedvéért, ráadásul
DÍJMENTESEN.Önnek nincs más dolga, mint elbeszélgetni munkatársunkkal, aki a
hallott információk alapján versenyre hívja a bankokat, hogy Ön hosszú távon is
a legjobb konstrukciót kaphassa. A legjobb ajánlatokból végül Ön választhatja ki
a nyertest.Munkatársaink sokéves szakmai tapasztalattal várják Önt, előre
egyeztetve akár a normál munkaidő után is.Amennyiben hirdetésem felkeltette
érdeklődését, várom hívását, akár hétvégén is! V.I. ...TOVÁBBI, TÖBBEZRES
INGATLAN KÍNÁLAT: www.gdn-ingatlan.hu - GDN azonosító: 380061
!!!FALAK:- A külső ?határoló falak'' bordázat 50 cm-ként, kívülről 15 mm OSB
borítással, a fő falban 15 cm hőszigetelés, belső oldalon hőtükrös párazáró
fólia, 2 réteg gipszkarton borítás.- A válaszfalak gipszkarton bordázat 50
cm-ként, mindkét oldalon 1 rétegnormál - gipszkarton, a válaszfalakban 10 cm
hangszigetelés.FÖDÉM:- rácsos tartószerkezet statika szerint, (ha kell fesztáv
függő)- A födém szerkezetben 25 cm hőszigetelés,- Mennyezeten gipszkarton
borítás, hőtükrös párazáró fóliaTETŐSZERKEZET :? rácsos tartó fém tető vagy
szeglemezes fa tető- Páraáteresztő fólia terítés 15 cm átfedéssel,- Tetőlécezés
3 x 5 cm, szarufákon ellen lécezéssel,- Az eresz lambériázása, 2 rétegben festve
vagy dobozolva- Alumínium függőeresz csatorna, a cseréppel megegyező színben
(félkörszelvényű), 4 lefolyó a házon.- Cserepeslemez vagy- Beton cserépfedés
(Leier - Terrán - Bramac) alapcserép ből választható színekben, vagy
cserepeslemez vagy zsindely max 3.500/ m2 a kúpokkal együtt.NYÍLÁSZÁRÓK: -
Standard készen vehető - Ablakok: 3 rétegű ( Ug = 0,75 W/ m2 K ) gáztöltésű
üveggel ellátva- Szín: alapárban fehér- Az erkélyajtók bukó-nyíló vasalattal-
Beltéri ajtók utólag beszerelhető dekorpaneles ajtók ? választható színekben
bruttó 65.000 Ft ig- Redőny és szúnyogháló nélkül- Kívül ? belül fehér műanyag
párkányKÜLSŐ FALFELÜLETEK:- Fő falakon extrudált polisztirolhab hőszigetelő
lemez 10 cm vastagságban, - tárcsázva- Lábazaton 5 cm vastag xps polisztirol
hőszigetelő lemez- Homlokzaton 1.5 mm kapart hatású műgyanta vakolat pasztell
színben- Külső vakolat színe a gyártó által megadott színskálából választható-
Lábazaton lábazati műgyanta vakolat szintén választható- Ablakoknál dísz
spaletták nélkülALJZAT SZIGETELÉS ? ALJZATBETON:- 12 cm vastag hőszigetelés az
aljzatban- Dilatációs szalag a falaknál- 6 cm vastag esztrich betonHIDEG ÉS
MELEG BURKOLATOK :- Beton alapfelületek felületelőkészítése, alapozó felhordása
ahol szükséges- Padlóburkolat készítése beton alap felületen, 3-7 mm
ragasztóba rakva, 1-5 mm fugaszélesség, max. 40 x 40 lapmérettel az alapárban,
fugázóanyag a kívánt színben- Hideg burkolatoknál lábazat készítése a
padlóburkolat anyagából- A padlóburkolat és a lábazatnál képződő negatív sarok
rugalmas fugázó anyaggal tömítve- Fürdő falainál 2 m magasságig burkolva,
épített zuhanykabin nélkül- A sarkokban rugalmas gumi sarok kialakítása, a kád
és zuhanykabin mögött folyékony fólia felkenése- Ha a terveken külön szerepel,
kültérben lépcsőburkolat készítése 3- 10 mm ragasztóba rakva, járólap 35 cm
szélességig 1-5 mm fugaszélesség, élvédelem nélkül, fugázva- Laminált parketta
fektetés, hangszigetelt réteggel ellátva- Parkettás helyiségekben lábazat
készítése a parkettával azonos lábazatiprofilokból- A hideg és meleg
burkolatokat a megrendelő biztosítja, + a kiegészítők (élvédők, szegélyek)- Az
árajánlat tartalmazza a gumisarkot - folyékony fóliát a fürdőben, a
burkolatoknál a ragasztót, a fuga anyagot, és a szilikont a sarokban. Laminált
parkettánál a hővisszaverős alátétet.FESTÉS-FELÜLETKÉPZÉS:- Belső festéseknél
felület előkészítése, glettelés - gipszes glettel 3 rétegben- Diszperziós
festés fehér vagy gyárilag színezett festékkel pasztell színekkel, 2
rétegbenFűtés szerelés:Elektromos fűtéseknél:- javasoljuk ebben az esetben 2 db
fűtő hűtő klímát, és Nobo radiátorokat, törölköző szárító
radiátortSzerelvényezés:- Konyha, fürdőszoba, wc szerelvényezése ? készre
szerelése sarokszelepek, csaptelepek, stb. felszerelése .Amit a szerelvényezés
nem tartalmaz :- zuhanykabin összeszerelése,- zuhanynál ajtó, üvegfal, stb.,-
szekrények, polcok, fali tartók stb .,- a konyha bekötésénél, ha még nincs
konyhaszekrény, akkor helyszíni egyeztetés szükséges az épületgépésszel
!Villanyszerelés:Egy 100 méteres háznál így alakul:- előtér: 1 lámpa
váltókapcsolóval- wc: 1 lámpa, 1 kapcsoló, 1 dugalj- házt.h: 1 lámpa, 1
kapcsoló, 4 dugalj, - kazán ? mosógép- vasaló,+1 dugalj- fürdő: 2 lámpa, 2
kapcsoló, 2 dugalj- konyha: 2 lámpa, 2 kapcsoló, 10 dugalj- nappali: 2 lámpa
váltókapcsolóval, 6 dugalj- szobák /db: 1 lámpa, 1 kapcsoló, 4 dugalj- kültér:
bejáratnál 1 lámpa - 1 kapcsoló, homlokzaton 2 lámpa,2 kapcsoló, 2 dugalj- tv
kiállás: 3 db- összesen: 65 db kiállás - 100 m2, a végleges alaprajz fogja
megadni.- schneider sedna szerelvénycsalád, a kapcsolók és dugaljak fehér
színben- a villanyszerelés nem tartalmazza a lámpatestek felszerelését
Mérőhely, elektromos fűtés, napelem előkészítése, kamera, riasztó, szivattyú,
kapunyitó, lámpatestek felszerelése, stb egyedi árajánlat szükséges.INGYENES
hitel tanácsadás! CSOK+ Ügy intézés!BANKFÜGGETLEN hitelcentrumunk minden
elérhető bank és hitelintézet ajánlatát versenyezteti az Ön kedvéért, ráadásul
DÍJMENTESEN.Önnek nincs más dolga, mint elbeszélgetni munkatársunkkal, aki a
hallott információk alapján versenyre hívja a bankokat, hogy Ön hosszú távon is
a legjobb konstrukciót kaphassa. A legjobb ajánlatokból végül Ön választhatja ki
a nyertest.Munkatársaink sokéves szakmai tapasztalattal várják Önt, előre
egyeztetve akár a normál munkaidő után is.Amennyiben hirdetésem felkeltette
érdeklődését, várom hívását, akár hétvégén is! V.I. ...TOVÁBBI, TÖBBEZRES
INGATLAN KÍNÁLAT: www.gdn-ingatlan.hu - GDN azonosító: 380061
Részletek...
Adatlap
| Ár: | 69.990.000 Ft |
| Település: | Vácegres |
| A hirdető: | Ingatlaniroda ajánlatából |
| Értékesítés típusa: | Eladó |
| Utca: | Vácegres központi részén |
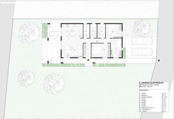
| Telek nagysága (m2) : | 984 |
| Épület hasznos területe (m2) : | 141 |
| Szobák száma: | 4 |
| Fűtés: | Egyéb fűtéses |
| Anyaga: | Egyéb anyagból készült épület |
| A hirdető kérése: | Ingatlanközvetítő vagyok - keresse fel Irodánkat! |
| Feladás dátuma: | 2026.03.09 |
| Eddig megtekintették 48 alkalommal | |
A hirdető adatai
Kapcsolat a hirdetővel...
Családi házak rovaton belül a(z) "Eladó családi ház Vácegres, Vácegres központi részén" című hirdetést látja. (fent)




























