
Eladó ikerház Iszkaszentgyörgy, Márványkert mellett
Vh-004399 Iszkaszentgyörgyön, a Márványkert szomszédságában, csendes, kedvelt
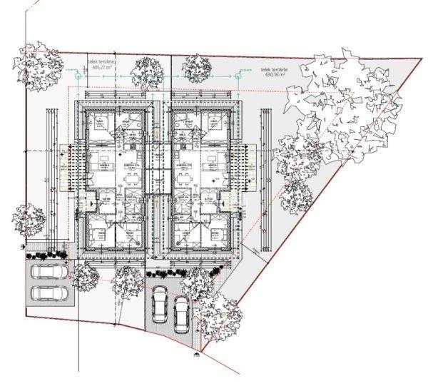
részen egyszintes, igényes és egyedi kivitelezésű nappali+ 3 szobás, újépítésű
ikerházi egység saját 481m2-es telken eladó!Az ingatlan könnyen megközelíthető,
a környék tömegközlekedése jó, a településen minden elérhető, ami a kényelmes
életvitelhez elengedhetetlen ( orvosi rendelő, gyógyszertár, posta, bölcsőde,
óvoda, polgármesteri hivatal, boltok, piac, fitness-terem, tanösvény, Kastély
Park, sportpálya, szépészeti szolgáltatások, kutyaiskola és panzió,
cukrászdák).A ház tágas, világos, körbe napozott, a mai kor igényszintjének
megfelelő, minőségi anyagokból, korszerű dizájnnal és kialakítással
készül.Műszaki paraméterek:- a homlokzati falak 30 cm vastag téglafalazatúak
10cm vastag szigeteléssel, a válaszfalak szintén tégla szerkezetűek- a lábazat
5cm vastag XPS szigetelést kap- a tetőszerkezet szeglemezes, könnyített födém
készül Isocell cellulóz szigeteléssel, Bramac beton cserép fedéssel. ( a
padlástér felár ellenében opcionálisan rakodhatóvá/járhatóvá tehető)- A fűtést
hőszivattyú biztosítja padlófűtéses hőleadással, melynek köszönhetően a ház
H-tarifás kedvezményben részesül fűtési szezonban.- a nyílászárók műanyagok, 6
kamrás, 3 rétegű üvegezésűekA ház hideg,-meleg burkolatjai, szaniterei,
nyílászárók színei, homlokzati színei előre megadott ár kategóriákon belül
választhatók.(Egyéb speciális munkák kivitelezésének igénye (pl: klíma,
szellőzőrendszer, központi porszívó, kandalló, kémény kialakítás, víztisztító
kiállás stb.) külön egyeztetést igényel)(részletes műszaki leírás igényével
kapcsolatban, kérem írjon üzenetet) Elosztását tekintve 91m2 hasznos
alapterületűElőszoba, amerikai konyhás nappali kamrával, 3db 9m2-es hálószoba,
vendég wc és háztartási helyiség kerül kialakításra. A házhoz kapcsolódik egy
fedett terasz, egy 16,5m2-es terasz és egy 8,4m2-es kerti tároló is.Fontosabb
paraméterek:? 2025 év végi átadás? 481 m2 önálló telekterület ? Nappali + 3
hálószoba ? H tarifás villany? Hőszivattyú ? Alacsony rezsiköltségMegbízható és
tapasztalt ingatlanfejlesztő, kivitelező jegyzi a ház építését, számtalan
referenciaépülettel rendelkezik. A vásárláshoz, a jelenleg aktuális családok
?újépítésű? otthonteremtésére vonatkozó összes támogatás igénybe vehető.AZ
INGATLAN ALKALMAS 5%-os ÁFA, CSOK, CSOK HITEL IGÉNYBEVÉTELÉRE!Eladási irányár:
79,9 M FtAz ingatlan adottságainak, fekvésének köszönhetően alkalmas továbbá
vállalkozásra, üzleti vagy befektetési célra, hiszen akár bérbe adható, vagy
üzlet, szolgáltatás (pl: orvosi rendelő, fodrász, kozmetika, irodai
tevékenység,(Csendes tevékenység engedélyezett).Ha felkeltette érdeklődését,
hívjon bizalommal, (hétvégén is) éljen ingyenes, személyre szabott
hitelügyintézés szolgáltatásunkkal. Segítünk továbbá adásvételhez szükséges
ügyvédi közreműködésben, energetikai tanúsítvány, valamint értékbecslés
elkészítésében.For English information please send a message. ...TOVÁBBI,
TÖBBEZRES INGATLAN KÍNÁLAT: www.gdn-ingatlan.hu - GDN azonosító: 380881
részen egyszintes, igényes és egyedi kivitelezésű nappali+ 3 szobás, újépítésű
ikerházi egység saját 481m2-es telken eladó!Az ingatlan könnyen megközelíthető,
a környék tömegközlekedése jó, a településen minden elérhető, ami a kényelmes
életvitelhez elengedhetetlen ( orvosi rendelő, gyógyszertár, posta, bölcsőde,
óvoda, polgármesteri hivatal, boltok, piac, fitness-terem, tanösvény, Kastély
Park, sportpálya, szépészeti szolgáltatások, kutyaiskola és panzió,
cukrászdák).A ház tágas, világos, körbe napozott, a mai kor igényszintjének
megfelelő, minőségi anyagokból, korszerű dizájnnal és kialakítással
készül.Műszaki paraméterek:- a homlokzati falak 30 cm vastag téglafalazatúak
10cm vastag szigeteléssel, a válaszfalak szintén tégla szerkezetűek- a lábazat
5cm vastag XPS szigetelést kap- a tetőszerkezet szeglemezes, könnyített födém
készül Isocell cellulóz szigeteléssel, Bramac beton cserép fedéssel. ( a
padlástér felár ellenében opcionálisan rakodhatóvá/járhatóvá tehető)- A fűtést
hőszivattyú biztosítja padlófűtéses hőleadással, melynek köszönhetően a ház
H-tarifás kedvezményben részesül fűtési szezonban.- a nyílászárók műanyagok, 6
kamrás, 3 rétegű üvegezésűekA ház hideg,-meleg burkolatjai, szaniterei,
nyílászárók színei, homlokzati színei előre megadott ár kategóriákon belül
választhatók.(Egyéb speciális munkák kivitelezésének igénye (pl: klíma,
szellőzőrendszer, központi porszívó, kandalló, kémény kialakítás, víztisztító
kiállás stb.) külön egyeztetést igényel)(részletes műszaki leírás igényével
kapcsolatban, kérem írjon üzenetet) Elosztását tekintve 91m2 hasznos
alapterületűElőszoba, amerikai konyhás nappali kamrával, 3db 9m2-es hálószoba,
vendég wc és háztartási helyiség kerül kialakításra. A házhoz kapcsolódik egy
fedett terasz, egy 16,5m2-es terasz és egy 8,4m2-es kerti tároló is.Fontosabb
paraméterek:? 2025 év végi átadás? 481 m2 önálló telekterület ? Nappali + 3
hálószoba ? H tarifás villany? Hőszivattyú ? Alacsony rezsiköltségMegbízható és
tapasztalt ingatlanfejlesztő, kivitelező jegyzi a ház építését, számtalan
referenciaépülettel rendelkezik. A vásárláshoz, a jelenleg aktuális családok
?újépítésű? otthonteremtésére vonatkozó összes támogatás igénybe vehető.AZ
INGATLAN ALKALMAS 5%-os ÁFA, CSOK, CSOK HITEL IGÉNYBEVÉTELÉRE!Eladási irányár:
79,9 M FtAz ingatlan adottságainak, fekvésének köszönhetően alkalmas továbbá
vállalkozásra, üzleti vagy befektetési célra, hiszen akár bérbe adható, vagy
üzlet, szolgáltatás (pl: orvosi rendelő, fodrász, kozmetika, irodai
tevékenység,(Csendes tevékenység engedélyezett).Ha felkeltette érdeklődését,
hívjon bizalommal, (hétvégén is) éljen ingyenes, személyre szabott
hitelügyintézés szolgáltatásunkkal. Segítünk továbbá adásvételhez szükséges
ügyvédi közreműködésben, energetikai tanúsítvány, valamint értékbecslés
elkészítésében.For English information please send a message. ...TOVÁBBI,
TÖBBEZRES INGATLAN KÍNÁLAT: www.gdn-ingatlan.hu - GDN azonosító: 380881
Részletek...
Adatlap
| Ár: | 79.900.000 Ft |
| Település: | Iszkaszentgyörgy |
| A hirdető: | Ingatlaniroda ajánlatából |
| Értékesítés típusa: | Eladó |
| Utca: | Márványkert mellett |
| Telek nagysága (m2) : | 481 |
| Épület hasznos területe (m2) : | 91 |
| Szobák száma: | 4 |
| Anyaga: | Tégla |
| A hirdető kérése: | Ingatlanközvetítő vagyok - keresse fel Irodánkat! |
| Feladás dátuma: | 2026.05.08 |
| Eddig megtekintették 69 alkalommal | |
A hirdető adatai
Kapcsolat a hirdetővel...
Családi házak rovaton belül a(z) "Eladó ikerház Iszkaszentgyörgy, Márványkert mellett" című hirdetést látja. (fent)




























