
Eladó ikerház Ráckeve, Kossuth Lajos u. környéke
Ráckevén csendes utcában 2 lakásos ikerházban 90 % készültségben eladó. 33%
helyben előállított villamosenergia napelem rendszerrel. Minden támogatás
igénybe vehető! Ráckevén: Budapestől 40-km távolságra a Hév végállomástól és a
busz végállomástól séta távolságra. Tesco, Aqualand és a kis-Dunapart is séta
távolságra. A nagy-duna 5 km távolságra. Az MO -ás 30 km, a Savoyai kastély
mögött. Magyarországon egyedülálló csónakos-piac 1,5 km.Elhelyezkedés: Ráckeve
északi részén az új fejlesztési övezetben.? nem újtelepi?A lakás 90% készültségi
állapotban van. 102 nm nettó alapterületű 2 szintes, +19 nm fűtött garázzsal.
Összesen 121m2. 3 szoba amerikai konyha, nappali, fedett terasz, dupla komfort,
gardrób. 33% helyben előállított villamosenergia, amiről napelemek gondoskodnak.
A locsoláshoz fúrt kút biztosítja a vizet. Klíma kiállások előkészítve.
Riasztórendszer kiépítve. Az konyhabútor elkészítéséhez szakembert tudunk
biztosítani!A lakások 1300 nm körülkerített telken találhatók. A ház:2024-es
építési szabványnak megfelelően épült.Rövid műszaki leírás.C-12-16/kk beton
sávalapozás, 30-as porotherm tégla a főfal 10-es porotherm a válaszfal, a födém
vasbeton e-gerenda szerkezettel a héjazat leier betont cserép az eresz
horganyzott bádog. Ablakok műanyag thermo 3 rétegű üveggel és gáz töltéssel,
Antracit alu redőnyök és szúnyoghálók motoros mozgatással. Garázskapu antracit
motoros mozgatással. Aljzatok 12 cm drivyt, homlokzat 15 cm drivyt, tető 25 cm
kőzet gyapottal készült. A járda autó behajtó viacolor burkolattal rendelkezik
200 nm-en. A kapu elektromos mozgatású. A fűtés és melegvíz ellátásáról kombi
cirkó kondenzációs gázkazán gondoskodik. A villamos energiaszámla csökkentéséről
napelemek gondoskodnak.Az ingatlanok eladási árai!1. lakás 1. opció 82 M Ft
650 m2 -es telekkel 1. lakás 2. opció 76 M Ft 50 m2 -es előkertel2. lakás
1. opció 82 M Ft 650 m2 -es telekkel2. lakás 2. opció 88 M Ft 1300 m2 -es
telekkelFINANSZÍROZÁS:Nálunk mindent egy helyen intézhet:- hivatalos
ingatlanközvetítés;- szakszerű jogi képviselet;- profi CSOK-PLUSZ, és
hitelügyintézés: 16 Bank, több mint 100 konstrukció;Kérésére, műszaki leírást,
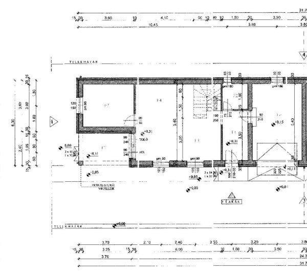
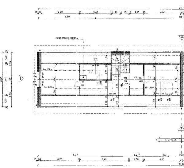
nagy-felbontású alaprajzot küldök!VÁROM MEGTISZTELŐ HÍVÁSÁT!A részletes
adatvédelmi tájékoztató folyamatosan elérhető a www.gdn-ingatlan.hu/adatvedelem
oldalon. ...TOVÁBBI, TÖBBEZRES INGATLAN KÍNÁLAT: www.gdn-ingatlan.hu - GDN
azonosító: 381886
helyben előállított villamosenergia napelem rendszerrel. Minden támogatás
igénybe vehető! Ráckevén: Budapestől 40-km távolságra a Hév végállomástól és a
busz végállomástól séta távolságra. Tesco, Aqualand és a kis-Dunapart is séta
távolságra. A nagy-duna 5 km távolságra. Az MO -ás 30 km, a Savoyai kastély
mögött. Magyarországon egyedülálló csónakos-piac 1,5 km.Elhelyezkedés: Ráckeve
északi részén az új fejlesztési övezetben.? nem újtelepi?A lakás 90% készültségi
állapotban van. 102 nm nettó alapterületű 2 szintes, +19 nm fűtött garázzsal.
Összesen 121m2. 3 szoba amerikai konyha, nappali, fedett terasz, dupla komfort,
gardrób. 33% helyben előállított villamosenergia, amiről napelemek gondoskodnak.
A locsoláshoz fúrt kút biztosítja a vizet. Klíma kiállások előkészítve.
Riasztórendszer kiépítve. Az konyhabútor elkészítéséhez szakembert tudunk
biztosítani!A lakások 1300 nm körülkerített telken találhatók. A ház:2024-es
építési szabványnak megfelelően épült.Rövid műszaki leírás.C-12-16/kk beton
sávalapozás, 30-as porotherm tégla a főfal 10-es porotherm a válaszfal, a födém
vasbeton e-gerenda szerkezettel a héjazat leier betont cserép az eresz
horganyzott bádog. Ablakok műanyag thermo 3 rétegű üveggel és gáz töltéssel,
Antracit alu redőnyök és szúnyoghálók motoros mozgatással. Garázskapu antracit
motoros mozgatással. Aljzatok 12 cm drivyt, homlokzat 15 cm drivyt, tető 25 cm
kőzet gyapottal készült. A járda autó behajtó viacolor burkolattal rendelkezik
200 nm-en. A kapu elektromos mozgatású. A fűtés és melegvíz ellátásáról kombi
cirkó kondenzációs gázkazán gondoskodik. A villamos energiaszámla csökkentéséről
napelemek gondoskodnak.Az ingatlanok eladási árai!1. lakás 1. opció 82 M Ft
650 m2 -es telekkel 1. lakás 2. opció 76 M Ft 50 m2 -es előkertel2. lakás
1. opció 82 M Ft 650 m2 -es telekkel2. lakás 2. opció 88 M Ft 1300 m2 -es
telekkelFINANSZÍROZÁS:Nálunk mindent egy helyen intézhet:- hivatalos
ingatlanközvetítés;- szakszerű jogi képviselet;- profi CSOK-PLUSZ, és
hitelügyintézés: 16 Bank, több mint 100 konstrukció;Kérésére, műszaki leírást,
nagy-felbontású alaprajzot küldök!VÁROM MEGTISZTELŐ HÍVÁSÁT!A részletes
adatvédelmi tájékoztató folyamatosan elérhető a www.gdn-ingatlan.hu/adatvedelem
oldalon. ...TOVÁBBI, TÖBBEZRES INGATLAN KÍNÁLAT: www.gdn-ingatlan.hu - GDN
azonosító: 381886
Részletek...
Adatlap
| Ár: | 76.000.000 Ft |
| Település: | Ráckeve |
| A hirdető: | Ingatlaniroda ajánlatából |
| Értékesítés típusa: | Eladó |
| Utca: | Kossuth Lajos u. környéke |
| Telek nagysága (m2) : | 150 |
| Épület hasznos területe (m2) : | 128 |
| Szobák száma: | 3 |
| Félszobák száma: | 1 |
| Fűtés: | Cirkó fűtéses |
| Anyaga: | Tégla |
| A hirdető kérése: | Ingatlanközvetítő vagyok - keresse fel Irodánkat! |
| Feladás dátuma: | 2026.05.08 |
| Eddig megtekintették 77 alkalommal | |
A hirdető adatai
Kapcsolat a hirdetővel...
Családi házak rovaton belül a(z) "Eladó ikerház Ráckeve, Kossuth Lajos u. környéke" című hirdetést látja. (fent)




























