
Eladó ikerház Bicske, Hőszivattyús nappali + 3 szobás
Új építésű, modern technológiával készült, bruttó 119 nm-es ikerház eladó,
Bicske legjobb részén! A telken épülő 2 háznak NINCS KÖZÖS FALA!!!Már csak az
egyik iker fél érhető el!!!! A tervezésnél fontos szempont volt a tágas terek
kialakítása, a prémium minőségű anyagok használata.A helyiségek elrendezése
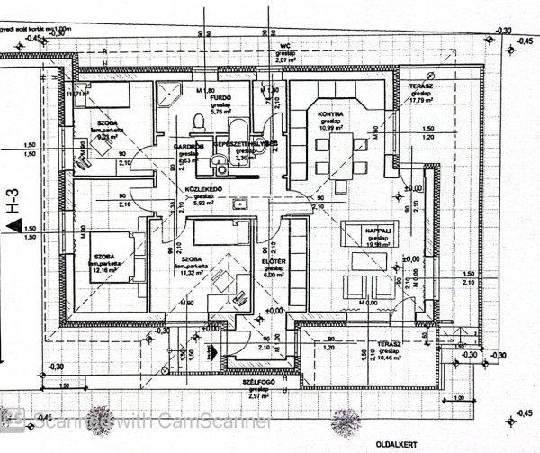
praktikus: 3 nm-es szélfogó, egy 6 nm-es előszoba, egy 31 nm-es amerikai konyhás
nappali, 3 külön nyíló szoba (11, 12 és 9 nm) egy gardrób, egy háztartási
helyiség, egy 6 nm-es fürdőszoba, egy vendég mosdó és egy háztartási helyiség. A
nappaliból és az étkezőből megközelíthető terasz mérete 10,5 nm. A kertben egy
5 nm-es tároló is kialakításra kerül.A nettó alapterület 92 nm.Műszaki
paraméterek:- betonalap, aljzat- és vízszigeteléssel- Leier tégla falazat- 20
cm-es EPS hőszigetelés- fa födém, 20 cm szigeteléssel- 3 rétegű, hőszigetelő
műanyag nyílászárók- antracit Bramac tetőcserép- hőszivattyú ? padlófűtéssel-
Viacolor térkövezés, tereprendezésAz ingatlan központi, mégis csendes helyen
található, ezáltal a mindennapi élethez szükséges szolgáltatások és üzletek pár
perces sétával elérhetőek. Budapest határa autóval 20 perc, de rendszeres
buszjárattal is megközelíthető.A nappali + 3 szobás ház kényelmes, korszerű és
praktikus otthona lehet kis és nagyobb gyermekes családoknak!Bankfüggetlen
Hitelközpontunk ingyenesen segít megtalálni Önnek a legkedvezőbb finanszírozási
lehetőséget. CSOK igényelhető a vásárláshoz!További információért, vagy
megtekintési szándék esetén kérem, keressen bizalommal! ...TOVÁBBI, TÖBBEZRES
INGATLAN KÍNÁLAT: www.gdn-ingatlan.hu - GDN azonosító: 382530
Bicske legjobb részén! A telken épülő 2 háznak NINCS KÖZÖS FALA!!!Már csak az
egyik iker fél érhető el!!!! A tervezésnél fontos szempont volt a tágas terek
kialakítása, a prémium minőségű anyagok használata.A helyiségek elrendezése
praktikus: 3 nm-es szélfogó, egy 6 nm-es előszoba, egy 31 nm-es amerikai konyhás
nappali, 3 külön nyíló szoba (11, 12 és 9 nm) egy gardrób, egy háztartási
helyiség, egy 6 nm-es fürdőszoba, egy vendég mosdó és egy háztartási helyiség. A
nappaliból és az étkezőből megközelíthető terasz mérete 10,5 nm. A kertben egy
5 nm-es tároló is kialakításra kerül.A nettó alapterület 92 nm.Műszaki
paraméterek:- betonalap, aljzat- és vízszigeteléssel- Leier tégla falazat- 20
cm-es EPS hőszigetelés- fa födém, 20 cm szigeteléssel- 3 rétegű, hőszigetelő
műanyag nyílászárók- antracit Bramac tetőcserép- hőszivattyú ? padlófűtéssel-
Viacolor térkövezés, tereprendezésAz ingatlan központi, mégis csendes helyen
található, ezáltal a mindennapi élethez szükséges szolgáltatások és üzletek pár
perces sétával elérhetőek. Budapest határa autóval 20 perc, de rendszeres
buszjárattal is megközelíthető.A nappali + 3 szobás ház kényelmes, korszerű és
praktikus otthona lehet kis és nagyobb gyermekes családoknak!Bankfüggetlen
Hitelközpontunk ingyenesen segít megtalálni Önnek a legkedvezőbb finanszírozási
lehetőséget. CSOK igényelhető a vásárláshoz!További információért, vagy
megtekintési szándék esetén kérem, keressen bizalommal! ...TOVÁBBI, TÖBBEZRES
INGATLAN KÍNÁLAT: www.gdn-ingatlan.hu - GDN azonosító: 382530
Részletek...
Adatlap
| Ár: | 89.900.000 Ft |
| Település: | Bicske |
| A hirdető: | Ingatlaniroda ajánlatából |
| Értékesítés típusa: | Eladó |
| Használtság: | Új építésű |
| Utca: | Hőszivattyús nappali + 3 szobás |
| Telek nagysága (m2) : | 320 |
| Épület hasznos területe (m2) : | 119 |
| Szobák száma: | 2 |
| Félszobák száma: | 2 |
| Anyaga: | Tégla |
| A hirdető kérése: | Ingatlanközvetítő vagyok - keresse fel Irodánkat! |
| Feladás dátuma: | 2026.03.09 |
| Eddig megtekintették 71 alkalommal | |
A hirdető adatai
Kapcsolat a hirdetővel...
Családi házak rovaton belül a(z) "Eladó ikerház Bicske, Hőszivattyús nappali + 3 szobás" című hirdetést látja. (fent)




























