
Eladó családi ház Siójut, Családi ház
Balaton parttól, Siófoktól 8 km-re.Családi ház eladó Siójut egyik csendes
utcájában.Önálló helyrajzi számmal rendelkező ház 78 nm-es lakótérrel, és1439 nm
hozzá tartozó kerttel, körbekerítve.Tégla építésű, cserép tetőfedésű, fa
nyílászárókkal.Az ingatlanba víz, villany lett bevezetve.A fürdőszoba pár éve
lett felújítva, amelyben a villanybojler adja a meleg vizet.Mit találunk a
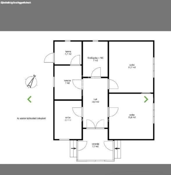
házban?Előszoba, illetve üveges veranda.Folyosóról nyílik:2 nagyszoba1 kisszoba1
konyhaszerű helyiség1 kamra1 fürdőszoba tusolóval, vécé, mosdóA szobák ablaka
régi fa, mindegyiken redőny van.Fúrt kút van az udvarban csappal ellátva!Gáz az
utcában, a ház előtt található.A"Kádár kocka" elnevezésű ház igazán megérdemelne
egy felújítást.Gondos, jó ízlésvilágú emberek nagyszerű dolgokat tudnak alkotni
az ilyen jellegű épületekből.Itt a lehetőség, ragadja meg! ...TOVÁBBI, TÖBBEZRES
INGATLAN KÍNÁLAT: www.gdn-ingatlan.hu - GDN azonosító: 383333
utcájában.Önálló helyrajzi számmal rendelkező ház 78 nm-es lakótérrel, és1439 nm
hozzá tartozó kerttel, körbekerítve.Tégla építésű, cserép tetőfedésű, fa
nyílászárókkal.Az ingatlanba víz, villany lett bevezetve.A fürdőszoba pár éve
lett felújítva, amelyben a villanybojler adja a meleg vizet.Mit találunk a
házban?Előszoba, illetve üveges veranda.Folyosóról nyílik:2 nagyszoba1 kisszoba1
konyhaszerű helyiség1 kamra1 fürdőszoba tusolóval, vécé, mosdóA szobák ablaka
régi fa, mindegyiken redőny van.Fúrt kút van az udvarban csappal ellátva!Gáz az
utcában, a ház előtt található.A"Kádár kocka" elnevezésű ház igazán megérdemelne
egy felújítást.Gondos, jó ízlésvilágú emberek nagyszerű dolgokat tudnak alkotni
az ilyen jellegű épületekből.Itt a lehetőség, ragadja meg! ...TOVÁBBI, TÖBBEZRES
INGATLAN KÍNÁLAT: www.gdn-ingatlan.hu - GDN azonosító: 383333
Részletek...
Adatlap
| Ár: | 28.500.000 Ft |
| Település: | Siójut |
| A hirdető: | Ingatlaniroda ajánlatából |
| Értékesítés típusa: | Eladó |
| Használtság: | Használt |
| Utca: | Családi ház |
| Telek nagysága (m2) : | 1439 |
| Épület hasznos területe (m2) : | 78 |
| Szobák száma: | 3 |
| Félszobák száma: | 1 |
| Fűtés: | Egyéb fűtéses |
| Ingatlan állapota: | Felújítandó |
| Anyaga: | Tégla |
| A hirdető kérése: | Ingatlanközvetítő vagyok - keresse fel Irodánkat! |
| Feladás dátuma: | 2025.11.09 |
| Eddig megtekintették 27 alkalommal | |
A hirdető adatai
Kapcsolat a hirdetővel...
Családi házak rovaton belül a(z) "Eladó családi ház Siójut, Családi ház" című hirdetést látja. (fent)




























