
Eladó családi ház Nyíregyháza, Kollégium utcai lakópark 3
Eladó Nyíregyháza Nyírszőlős részén a Kollégium utcai lakóparkban 2025-ben épülő
új A++ besorolású 3 szobás garázsos családi ház. (K/3)Ára: 99.000.000 Ft.Az
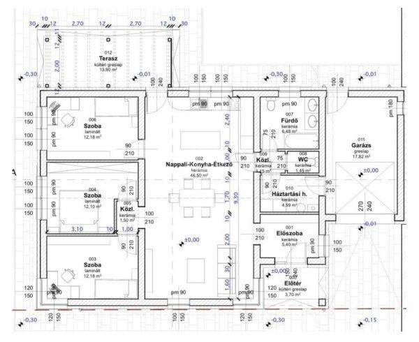
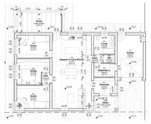
ingatlan alap méretei:- a telek mérete: 720nm,- a ház alapterülete: 139nm.Az
épület hasznos alapterülete 139nm melyben található:- 3 szoba,- 2 közlekedő,-
nappali-konyha-étkező,- háztartási helység,- fürdőszoba,- WC,- előtér,- garázs
(17,82nm),- terasz (13,9nm).Az új építésű családi ház várhatóan 8 hónapon belül
kerül átadásra, mely korszerű hő takarékos építészeti megoldásokat alkalmazva
készül el. A falazata 30-as téglából épül, mely 15 cm-es EPS homlokzati
hőszigetelést kap. A födém szerkezete 15 cm-es ásványszálas hőszigetelésű lesz,
így az egész épület energetikai szempontból A++ kategóriájú. Az épületben áram,
víz, gáz és csatorna bekötésre kerül. Az épület padlófűtéssel, radiátoros
fűtéssel vagy kérés esetén a kettő kombinációjával készül el, mely gáz cirkó
kazánról fog működni. Ezen kívül még 2 db hűtő-fűtő klíma is rendelkezésre fog
állni. A melegvíz ellátásról szintén a gáz cirkó kazán gondoskodik.Az ingatlan
ideális választás lehet mindazok számára, akik új építésű, modern
energiatakarékos otthont keresnek nyugodt kertvárosi környezetben.Fontos!Az
ingatlan per és tehermentes, 2 gyerekes CSOK Plusz is igénybe
vehető!Figyelem!Minőségi kivitelezés és választható belső burkolatok,
szaniterek.2025-ös energetikai szabványoknak megfelelő modern megoldások.A belső
elrendezés igény szerint módosítható.Ha felkeltette érdeklődését, hívja
irodánkat bizalommal!Ha hitelre van szüksége éljen ingyenes, személyre szabott
hitel ügyintézési szolgáltatásunkkal is. ...TOVÁBBI, TÖBBEZRES INGATLAN KÍNÁLAT:
www.gdn-ingatlan.hu - GDN azonosító: 384195
új A++ besorolású 3 szobás garázsos családi ház. (K/3)Ára: 99.000.000 Ft.Az
ingatlan alap méretei:- a telek mérete: 720nm,- a ház alapterülete: 139nm.Az
épület hasznos alapterülete 139nm melyben található:- 3 szoba,- 2 közlekedő,-
nappali-konyha-étkező,- háztartási helység,- fürdőszoba,- WC,- előtér,- garázs
(17,82nm),- terasz (13,9nm).Az új építésű családi ház várhatóan 8 hónapon belül
kerül átadásra, mely korszerű hő takarékos építészeti megoldásokat alkalmazva
készül el. A falazata 30-as téglából épül, mely 15 cm-es EPS homlokzati
hőszigetelést kap. A födém szerkezete 15 cm-es ásványszálas hőszigetelésű lesz,
így az egész épület energetikai szempontból A++ kategóriájú. Az épületben áram,
víz, gáz és csatorna bekötésre kerül. Az épület padlófűtéssel, radiátoros
fűtéssel vagy kérés esetén a kettő kombinációjával készül el, mely gáz cirkó
kazánról fog működni. Ezen kívül még 2 db hűtő-fűtő klíma is rendelkezésre fog
állni. A melegvíz ellátásról szintén a gáz cirkó kazán gondoskodik.Az ingatlan
ideális választás lehet mindazok számára, akik új építésű, modern
energiatakarékos otthont keresnek nyugodt kertvárosi környezetben.Fontos!Az
ingatlan per és tehermentes, 2 gyerekes CSOK Plusz is igénybe
vehető!Figyelem!Minőségi kivitelezés és választható belső burkolatok,
szaniterek.2025-ös energetikai szabványoknak megfelelő modern megoldások.A belső
elrendezés igény szerint módosítható.Ha felkeltette érdeklődését, hívja
irodánkat bizalommal!Ha hitelre van szüksége éljen ingyenes, személyre szabott
hitel ügyintézési szolgáltatásunkkal is. ...TOVÁBBI, TÖBBEZRES INGATLAN KÍNÁLAT:
www.gdn-ingatlan.hu - GDN azonosító: 384195
Részletek...
Adatlap
| Ár: | 99.000.000 Ft |
| Település: | Nyíregyháza |
| A hirdető: | Ingatlaniroda ajánlatából |
| Értékesítés típusa: | Eladó |
| Használtság: | Új építésű |
| Utca: | Kollégium utcai lakópark 3 |
| Telek nagysága (m2) : | 720 |
| Épület hasznos területe (m2) : | 139 |
| Szobák száma: | 3 |
| Fűtés: | Cirkó fűtéses |
| Anyaga: | Tégla |
| A hirdető kérése: | Ingatlanközvetítő vagyok - keresse fel Irodánkat! |
| Feladás dátuma: | 2026.05.08 |
| Eddig megtekintették 74 alkalommal | |
A hirdető adatai
Kapcsolat a hirdetővel...
Családi házak rovaton belül a(z) "Eladó családi ház Nyíregyháza, Kollégium utcai lakópark 3" című hirdetést látja. (fent)




























