
Eladó családi ház Budapest, XVIII. kerület, Alacskai út
Almáskert Villa Park ? Új építésű luxus családi házak a XVIII. kerület egyik
legkedveltebb részén!Fedezze fel Budapest egyik legnyugodtabb, családbarát
övezetét az Almáskertben, ahol három különálló, új építésű, modern családi ház
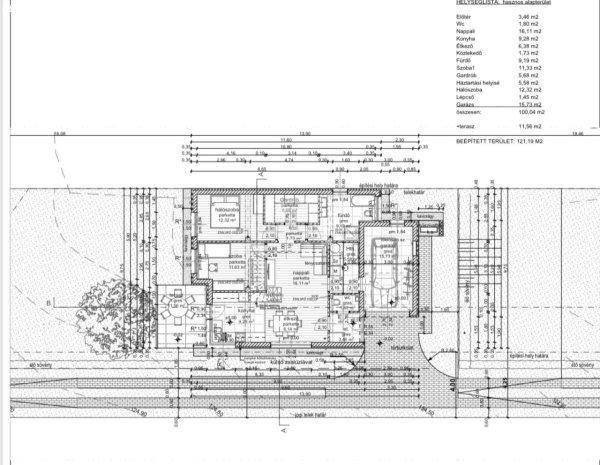
várja leendő tulajdonosait!Mit kínálunk?? Önálló, belső kétszintes házak
(földszint + emelet)? Nappali + 3 hálószoba? 3 mellékhelyiség, kádas-zuhanyzós,
dupla mosdós fürdőszoba? Tágas gardrób, tetőterasz, saját parkosított kert?
Fűtött garázs elektromos, szekcionált kapuvalMinőség kompromisszumok nélkül!Az
otthonok a legkorszerűbb anyagokból készülnek: 25 cm-es extra hőszigetelő Ytong
falazat 10 cm grafitos dryvit szigetelés 3 rétegű antracit nyílászárók,
elektromos alumínium redőnyök 20 cm födémszigetelés, időtálló
cserépfedésEnergiahatékony és jövőálló otthon: Hőszivattyús fűtés és hűtés
(H-tarifa) Fan-coil és padlófűtés minden helyiségben Előkészített
napelemrendszer és elektromos autótöltőRugalmas kialakítás: A burkolatok,
szaniterek, beltéri ajtók egyedi igény szerint választhatók A fürdőszobákat
bútorozva adjuk át Egyedi módosítások még kivitelezhetők az építkezés
előrehaladásától függőenMűszaki átadás: 2025 nyarán Ár: 145.000.000 Ft ?
kulcsrakész állapotban! Babaváró, CSOK és kamattámogatott hitel igénybe vehető
Ügyvédi költséget az építtető/beruházó átvállalja Építkezés látogatható előre
egyeztetett időpontban Ne maradjon le róla! Hívjon bizalommal a hét bármely
napján, és ismerje meg álmai otthonát személyesen! ...TOVÁBBI, TÖBBEZRES
INGATLAN KÍNÁLAT: www.gdn-ingatlan.hu - GDN azonosító: 384238
legkedveltebb részén!Fedezze fel Budapest egyik legnyugodtabb, családbarát
övezetét az Almáskertben, ahol három különálló, új építésű, modern családi ház
várja leendő tulajdonosait!Mit kínálunk?? Önálló, belső kétszintes házak
(földszint + emelet)? Nappali + 3 hálószoba? 3 mellékhelyiség, kádas-zuhanyzós,
dupla mosdós fürdőszoba? Tágas gardrób, tetőterasz, saját parkosított kert?
Fűtött garázs elektromos, szekcionált kapuvalMinőség kompromisszumok nélkül!Az
otthonok a legkorszerűbb anyagokból készülnek: 25 cm-es extra hőszigetelő Ytong
falazat 10 cm grafitos dryvit szigetelés 3 rétegű antracit nyílászárók,
elektromos alumínium redőnyök 20 cm födémszigetelés, időtálló
cserépfedésEnergiahatékony és jövőálló otthon: Hőszivattyús fűtés és hűtés
(H-tarifa) Fan-coil és padlófűtés minden helyiségben Előkészített
napelemrendszer és elektromos autótöltőRugalmas kialakítás: A burkolatok,
szaniterek, beltéri ajtók egyedi igény szerint választhatók A fürdőszobákat
bútorozva adjuk át Egyedi módosítások még kivitelezhetők az építkezés
előrehaladásától függőenMűszaki átadás: 2025 nyarán Ár: 145.000.000 Ft ?
kulcsrakész állapotban! Babaváró, CSOK és kamattámogatott hitel igénybe vehető
Ügyvédi költséget az építtető/beruházó átvállalja Építkezés látogatható előre
egyeztetett időpontban Ne maradjon le róla! Hívjon bizalommal a hét bármely
napján, és ismerje meg álmai otthonát személyesen! ...TOVÁBBI, TÖBBEZRES
INGATLAN KÍNÁLAT: www.gdn-ingatlan.hu - GDN azonosító: 384238
Részletek...
Adatlap
| Ár: | 145.000.000 Ft |
| Település: | XVIII. kerület |
| A hirdető: | Ingatlaniroda ajánlatából |
| Értékesítés típusa: | Eladó |
| Utca: | Alacskai út |
| Telek nagysága (m2) : | 400 |
| Épület hasznos területe (m2) : | 150 |
| Szobák száma: | 4 |
| Fűtés: | Egyéb fűtéses |
| Anyaga: | Tégla |
| A hirdető kérése: | Ingatlanközvetítő vagyok - keresse fel Irodánkat! |
| Feladás dátuma: | 2026.05.08 |
| Eddig megtekintették 67 alkalommal | |
A hirdető adatai
Kapcsolat a hirdetővel...
Családi házak rovaton belül a(z) "Eladó családi ház Budapest, XVIII. kerület, Alacskai út" című hirdetést látja. (fent)




























